Pesquisar perto de mim
A aguardar a sua pesquisa
Voltar
Lote para prédio com projeto aprovado - 20 apartamentos - Olhão
Lote para prédio com projeto aprovado - 20 apartamentos - Olhão
Lote para prédio com projeto aprovado - 20 apartamentos - Olhão
Lote para prédio com projeto aprovado - 20 apartamentos - Olhão
Ver galeria (39)
Ver galeria (39)
Seguir
Partilhar

Lote para prédio com projeto aprovado - 20 apartamentos - Olhão

Faro, Olhão, Quelfes Ver no mapa
1 065 000 €
0 Quartos
0 WC's
2437m2
Área Útil: 2437m2
Área Bruta: 2437m2
Certificação Energética: Isento

Descrição do anúncio

Projeto aprovado com licença de construção a pagamento!

Este lote de terreno de 712m2 está situado em uma urbanização agradável e tranquila em Olhão, no Algarve.

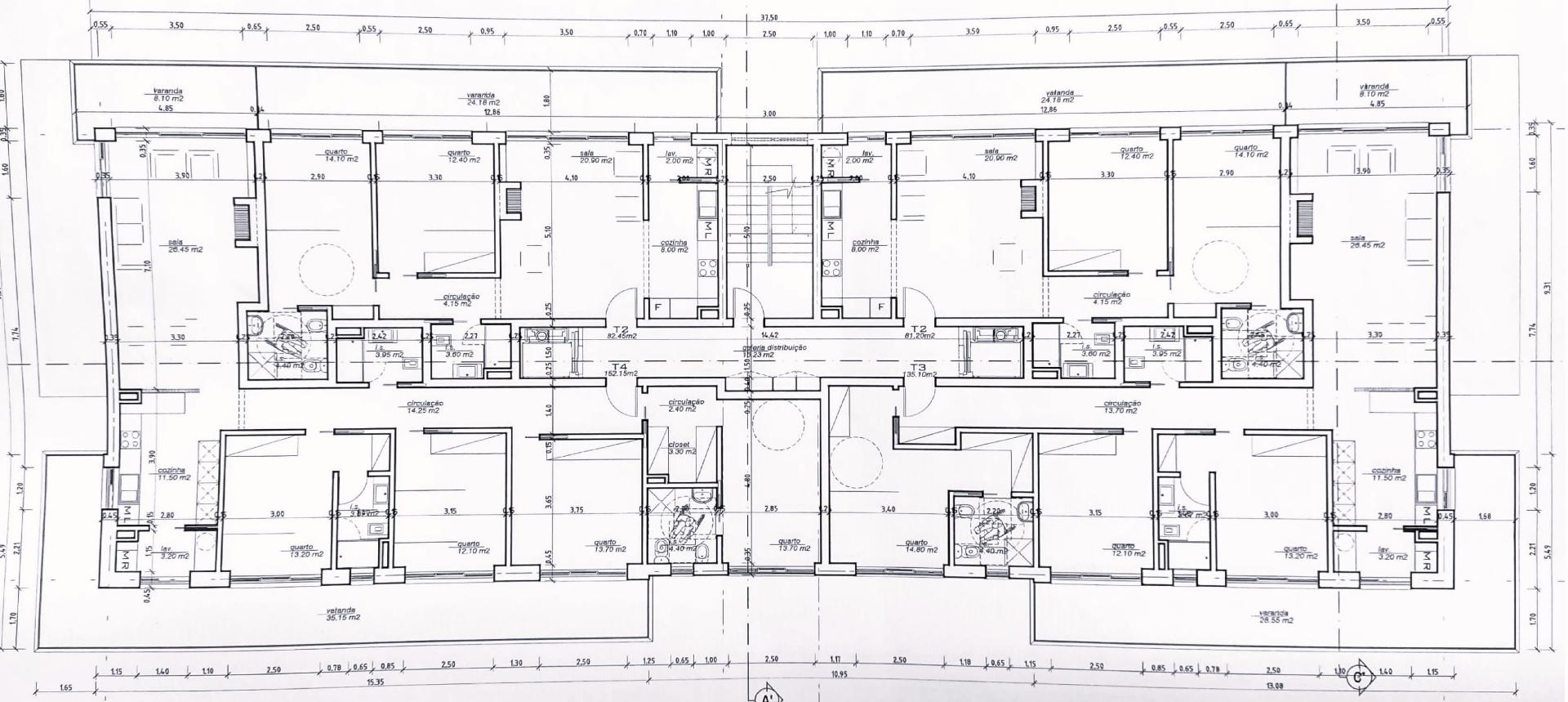
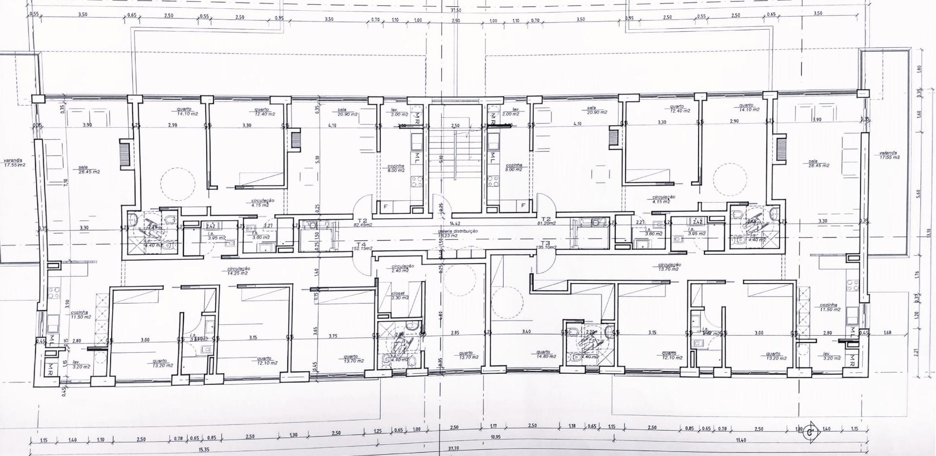
Projeto já aprovado com licenças a pagamento para construção de um prédio de 6 andares, incluindo cave com garagem e arrecadação, 20 apartamentos, terraço e 4 lojas.

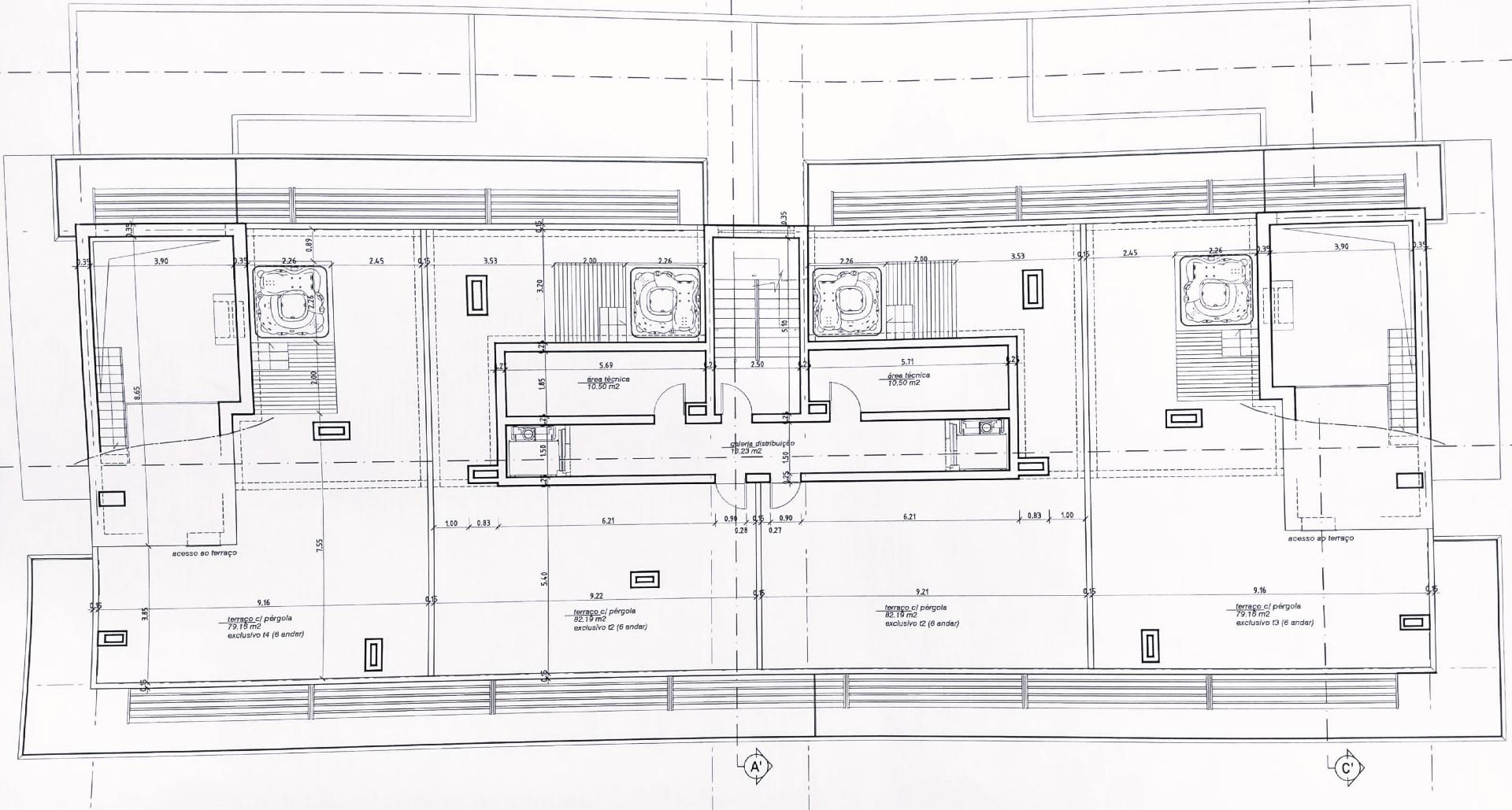
O prédio contempla 20 apartamentos, com áreas generosas e tipologias de T2, T3 e T4. Os apartamentos no último piso terão acesso a um terraço privativo com aproximadamente 80m2 cada, oferecendo vistas deslumbrantes da cidade e do mar. A cave do prédio oferece espaço para arrecadações e estacionamentos adicionais, proporcionando comodidade aos seus moradores.

Esta é uma oportunidade única para investir em um imóvel de qualidade em uma localização privilegiada, em uma das cidades mais vibrantes e atraentes do Algarve.

Com acesso fácil às principais rodovias e aeroporto de Faro a apenas 15 minutos, este lote de terreno oferece uma ótima opção para quem procura investir em imóveis no sul de Portugal.

Não perca esta oportunidade!

Entre em contato conosco para saber mais informações sobre este incrível projeto.

Galeria do imóvel

Lote para prédio com projeto aprovado - 20 apartamentos - Olhão
Lote para prédio com projeto aprovado - 20 apartamentos - Olhão
Lote para prédio com projeto aprovado - 20 apartamentos - Olhão
Lote para prédio com projeto aprovado - 20 apartamentos - Olhão
Lote para prédio com projeto aprovado - 20 apartamentos - Olhão
Lote para prédio com projeto aprovado - 20 apartamentos - Olhão

Localização do imóvel

Faro, Olhão, Quelfes

Referência do anúncio: CS-TU-93361. Última atualização: 24 outubro 2025.

Relatório de preços praticados nos últimos 8 meses

Faro, Olhão, Quelfes

Simule um Crédito Habitação

Os dados apresentados são meramente indicativos. Condições gerais
Seguir
Partilhar
Around The Sun - Unip Lda
AMI 10136
Nome
Email
Contacto
Formato inválido
Agende uma visita
Referência do anúncio: CS-TU-93361.
Última atualização: 24 outubro 2025.
Contactar
Veja também
Anúncios na mesma zona
Terreno Misto
Faro, Loulé, Loulé (São Clemente)
300 000 €
Terreno Rústico com vistas deslumbrantes
Faro, Tavira, Tavira (Santa Maria e Santiago)
40 000 €
MORADIA TÉRREA - COM TERRENO DE 11.820 M2 - COM POMAR - RIO SECO - CASTRO MARIM - ALGARVE
Faro, Castro Marim, Castro Marim
220 000 €
Terreno Rústico com 3.726m2 próximo de Tavira
Faro, Tavira, Tavira (Santa Maria e Santiago)
40 000 €
Terreno para construção de 10 moradias nas Ferreiras
Faro, Albufeira, Ferreiras
1 000 000 €
TERRENO RUSTICO COM 12.200 M2 - AGUA E LUZ - PRÓXIMO A FOZ DE ODELEITE - ODELEITE - CASTRO MARIM - ALGARVE
Faro, Castro Marim, Odeleite
22 500 €
Terreno para construção de um hotel c/ projeto aprovado
Faro, São Brás de Alportel, São Brás de Alportel
400 000 €
Belo terreno misto para construção de uma moradia perto de Loulé
Faro, Loulé, Loulé (São Sebastião)
125 000 €
Terreno Urbano na Conceição - Faro
Faro, Faro, Conceição e Estoi
2 750 000 €
Terreno Rústico de 1800m2
Faro, Olhão, Pechão
30 000 €
Partilha o imóvel: Lote para prédio com projeto aprovado - 20 apartamentos - Olhão
Partilha este imóvel nas tuas redes sociais ou envia diretamente para o email dos teus amigos.
Partilhar por email
Adicione uma nota ao imóvel!
Só você é que vê as notas que adiciona. Os imóveis com notas ficam nos favoritos para os poder consultar mais tarde.
Excluíste o anúncio:
Lote para prédio com projeto aprovado - 20 apartamentos - Olhão