Pesquisar perto de mim
A aguardar a sua pesquisa
Voltar
Lote para moradia com projecto
Lote para moradia com projecto
Lote para moradia com projecto
Lote para moradia com projecto
Ver galeria (7)
Ver galeria (7)
Seguir
Partilhar

Lote para moradia com projecto

Porto, Maia, Folgosa Ver no mapa
35 000 €
0 Quartos
0 WC's
326m2
Área Útil: 326m2
Área Bruta: 360m2
Certificação Energética: Isento

Descrição do anúncio

Lugar Calmo e Tranquilo, Campestre, Proximo da Estação do Caminho de Ferro e do Centro

A poucos minutos da autoestrada de acesso a Porto e Braga.

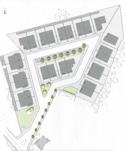
Terreno urbano dentro de loteamento na rua Rua Fonteleite com excelente esposicao solar.
Moradia de cave, R/C, 1 andar de 3 frentes, com 120 m2 de implementação.

Moradias
- res do chão
escritória
salão
lavandaria
arrumos
wc
- 1 piso
acesso habitação
cozinha
sala jantar
wc
garagem para 2 carros
varanda
- 2 piso
2 suites
2 quartos
2 varandas


Lotes com áreas a partir de 240 m2

Quiet and peaceful place, country side, close to the train station and the center

Just a few minutes from the highway access to Porto and Braga.

Urban land within a subdivision on Rua Fonteleite with excellent sun exposure.
Basement house, ground floor, 1 floor with 3 fronts, with 120 m2 of construction.

Houses
- ground floor
office
hall
laundry
storage
toilet
- 1 floor
housing access
kitchen
dining room
toilet
garage for 2 cars
balcony
- 2 floor
2 suites
2 bedrooms
2 balconies


Lots with areas from 240 m2

Galeria do imóvel

Lote para moradia com projecto
Lote para moradia com projecto
Lote para moradia com projecto
Lote para moradia com projecto
Lote para moradia com projecto
Lote para moradia com projecto

Localização do imóvel

Porto, Maia, Folgosa

Referência do anúncio: TER_202401. Última atualização: 12 dezembro 2024.

Relatório de preços praticados nos últimos 8 meses

Porto, Maia, Folgosa

Simule um Crédito Habitação

Os dados apresentados são meramente indicativos. Condições gerais
Seguir
Partilhar
Propripopular - Mediacao Imobiliaria, Unip. Lda
AMI 9220
Nome
Email
Contacto
Formato inválido
Agende uma visita
Referência do anúncio: TER_202401.
Última atualização: 12 dezembro 2024.
Contactar
Veja também
Anúncios na mesma zona
Lote de Terreno Venda em Campanhã,Porto
Porto, Porto, Campanhã
2 300 000 €
Lote de Terreno Venda em Guilhabreu,Vila do Conde
Porto, Vila do Conde, Guilhabreu
200 000 €
Lote de Terreno Venda em Guilhabreu,Vila do Conde
Porto, Vila do Conde, Guilhabreu
200 000 €
Lote de Terreno Venda em Campo (São Martinho), São Salvador do Campo e Negrelos (São Mamede),Santo Tirso
Porto, Santo Tirso, Vilarinho
79 000 €
Lote de Terreno Venda em Lustosa e Barrosas (Santo Estêvão),Lousada
Porto, Lousada, Lustosa e Barrosas (Santo Estêvão)
170 000 €
Lote de Terreno Venda em Lustosa e Barrosas (Santo Estêvão),Lousada
Porto, Lousada, Lustosa e Barrosas (Santo Estêvão)
215 000 €
Terreno Para Construção Venda em Canidelo,Vila Nova de Gaia
Porto, Vila Nova de Gaia, Canidelo
125 000 €
Lote de Terreno Venda em Lustosa e Barrosas (Santo Estêvão),Lousada
Porto, Lousada, Lustosa e Barrosas (Santo Estêvão)
179 000 €
Lote de Terreno Venda em Póvoa de Varzim, Beiriz e Argivai,Póvoa de Varzim
Porto, Vila do Conde, Vila do Conde
229 000 €
Lote de Terreno Venda em Campanhã,Porto
Porto, Porto, Campanhã
1 700 000 €
Partilha o imóvel: Lote para moradia com projecto
Partilha este imóvel nas tuas redes sociais ou envia diretamente para o email dos teus amigos.
Partilhar por email
Adicione uma nota ao imóvel!
Só você é que vê as notas que adiciona. Os imóveis com notas ficam nos favoritos para os poder consultar mais tarde.
Excluíste o anúncio:
Lote para moradia com projecto