Pesquisar perto de mim
A aguardar a sua pesquisa
Voltar
Lote para construção de moradia com projecto aprovado - São Bras de Alportel.
Lote para construção de moradia com projecto aprovado - São Bras de Alportel.
Lote para construção de moradia com projecto aprovado - São Bras de Alportel.
Lote para construção de moradia com projecto aprovado - São Bras de Alportel.
Ver galeria (30)
Ver galeria (30)
Seguir
Partilhar

Lote para construção de moradia com projecto aprovado - São Bras de Alportel.

Faro, São Brás de Alportel, São Brás de Alportel Ver no mapa
160 000 €
0 Quartos
0 WC's
Área Bruta: 203,28m2
Certificação Energética: A

Descrição do anúncio

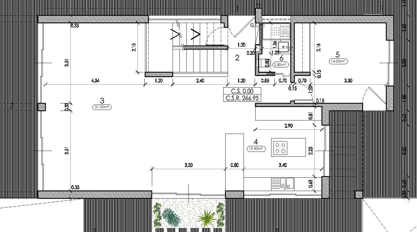
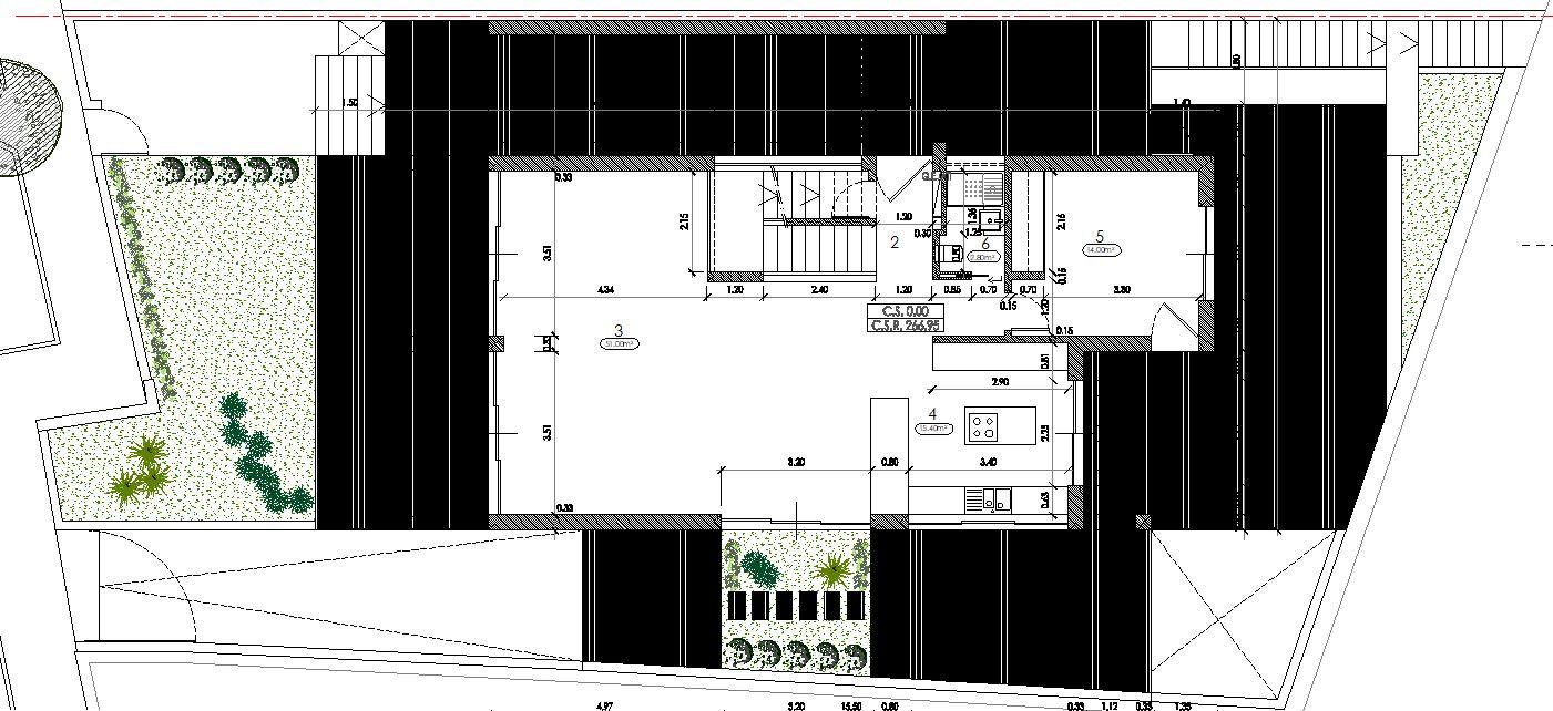
Lote de Terreno com 397.25 m2 com projeto aprovado para a construção de moradia T4 com cave, inserida num condomínio privado com 11 moradias, com piscina comum.
A licença de construção foi emitida em 9 de Dezembro de 2022, válidas por 18 meses (prorrogáveis).

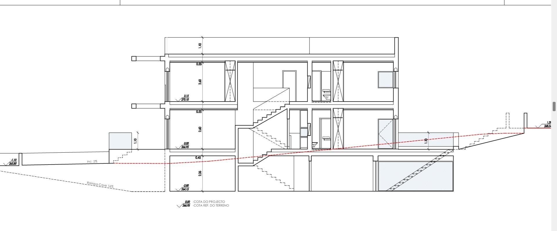
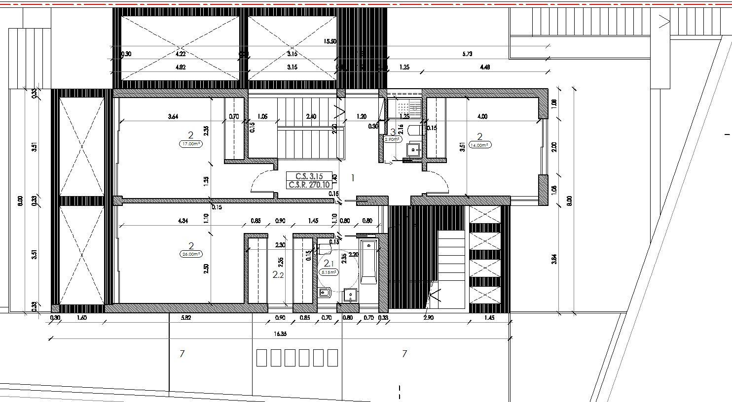
O projeto será para uma moradia de 2 pisos com 4 Quartos, cave com 242.48m2 , logradouro a frente e a trás.
Com localização privilegiada para quem gosta de viver num local tranquilo, contudo a apenas 3 minutos do centro de São Brás e de todos os serviços e escolas.
Venha conhecer este projeto e construa a sua casa de sonho!

Área total do lote: 397.25m²
Área de implantação do edifício: 113,25 m²
Área coberta (cave + piso 0 + piso 1) : 452.85m2

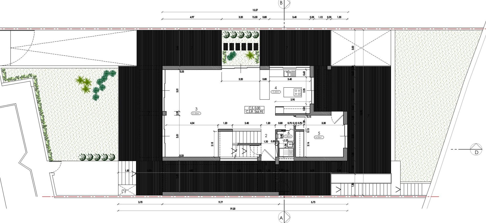
Rés-do-chão (113.25m2)
- Sala ampla com 51m2
- Cozinha com 15.40m2
- 1 WC completo
- 1 Quarto com 14m2

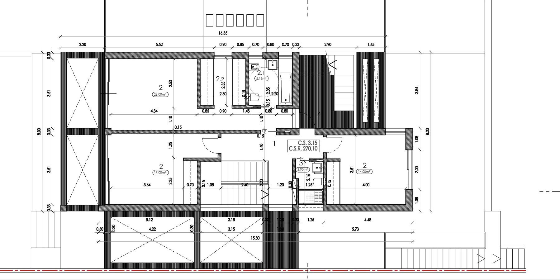
1 º Piso (102.25m2)
- 1 Quarto com WC privativo e Closet (26m2)
- 1quarto com roupeiro (17m2)
- 1 Quarto com roupeiro (14m2)
- 1 WC completo

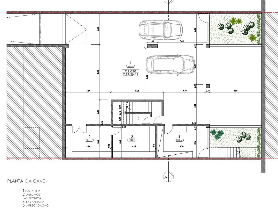
Cave (237.35m2)
- Cave ampla com possibilidade de estacionamento para vários carros, não só com acesso ao interior da moradia, bem como acesso direto ao logradouro de trás.
- Arrumos
- Zona Técnica
- Lavandaria
- Arrecadação
- Zona de Jardim

Cobertura (102.25m2)

Excelente oportunidade de investimento!!

Galeria do imóvel

Lote para construção de moradia com projecto aprovado - São Bras de Alportel.
Lote para construção de moradia com projecto aprovado - São Bras de Alportel.
Lote para construção de moradia com projecto aprovado - São Bras de Alportel.
Lote para construção de moradia com projecto aprovado - São Bras de Alportel.
Lote para construção de moradia com projecto aprovado - São Bras de Alportel.
Lote para construção de moradia com projecto aprovado - São Bras de Alportel.

Localização do imóvel

Faro, São Brás de Alportel, São Brás de Alportel

Referência do anúncio: CS-LOTM-91888. Última atualização: 04 outubro 2025.

Relatório de preços praticados nos últimos 8 meses

Faro, São Brás de Alportel, São Brás de Alportel

Simule um Crédito Habitação

Os dados apresentados são meramente indicativos. Condições gerais
Seguir
Partilhar
Around The Sun - Unip Lda
AMI 10136
Nome
Email
Contacto
Formato inválido
Agende uma visita
Referência do anúncio: CS-LOTM-91888.
Última atualização: 04 outubro 2025.
Contactar
Veja também
Anúncios na mesma zona
Lote com projeto aprovado
Faro, São Brás de Alportel, São Brás de Alportel
250 000 €
Terreno com Projeto Aprovado com Excelente Localização
Faro, Loulé, Almancil
420 000 €
Terreno com Projeto Aprovado com Vista Mar com Excelente Localização perto de Almancil
Faro, Loulé, Loulé (São Clemente)
1 250 000 €
Terreno constructivel com projeto aprovado
Faro, Loulé, Loulé (São Clemente)
215 000 €
Terreno urbano com projeto arquitetônico - Ideal para duas casas geminadas com piscina
Faro, Faro, Santa Bárbara de Nexe
276 000 €
Lote com projecto aprovado para moradia de 3 quartos
Faro, São Brás de Alportel, São Brás de Alportel
150 000 €
Terreno rústico - Boliqueime
Faro, Loulé, Boliqueime
135 000 €
Terreno rústico em belo romão, moncarapacho - olhão
Faro, Olhão, Moncarapacho e Fuseta
12 500 €
TERRENO COM 10.160 M2 - PRÓXIMO A CORTE DO GAGO - CASTRO MARIM - ALGARVE
Faro, Castro Marim, Azinhal
19 000 €
Terreno Para Construção Venda em Loulé (São Clemente),Loulé
Faro, Loulé, Loulé (São Clemente)
250 000 €
Partilha o imóvel: Lote para construção de moradia com projecto aprovado - São Bras de Alportel.
Partilha este imóvel nas tuas redes sociais ou envia diretamente para o email dos teus amigos.
Partilhar por email
Adicione uma nota ao imóvel!
Só você é que vê as notas que adiciona. Os imóveis com notas ficam nos favoritos para os poder consultar mais tarde.
Excluíste o anúncio:
Lote para construção de moradia com projecto aprovado - São Bras de Alportel.