Pesquisar perto de mim
A aguardar a sua pesquisa
Voltar
LOTE PARA CONSTRUÇÃO DE 9 APARTAMENTOS A 2 KM DE PORTIMÃO
LOTE PARA CONSTRUÇÃO DE 9 APARTAMENTOS A 2 KM DE PORTIMÃO
LOTE PARA CONSTRUÇÃO DE 9 APARTAMENTOS A 2 KM DE PORTIMÃO
LOTE PARA CONSTRUÇÃO DE 9 APARTAMENTOS A 2 KM DE PORTIMÃO
Ver galeria (16)
Ver galeria (16)
Seguir
Partilhar

LOTE PARA CONSTRUÇÃO DE 9 APARTAMENTOS A 2 KM DE PORTIMÃO

Faro, Lagoa (Algarve), Estômbar e Parchal Ver no mapa
300 000 €
0 Quartos
0 WC's
Certificação Energética: N/D

Descrição do anúncio

Excelente localização

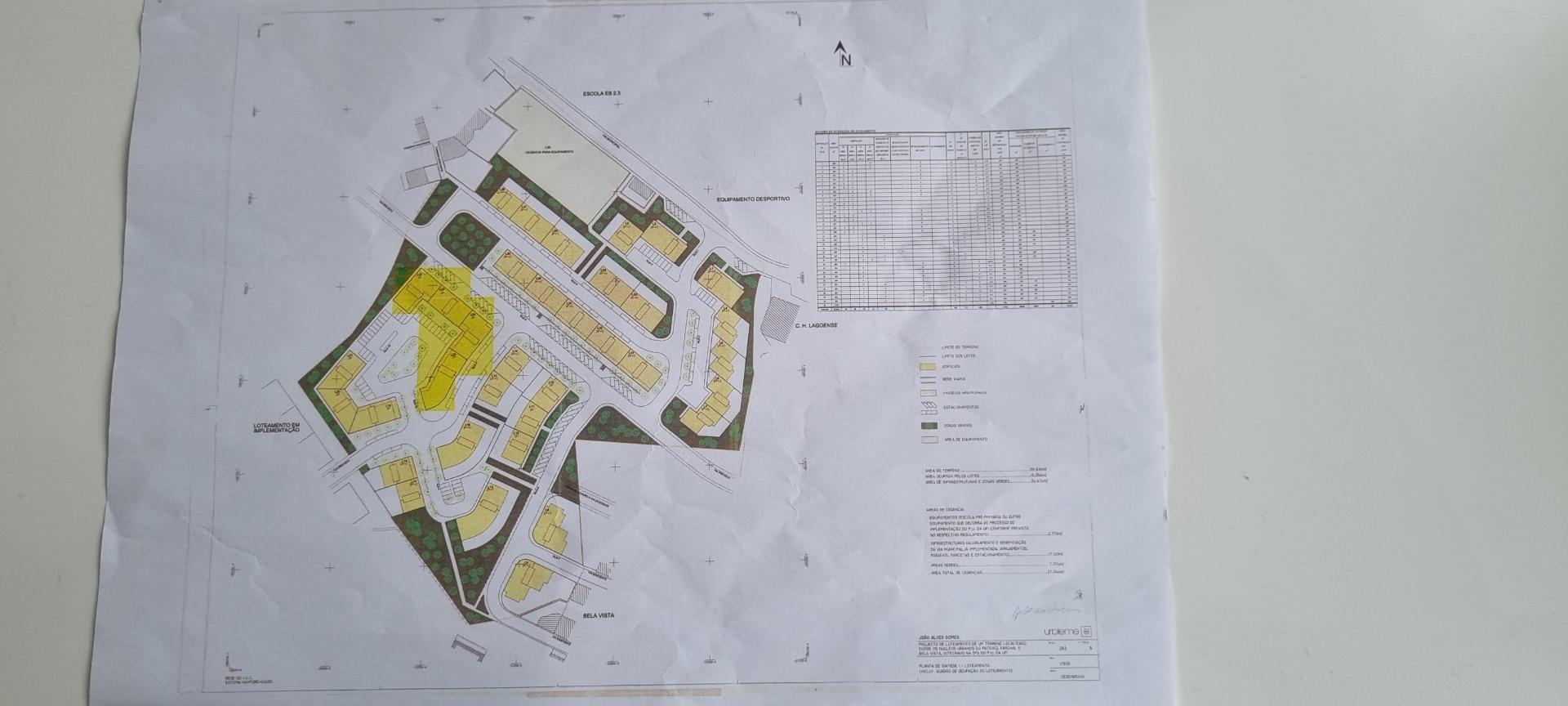
Permite construir 9 apartamentos = 6 apartamentos T2 + 3 apartamentos T3 + 6 estacionamentos

Área de implantação 316 m2

Área total de construção 900 m2

Localizado numa urbanização recebida pela Câmara Municipal de Lagoa, com todas as infraestruturas efetuadas

Localiza-se a 4 Km da praia (praia da Rocha; Ferragudo ou praia dos Caneiros)

Galeria do imóvel

LOTE PARA CONSTRUÇÃO DE 9 APARTAMENTOS A 2 KM DE PORTIMÃO
LOTE PARA CONSTRUÇÃO DE 9 APARTAMENTOS A 2 KM DE PORTIMÃO
LOTE PARA CONSTRUÇÃO DE 9 APARTAMENTOS A 2 KM DE PORTIMÃO
LOTE PARA CONSTRUÇÃO DE 9 APARTAMENTOS A 2 KM DE PORTIMÃO
LOTE PARA CONSTRUÇÃO DE 9 APARTAMENTOS A 2 KM DE PORTIMÃO
LOTE PARA CONSTRUÇÃO DE 9 APARTAMENTOS A 2 KM DE PORTIMÃO

Localização do imóvel

Faro, Lagoa (Algarve), Estômbar e Parchal

Referência do anúncio: 52. Última atualização: 03 maio 2025.

Relatório de preços praticados nos últimos 8 meses

Faro, Lagoa (Algarve), Estômbar e Parchal

Simule um Crédito Habitação

Os dados apresentados são meramente indicativos. Condições gerais
Seguir
Partilhar
Elvar Housing Services Algarve Lda
AMI 19873
Nome
Email
Contacto
Formato inválido
Agende uma visita
Referência do anúncio: 52.
Última atualização: 03 maio 2025.
Contactar
Veja também
Anúncios na mesma zona
Almancil - Terreno com Ruina + Área urbanizável
Faro, Loulé, Almancil
600 000 €
Lote de Terreno Urbano para Construção de Prédio em Lagos
Faro, Lagos, Lagos (São Sebastião e Santa Maria)
1 100 000 €
Terreno Rústico Venda em Almancil,Loulé
Faro, Faro, Santa Bárbara de Nexe
45 000 €
SANTA LUZIA - Terreno para construção
Faro, Tavira, Santa Luzia
900 000 €
MONTE REI - Terreno para construção com vista mar
Faro, Vila Real de Santo António, Vila Nova de Cacela
700 000 €
Lote de Terreno Urbano para Construção de Prédio em Lagos
Faro, Lagos, Lagos (São Sebastião e Santa Maria)
1 200 000 €
Terreno Rústico Venda em Loulé (São Clemente),Loulé
Faro, Loulé, Loulé (São Clemente)
28 500 €
BOLIQUEIME - Lote de terreno para construção
Faro, Loulé, Boliqueime
550 000 €
Wellness Apartments - Lotes 138
Faro, Albufeira, Albufeira e Olhos de Água
8 150 000 €
MORADIA - TURISMO - COM TERRENO DE 6 HECTARES NA ALDEIA DE SÃO MARTINHO - ALCOUTIM - ALGARVE
Faro, Alcoutim, Alcoutim e Pereiro
199 000 €
6
5
Partilha o imóvel: LOTE PARA CONSTRUÇÃO DE 9 APARTAMENTOS A 2 KM DE PORTIMÃO
Partilha este imóvel nas tuas redes sociais ou envia diretamente para o email dos teus amigos.
Partilhar por email
Adicione uma nota ao imóvel!
Só você é que vê as notas que adiciona. Os imóveis com notas ficam nos favoritos para os poder consultar mais tarde.
Excluíste o anúncio:
LOTE PARA CONSTRUÇÃO DE 9 APARTAMENTOS A 2 KM DE PORTIMÃO