Pesquisar perto de mim
A aguardar a sua pesquisa
Voltar
LOTE PARA CONSTRUÇÃO DE 9 APARTAMENTOS A 2 KM DE PORTIMÃO
LOTE PARA CONSTRUÇÃO DE 9 APARTAMENTOS A 2 KM DE PORTIMÃO
LOTE PARA CONSTRUÇÃO DE 9 APARTAMENTOS A 2 KM DE PORTIMÃO
LOTE PARA CONSTRUÇÃO DE 9 APARTAMENTOS A 2 KM DE PORTIMÃO
Ver galeria (16)
Ver galeria (16)
Seguir
Partilhar

LOTE PARA CONSTRUÇÃO DE 9 APARTAMENTOS A 2 KM DE PORTIMÃO

Faro, Lagoa (Algarve), Estômbar e Parchal Ver no mapa
300 000 €
0 Quartos
0 WC's
Certificação Energética: N/D

Descrição do anúncio

Excelente localização

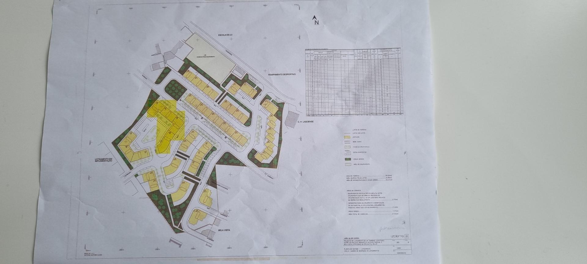
Permite construir 9 apartamentos :
6 apartamentos T2 + 3 apartamentos T3 + 6 estacionamentos

Área de implantação 303 m2

Área total de construção 900 m2

Localizado numa urbanização recebida pela Câmara Municipal de Lagoa, com todas as infraestruturas efetuadas

Localiza-se a 4 Km da praia (praia da Rocha; Ferragudo ou praia dos Caneiros)

Galeria do imóvel

LOTE PARA CONSTRUÇÃO DE 9 APARTAMENTOS A 2 KM DE PORTIMÃO
LOTE PARA CONSTRUÇÃO DE 9 APARTAMENTOS A 2 KM DE PORTIMÃO
LOTE PARA CONSTRUÇÃO DE 9 APARTAMENTOS A 2 KM DE PORTIMÃO
LOTE PARA CONSTRUÇÃO DE 9 APARTAMENTOS A 2 KM DE PORTIMÃO
LOTE PARA CONSTRUÇÃO DE 9 APARTAMENTOS A 2 KM DE PORTIMÃO
LOTE PARA CONSTRUÇÃO DE 9 APARTAMENTOS A 2 KM DE PORTIMÃO

Localização do imóvel

Faro, Lagoa (Algarve), Estômbar e Parchal

Referência do anúncio: 51. Última atualização: 03 maio 2025.

Relatório de preços praticados nos últimos 8 meses

Faro, Lagoa (Algarve), Estômbar e Parchal

Simule um Crédito Habitação

Os dados apresentados são meramente indicativos. Condições gerais
Seguir
Partilhar
Elvar Housing Services Algarve Lda
AMI 19873
Nome
Email
Contacto
Formato inválido
Agende uma visita
Referência do anúncio: 51.
Última atualização: 03 maio 2025.
Contactar
Veja também
Anúncios na mesma zona
Terreno de quase 1 hectar em Portimao com projeto de Construção
Faro, Portimão, Portimão
480 000 €
Terreno Rústico Venda em Luz de Tavira e Santo Estêvão,Tavira
Faro, Tavira, Luz de Tavira e Santo Estêvão
370 000 €
Terreno Misto Venda em Conceição e Estoi,Faro
Faro, Faro, Santa Bárbara de Nexe
140 000 €
Terreno Rústico Venda em Santa Bárbara de Nexe,Faro
Faro, Faro, Santa Bárbara de Nexe
24 000 €
Terreno Urbano Com Projeto Aprovado-Centro De Tavira
Faro, Tavira, Tavira (Santa Maria e Santiago)
165 000 €
Pestana Lote 46
Faro, Silves, Silves
360 000 €
TERRENO RÚSTICO COM 5.160 M2 - PRÓXIMO A FOZ DE ODELEITE - ODELEITE - CASTRO MARIM - ALGARVE
Faro, Castro Marim, Odeleite
12 500 €
Terreno com 2 ruinas junto ao rio
Faro, Portimão, Portimão
255 000 €
TERRENO RÚSTICO COM 15.560 M2 BONS ACESSOS - NA CORTELHA - AZINHAL - CASTRO MARIM - ALGARVE
Faro, Castro Marim, Azinhal
16 000 €
Terreno e ruína para venda
Faro, Castro Marim, Altura
600 000 €
Partilha o imóvel: LOTE PARA CONSTRUÇÃO DE 9 APARTAMENTOS A 2 KM DE PORTIMÃO
Partilha este imóvel nas tuas redes sociais ou envia diretamente para o email dos teus amigos.
Partilhar por email
Adicione uma nota ao imóvel!
Só você é que vê as notas que adiciona. Os imóveis com notas ficam nos favoritos para os poder consultar mais tarde.
Excluíste o anúncio:
LOTE PARA CONSTRUÇÃO DE 9 APARTAMENTOS A 2 KM DE PORTIMÃO