Pesquisar perto de mim
A aguardar a sua pesquisa
Voltar
Lote de Terreno  Venda em Ramalde,Porto
Lote de Terreno  Venda em Ramalde,Porto
Lote de Terreno  Venda em Ramalde,Porto
Lote de Terreno  Venda em Ramalde,Porto
Ver galeria (12)
Ver galeria (12)
Seguir
Partilhar

Lote de Terreno Venda em Ramalde,Porto

Porto, Porto, Ramalde Ver no mapa
450 000 €
0 Quartos
0 WC's
Certificação Energética: N/D
Estado: Usado

Descrição do anúncio

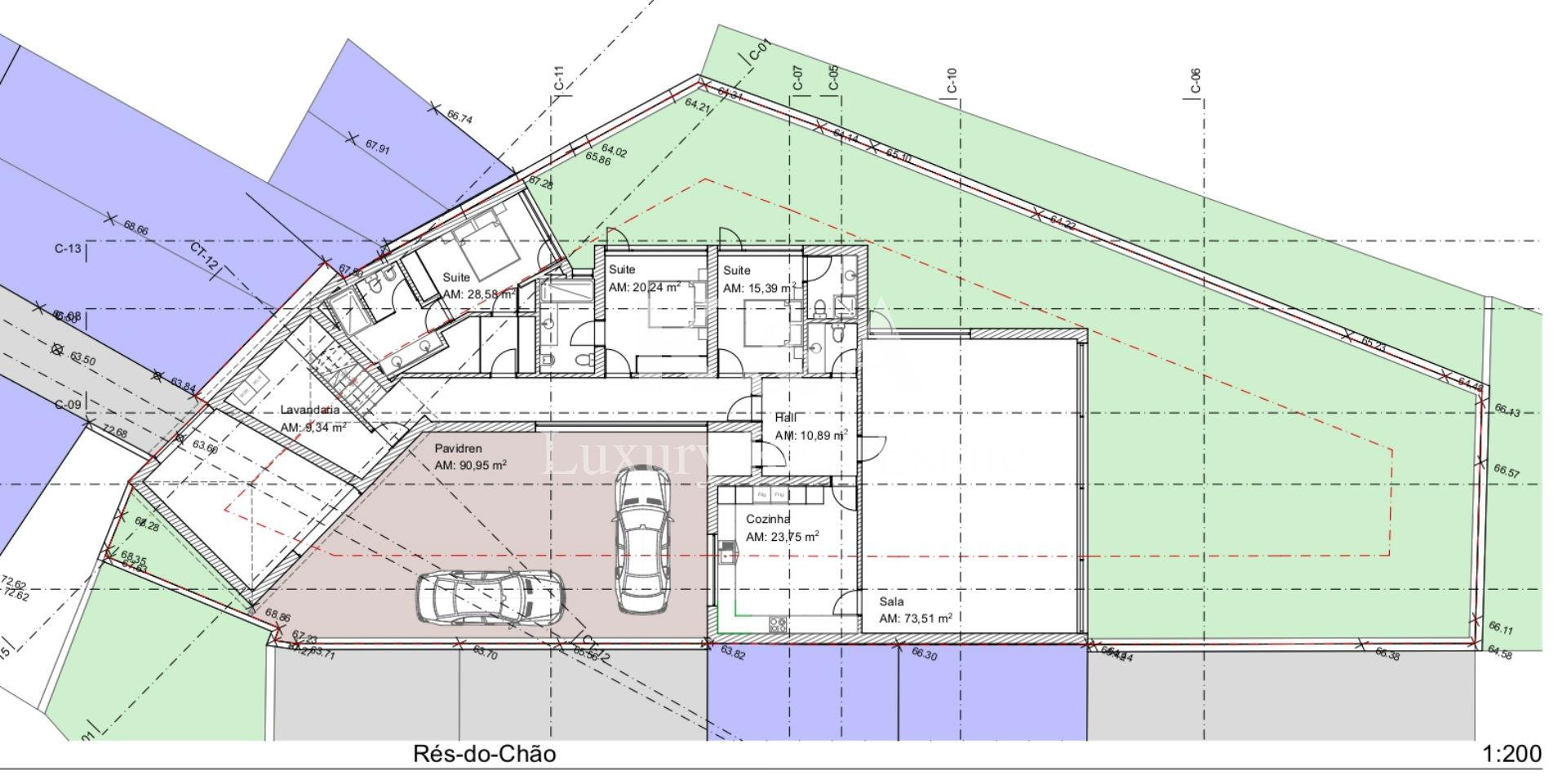
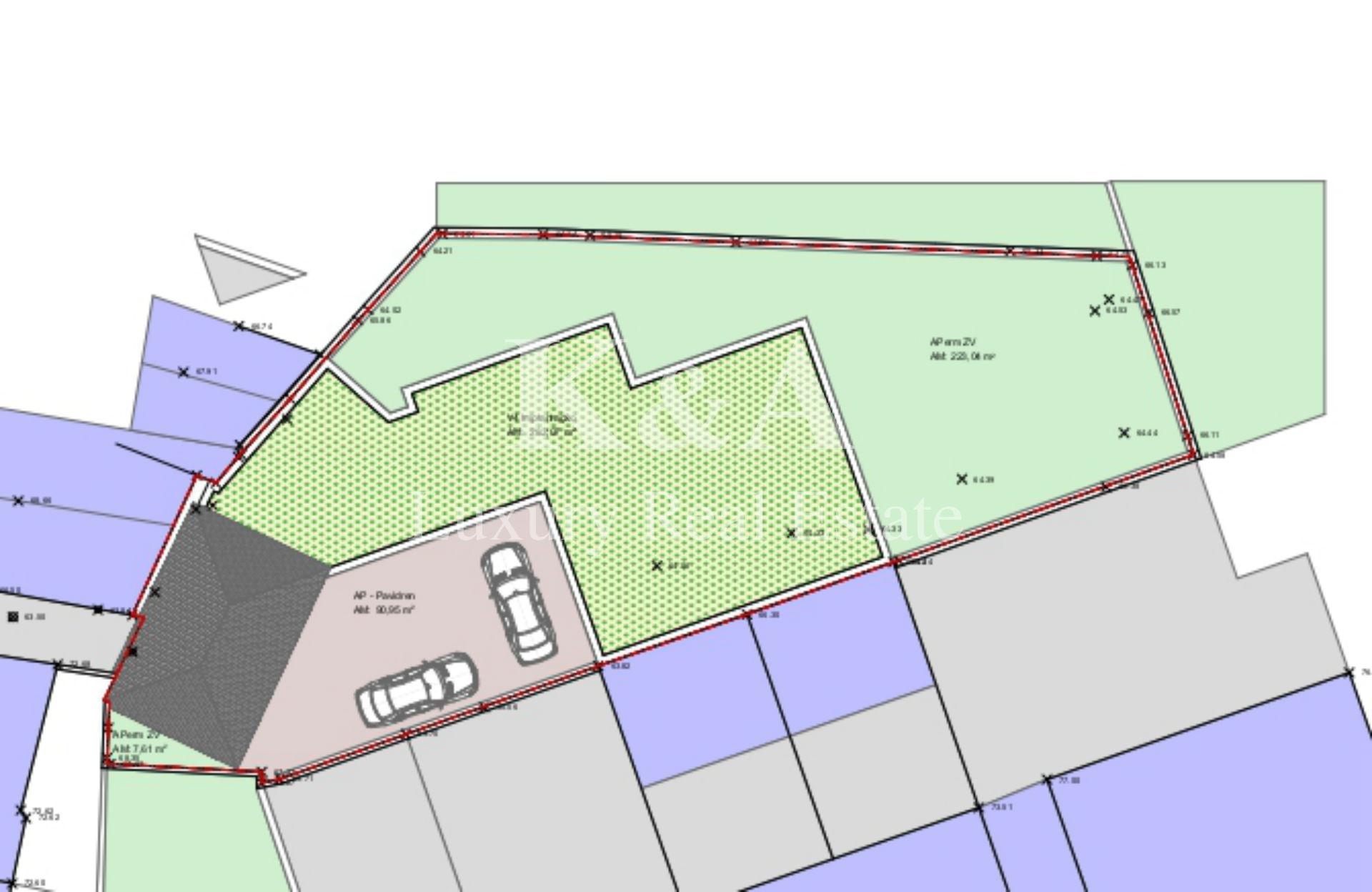
Lote de terreno com 685m2, com capacidade total de construção de 336m2, próximo do Pinheiro Manso, na Boavista.

Localiza-se numa zona residencial, perto de todo tipo de serviços.

A KA é uma empresa portuguesa, sediada na Foz, na cidade do Porto, desde 2005.

Estamos presentes em 4 áreas: Residencial, Lazer, Corporate, Hotéis e Resorts.

Na área do Residencial apostamos no mercado de luxo em zonas nobres, onde temos vendido alguns dos melhores imóveis nas zonas onde estamos presentes.

Em 2007 decidimos investir também na Baixa do Porto e na sua reabilitação urbana.

Em 2008 fomos a primeira mediadora oficial portuguesa da SRU – Porto Vivo e ao longo destes anos temos dado o nosso contributo para a tão necessária reabilitação do centro histórico do Porto.

Em 2017 mudamos a nossa sede para a marginal da Foz, onde abrimos uma “flagship” da KA com grande visibilidade.

Em 2019, consolidamos a nossa equipa, participamos nos primeiros Salões Imobiliários e lançamos a primeira revista KA.

Em Janeiro de 2020 criamos o movimento de apoio a uma causa nobre: “Let’s help the homeless” - Vamos conseguir casa para os sem-abrigo do Porto.

Em Setembro de 2020 expandimos a marca KA para outras zonas do País, nomeadamente no Triangulo Dourado, Algarve.

Em 2022 abrimos uma nova loja no Algarve, localizada estrategicamente entre Vale de Lobo e Quinta do Lago.

Em 2023 iniciamos a participação em feiras internacionais Real Estate.


 

Características Gerais

  • Acesso com Estrada
  • Edificável

Galeria do imóvel

Lote de Terreno  Venda em Ramalde,Porto
Lote de Terreno  Venda em Ramalde,Porto
Lote de Terreno  Venda em Ramalde,Porto
Lote de Terreno  Venda em Ramalde,Porto
Lote de Terreno  Venda em Ramalde,Porto
Lote de Terreno  Venda em Ramalde,Porto

Localização do imóvel

Porto, Porto, Ramalde

Referência do anúncio: KA3609. Última atualização: 04 abril 2024.

Relatório de preços praticados nos últimos 8 meses

Porto, Porto, Ramalde

Simule um Crédito Habitação

Os dados apresentados são meramente indicativos. Condições gerais
Seguir
Partilhar
KENDALL & ASSOCIADO, MEDIAÇÃO IMOBILIÁRIA LDA / K & A Real Estate
AMI 6340
226 ...
Chamada para a rede fixa nacional
Mostrar número
Nome
Email
Contacto
Formato inválido
Agende uma visita
Referência do anúncio: KA3609.
Última atualização: 04 abril 2024.
Contactar
Veja também
Anúncios na mesma zona
Terreno de 583 m2 a 5 min. do Hospital São João!
Porto, Matosinhos, Custóias, Leça do Balio e Guifões
825 000 €
Moradias terreno 1.601m2-pip aprov.-candal-gaia
Porto, Vila Nova de Gaia, Mafamude e Vilar do Paraíso
350 000 €
Terreno para construção em Vilarinho (Santo Tirso)
Porto, Lousada, Lustosa e Barrosas (Santo Estêvão)
55 000 €
Terreno Para Construção Venda em São Mamede de Infesta e Senhora da Hora,Matosinhos
Porto, Matosinhos, São Mamede de Infesta e Senhora da Hora
850 000 €
Terreno de gaveto para construção de moradia em Rio Tinto
Porto, Gondomar, Rio Tinto
115 000 €
Terreno Agrícola com 1.840 m² em Silvares, Lousada
Porto, Lousada, Silvares, Pias, Nogueira e Alvarenga
7 000 €
Terreno
Porto, Penafiel, Galegos
59 000 €
Terreno de construção com 2.800 m² em Sousela, Lousada
Porto, Lousada, Sousela
120 000 €
Terreno p/construção de moradia com 3 frentes em milheirós, maia
Porto, Maia, Milheirós
70 000 €
Terreno de 2.259 m2 com Moradia T3 para demolição em Leça do Balio! Matosinhos! Porto!
Porto, Matosinhos, Custóias, Leça do Balio e Guifões
2 450 000 €
Partilha o imóvel: Lote de Terreno Venda em Ramalde,Porto
Partilha este imóvel nas tuas redes sociais ou envia diretamente para o email dos teus amigos.
Partilhar por email
Adicione uma nota ao imóvel!
Só você é que vê as notas que adiciona. Os imóveis com notas ficam nos favoritos para os poder consultar mais tarde.
Excluíste o anúncio:
Lote de Terreno Venda em Ramalde,Porto