Pesquisar perto de mim
A aguardar a sua pesquisa
Voltar
Lote de Terreno com projeto aprovado
Lote de Terreno com projeto aprovado
Lote de Terreno com projeto aprovado
Lote de Terreno com projeto aprovado
Ver galeria (11)
Ver galeria (11)
Seguir
Partilhar

Lote de Terreno com projeto aprovado

Porto, Vila Nova de Gaia, Gulpilhares e Valadares Ver no mapa
214 000 €
0 Quartos
0 WC's
Certificação Energética: N/D

Descrição do anúncio

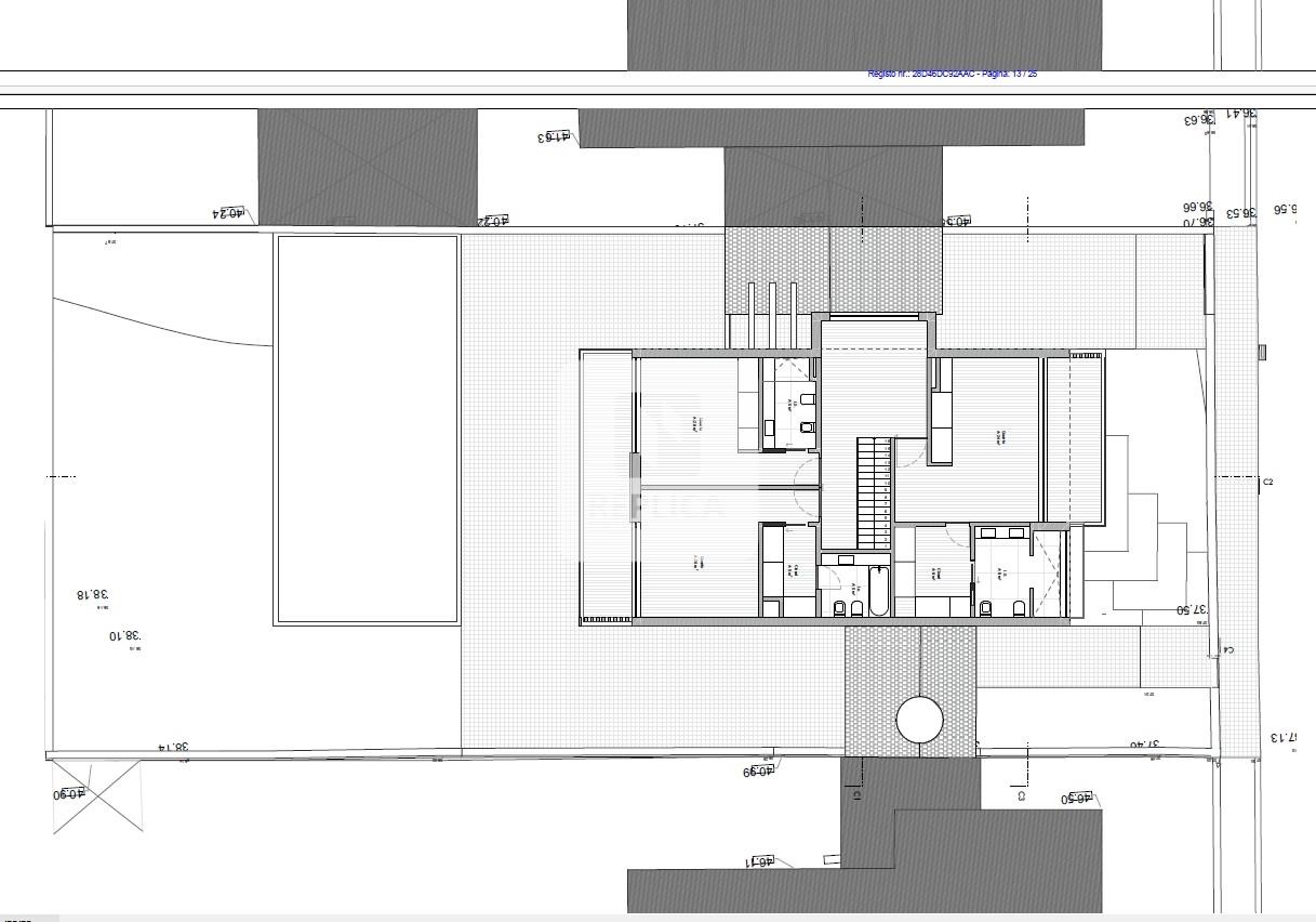
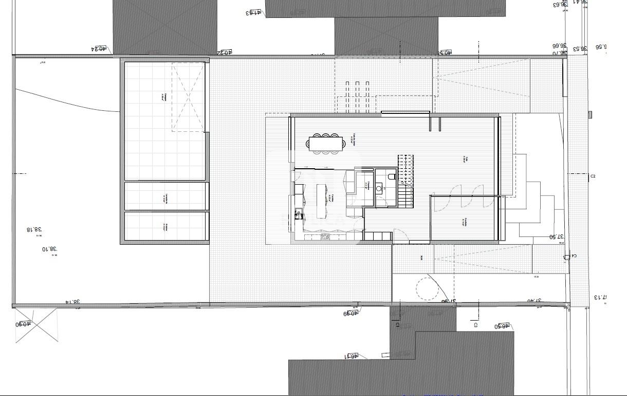
Lote terreno com projeto aprovado para moradia 4 frentes

Localizado a 1300m da praia, em zona puramente residencial, com apoio de transportes públicos, escola primária, hipermercado e farmácia.
A praia de Francelos com um extenso areal convida a momentos de descanso e a passeios agradáveis junto á orla marítima.
Excelentes acessibilidades para a A29 e A1 respetivamente, com acesso ao Porto, nas melhores condições.

Áreas em projeto:
Área do terreno – 720,00 m2
Área de implantação – 306,00 m2
Habitação com varandas – 169,00 m2
Anexos – 28,00 m2
Garagem – 58,00 m2
Telheiros – 51,00 m2
Área de Construção –
Habitação – 286,00 m2
Anexos – 28,00 m2
Garagem – 58,00 m2
Nº de pisos – 2
Nº de pisos acima da soleira – 2
Nº de pisos abaixo da soleira – 0
N.º de fogos - 1
Uso – Habitação
Tipologia – T3

Venha conhecer a sua nova casa!

Marque já a sua visita junto de um dos nossos consultores imobiliários.

RÉPLICA, uma referência imobiliária.
Com 35 anos de atuação no mercado nacional, aplicamos as boas práticas e metodologias que privilegiam Proprietário e Comprador, proporcionando os melhores resultados para todos os intervenientes.
Trabalhamos com um posicionamento de rigor na prestação de serviços imobiliários, apoiando a nossa atividade na experiência da nossa equipa de profissionais e em soluções eficazes de publicidade e marketing.
Garantimos a máxima discrição e serviço de excelência.
 
Sem preocupações - nós tratamos de tudo.
 

Características Gerais

  • Acesso com Estrada
  • Edificável

Galeria do imóvel

Lote de Terreno com projeto aprovado
Lote de Terreno com projeto aprovado
Lote de Terreno com projeto aprovado
Lote de Terreno com projeto aprovado
Lote de Terreno com projeto aprovado
Lote de Terreno com projeto aprovado

Localização do imóvel

Porto, Vila Nova de Gaia, Gulpilhares e Valadares

Referência do anúncio: RN0234. Última atualização: 10 setembro 2025.

Relatório de preços praticados nos últimos 8 meses

Porto, Vila Nova de Gaia, Gulpilhares e Valadares

Simule um Crédito Habitação

Os dados apresentados são meramente indicativos. Condições gerais
Seguir
Partilhar
Habimaison Med. Imobiliária Unip., Lda.
AMI 20572
220 ...
Chamada para a rede fixa nacional
Mostrar número
Nome
Email
Contacto
Formato inválido
Agende uma visita
Referência do anúncio: RN0234.
Última atualização: 10 setembro 2025.
Contactar
Veja também
Anúncios na mesma zona
Terreno para construção
Porto, Gondomar, Baguim do Monte (Rio Tinto)
80 000 €
Lote de Terreno Venda em Madalena,Vila Nova de Gaia
Porto, Vila Nova de Gaia, Madalena
830 250 €
Terreno em Serzedo e Perosinho - Vila Nova de Gaia
Porto, Vila Nova de Gaia, Serzedo e Perosinho
140 000 €
Terreno em Serzedo e Perosinho - Vila Nova de Gaia
Porto, Vila Nova de Gaia, Serzedo e Perosinho
130 000 €
Terreno Venda em Águas Santas,Maia
Porto, Maia, Águas Santas
75 000 €
Terreno rústico com 8.000m2 em Lustosa, Lousada
Porto, Lousada, Lustosa e Barrosas (Santo Estêvão)
25 000 €
Lote de Terreno Venda em Gulpilhares e Valadares,Vila Nova de Gaia
Porto, Vila Nova de Gaia, Gulpilhares e Valadares
3 400 000 €
Lote de Terreno Venda em Touguinha e Touguinhó,Vila do Conde
Porto, Vila do Conde, Touguinha e Touguinhó
320 000 €
Terreno Rústico de construção com 2.135m2 em Lustosa, Lousada
Porto, Lousada, Lustosa e Barrosas (Santo Estêvão)
67 000 €
Lote de Terreno Venda em Serzedo e Perosinho,Vila Nova de Gaia
Porto, Vila Nova de Gaia, Serzedo e Perosinho
221 000 €
Partilha o imóvel: Lote de Terreno com projeto aprovado
Partilha este imóvel nas tuas redes sociais ou envia diretamente para o email dos teus amigos.
Partilhar por email
Adicione uma nota ao imóvel!
Só você é que vê as notas que adiciona. Os imóveis com notas ficam nos favoritos para os poder consultar mais tarde.
Excluíste o anúncio:
Lote de Terreno com projeto aprovado