Pesquisar perto de mim
A aguardar a sua pesquisa
Voltar
Lote de 433m² em Souto com Projeto Aprovado, Licença em Pagamento
Lote de 433m² em Souto com Projeto Aprovado, Licença em Pagamento
Lote de 433m² em Souto com Projeto Aprovado, Licença em Pagamento
Lote de 433m² em Souto com Projeto Aprovado, Licença em Pagamento
Ver galeria (14)
Ver galeria (14)
Seguir
Partilhar

Lote de 433m² em Souto com Projeto Aprovado, Licença em Pagamento

Aveiro, Santa Maria da Feira, São Miguel do Souto e Mosteirô Ver no mapa
65 000 €
0 Quartos
0 WC's
Certificação Energética: N/D
Estado: Em Projecto

Descrição do anúncio

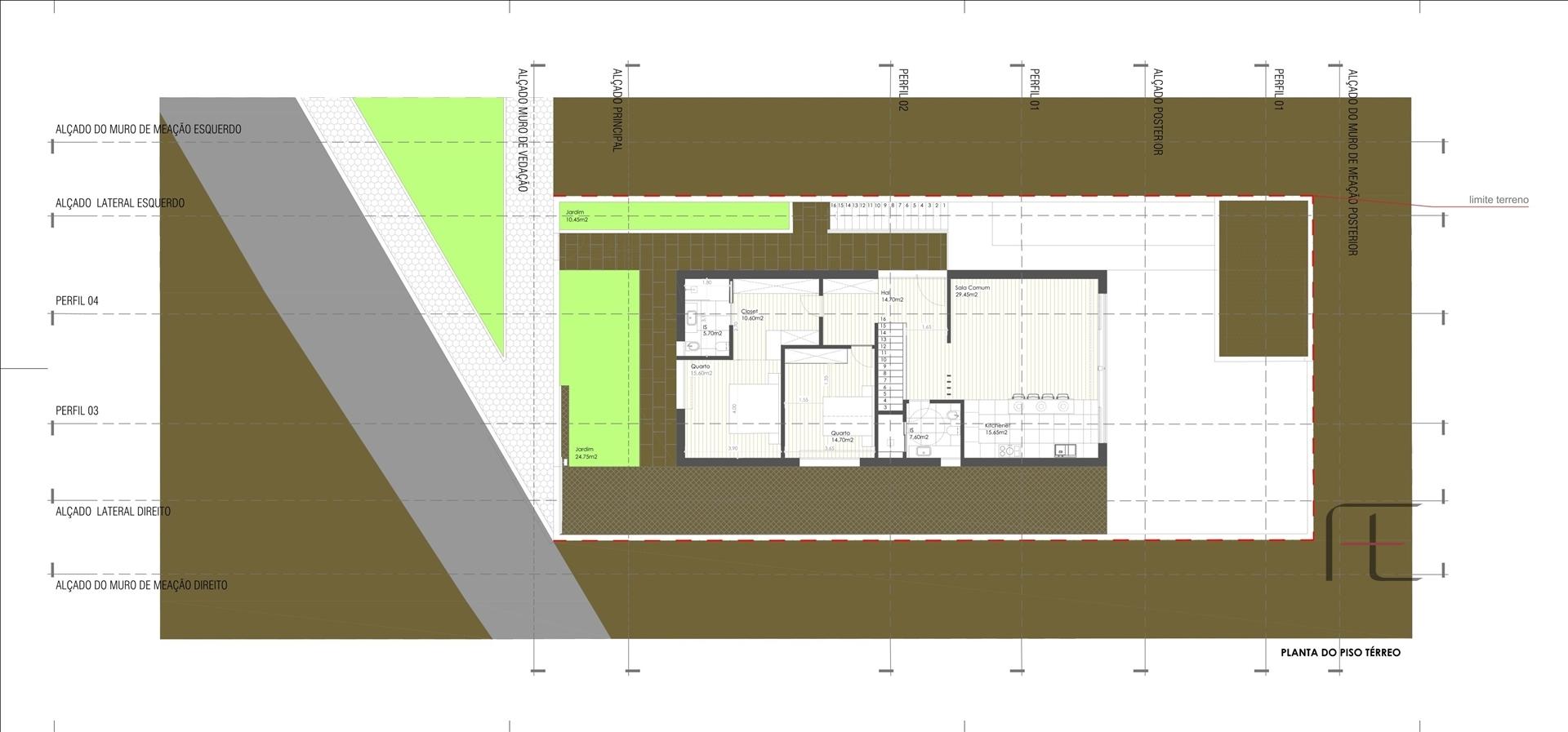
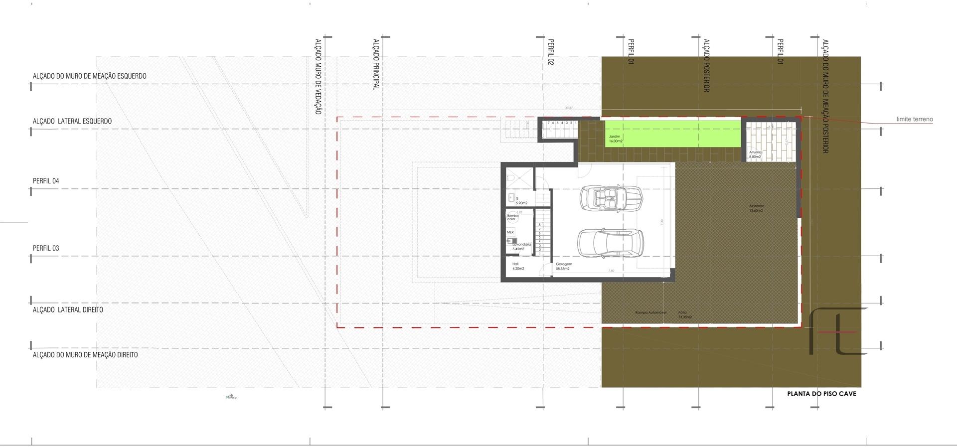
Lote de 433m² em Souto com Projeto Aprovado – Construa Já!

Sim, a moradia das fotos pode começar a ganhar forma amanhã!

Apresentamos uma oportunidade única para quem procura exclusividade e rapidez. Este lote de terreno, com 433 m², localizado em Souto, Santa Maria da Feira, destaca-se por estar totalmente pronto a edificar.

Esqueça as longas esperas por licenciamentos. Este imóvel conta com um projeto de arquitetura contemporânea já APROVADO (licença de construção em fase de pagamento), permitindo-lhe iniciar a obra de imediato.

Destaques do Projeto:
Design de Vanguarda: Moradia de linhas modernas com uma combinação sofisticada de betão e pedra natural.
Luminosidade: Grandes vãos envidraçados que garantem uma ligação perfeita entre o interior e o exterior.
Funcionalidade: Garagem ampla, áreas sociais em open-space e espaços exteriores pensados para o lazer e privacidade.
Localização: Zona calma e residencial, com excelentes acessos às cidades de Santa Maria da Feira, São João da Madeira, Ovar e às principais vias rápidas.Não perca tempo com burocracias. Entre em contacto para consultar as plantas e detalhes técnicos!

Empresa
Com uma história de sucesso, a Fracção Exacta foi fundada em 2008 e hoje é uma das principais redes imobiliárias em Portugal. Com mais de 20 lojas espalhadas pelo Distrito do Porto, Aveiro, Braga, Lisboa, Algarve e Ilha da Madeira, e uma equipa de mais de 200 colaboradores, estamos presentes em todo o país para atender às necessidades dos nossos clientes.
A nossa filosofia de trabalho é baseada no profissionalismo e no compromisso com a excelência. Cada membro da nossa equipa é dedicado, competente e está sempre focado em encontrar as melhores soluções para os nossos clientes. Acreditamos que só através do rigor e da competência é possível oferecer um serviço de qualidade e superar as expectativas dos nossos clientes.
A nossa visão é ser a maior rede imobiliária em Portugal, 100% portuguesa. Queremos oferecer as melhores condições tanto para os compradores como para os vendedores, criando parcerias duradouras e beneficiando todos os envolvidos no processo de compra e venda de imóveis. Além disso, valorizamos os nossos colaboradores e garantimos as melhores condições para que se destaquem no mercado imobiliário.
Outro ponto importante é que somos um Intermediário de Crédito aprovado pelo Banco de Portugal, o que nos permite oferecer aos nossos clientes condições de financiamento especiais. Assumimos a responsabilidade de tratar de toda a documentação necessária de forma gratuita, para que os nossos clientes possam desfrutar de uma experiência tranquila e sem preocupações.
Na Fracção Exacta, comprometemo-nos em oferecer um serviço de excelência, baseado em valores como integridade, transparência e dedicação. Estamos focados em tornar o processo de compra e venda de imóveis mais simples e eficiente, para que os nossos clientes possam alcançar os seus objetivos de forma rápida e segura.
Se procura um parceiro de confiança para as suas necessidades imobiliárias, venha conhecer a Fracção Exacta. Estamos prontos para o ajudar a encontrar a sua casa de sonho, vender a sua propriedade ou qualquer outra questão relacionada com o mercado imobiliário. Conte connosco para fazer a diferença na sua vida imobiliária.

Características Gerais

  • Acesso com Estrada
  • Edificável

Galeria do imóvel

Lote de 433m² em Souto com Projeto Aprovado, Licença em Pagamento
Lote de 433m² em Souto com Projeto Aprovado, Licença em Pagamento
Lote de 433m² em Souto com Projeto Aprovado, Licença em Pagamento
Lote de 433m² em Souto com Projeto Aprovado, Licença em Pagamento
Lote de 433m² em Souto com Projeto Aprovado, Licença em Pagamento
Lote de 433m² em Souto com Projeto Aprovado, Licença em Pagamento

Localização do imóvel

Aveiro, Santa Maria da Feira, São Miguel do Souto e Mosteirô

Referência do anúncio: 26.4/006. Última atualização: 20 abril 2026.

Relatório de preços praticados nos últimos 8 meses

Aveiro, Santa Maria da Feira, São Miguel do Souto e Mosteirô

Simule um Crédito Habitação

Os dados apresentados são meramente indicativos. Condições gerais
Seguir
Partilhar
FRACÇÃO EXACTA, UNIPESSOAL, LDA
AMI 8866
222 ...
Chamada para a rede fixa nacional
Mostrar número
Nome
Email
Contacto
Formato inválido
Agende uma visita
Referência do anúncio: 26.4/006.
Última atualização: 20 abril 2026.
Contactar
Veja também
Anúncios na mesma zona
Terreno com capacidade para construção
Aveiro, Águeda, Recardães e Espinhel
55 000 €
Loteamento Venda em São Miguel do Souto e Mosteirô,Santa Maria da Feira
Aveiro, Santa Maria da Feira, São Miguel do Souto e Mosteirô
59 000 €
3 terrenos urbanos na gafanha da nazare
Aveiro, Ílhavo, Gafanha da Nazaré
180 000 €
Lote de Terreno com 583,50 M2 - Vende-se - Quintãs (Oliveirinha)
Aveiro, Aveiro, Oliveirinha
60 000 €
Lote de Terreno 5 em Cortegaça
Aveiro, Ovar, Cortegaça
69 500 €
Terreno rústico em Arada
Aveiro, Ovar, Ovar, São João, Arada e São Vicente de Pereira Jusã
20 000 €
Terreno Urbano
Aveiro, Oliveira do Bairro, Palhaça
45 000 €
Lote de Terreno com 588,53 M2 - Vende-se - Quintãs (Oliveirinha)
Aveiro, Aveiro, Oliveirinha
60 000 €
Terreno para construção, Oiã, Oliveira do Bairro
Aveiro, Oliveira do Bairro, Oiã
27 500 €
Três lotes para construção habitacional
Aveiro, Oliveira do Bairro, Oliveira do Bairro
66 000 €
Partilha o imóvel: Lote de 433m² em Souto com Projeto Aprovado, Licença em Pagamento
Partilha este imóvel nas tuas redes sociais ou envia diretamente para o email dos teus amigos.
Partilhar por email
Adicione uma nota ao imóvel!
Só você é que vê as notas que adiciona. Os imóveis com notas ficam nos favoritos para os poder consultar mais tarde.
Excluíste o anúncio:
Lote de 433m² em Souto com Projeto Aprovado, Licença em Pagamento