Pesquisar perto de mim
A aguardar a sua pesquisa
Voltar
Lota para Construção Com Vistas Mar na Areosa
Lota para Construção Com Vistas Mar na Areosa
Lota para Construção Com Vistas Mar na Areosa
Lota para Construção Com Vistas Mar na Areosa
Ver galeria (18)
Ver galeria (18)
Seguir
Partilhar

Lota para Construção Com Vistas Mar na Areosa

Viana do Castelo, Viana do Castelo, Areosa Ver no mapa
80 000 €
0 Quartos
0 WC's
Certificação Energética: N/D

Descrição do anúncio

EXCLUSIVO HABITUAL

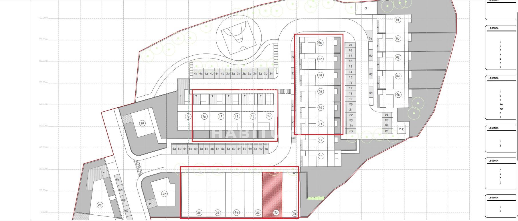
17 Lotes disponíveis para Contração com Vistas Mar na Areosa, Viana Do Castelo
Desde 142 m2 até 269 m2

Excelente  exposição solar com uma envolvência tranquila e agradável, muito próximo do centro da cidade, com vistas deslumbrantes para o mar. Encontram-se ainda perto de serviços e estabelecimentos comerciais.

Para quem aprecia uma paisagem encantadora, este será o sitio ideal para construir a sua casa com esplêndidas vistas para o oceano.

Quer construir a sua casa, nós ajudamos!
Tratamos do financiamento e de todo o processo burocrático, contacte- nos para mais informações.
Financiamos 90% do valor da aquisição.

LOTE 10 (vistas mar)
ÁREA TOTAL DO LOTE: 141,7 M2
ÁREA DE IMPLANTAÇÃO DO EDIFÍCIO: 112 M2
ÁREA BRUTA DE CONSTRUÇÃO: 340 M2
ÁREA BRUTA DEPENDENTE: 108,7 M2

Temos também disponíveis lotes a 70.000€.

Contacte e esclareça todas as suas dúvidas connosco 
961 852 041 (chamada rede móvel nacional)





Nota : A informação aqui prestada , ainda que precisa , requer confirmação antes do fecho do negócio e não pode ser utilizada de forma vinculativa 

A INCLINAÇÃO HABITUAL – MEDIAÇÃO IMOBILIÁRIA, LDA têm formação única no mercado a nível da Intermediação de crédito, com licença de intermediação de crédito autorizada pelo Banco de Portugal com o registo 3200, fazemos a gestão de todo o processo de financiamento, análise do seguro de vida associado aos seu credito habitação, sempre com as melhores condições do mercado e sem qualquer custo associado.

Assim não encontrará burocracias na compra da casa nova, tendo mais tempo livre para desfrutar do que é, verdadeiramente, importante para si e para a sua família.

Com uma preparação e experiência única no mercado imobiliário, os nossos profissionais colocam toda a sua dedicação em dar-lhe o melhor acompanhamento, orientando-o com a máxima confiança, indo de encontro às suas necessidades e ambições.

Temos como objetivo criar uma relação próxima e escutar com atenção as suas expectativas, a nossa prioridade é a sua felicidade! Queremos que se sinta sempre acompanhado!

Características Gerais

  • Acesso com Estrada
  • Edificável

Galeria do imóvel

Lota para Construção Com Vistas Mar na Areosa
Lota para Construção Com Vistas Mar na Areosa
Lota para Construção Com Vistas Mar na Areosa
Lota para Construção Com Vistas Mar na Areosa
Lota para Construção Com Vistas Mar na Areosa
Lota para Construção Com Vistas Mar na Areosa

Localização do imóvel

Viana do Castelo, Viana do Castelo, Areosa

Referência do anúncio: ICAMBAO10. Última atualização: 03 julho 2023.

Relatório de preços praticados nos últimos 8 meses

Viana do Castelo, Viana do Castelo, Areosa

Simule um Crédito Habitação

Os dados apresentados são meramente indicativos. Condições gerais
Seguir
Partilhar
INCLINAÇÃO HABITUAL MEDIAÇÃO IMOBILIÁRIA LDA
AMI 9366
258 ...
Chamada para a rede fixa nacional
Mostrar número
Nome
Email
Contacto
Formato inválido
Agende uma visita
Referência do anúncio: ICAMBAO10.
Última atualização: 03 julho 2023.
Contactar
Veja também
Anúncios na mesma zona
Lote para Construção no Requeijo - Arcos de Valdevez
Viana do Castelo, Arcos de Valdevez, Arcos de Valdevez (São Paio) e Giela
165 000 €
Terreno Urbano Paredes de Coura
Viana do Castelo, Paredes de Coura, Mozelos
75 000 €
terreno
Viana do Castelo, Vila Nova de Cerveira, Candemil e Gondar
37 500 €
Terreno com mais de 1.400 m² em Prozelo - Arcos de Valdevez
Viana do Castelo, Arcos de Valdevez, Prozelo
45 000 €
Terreno Urbanizável, murado e com 5.400M2
Viana do Castelo, Viana do Castelo, Freixieiro de Soutelo
140 000 €
Lote de terreno para venda - Ponte da Barca
Viana do Castelo, Ponte da Barca, Ponte da Barca, Vila Nova de Muía e Paço Vedro de Magalhães
60 250 €
Moradia para restauro
Viana do Castelo, Arcos de Valdevez, Cabreiro
60 000 €
3
2
Terreno p/ Construção de Moradia. Portugal, Vila Praia de Âncora.
Viana do Castelo, Viana do Castelo, Freixieiro de Soutelo
68 000 €
Terreno com PIP aprovado em Orbacém
Viana do Castelo, Caminha, Gondar e Orbacém
75 000 €
Lote para Construção no Requeijo - Arcos de Valdevez
Viana do Castelo, Arcos de Valdevez, Arcos de Valdevez (São Paio) e Giela
170 000 €
Partilha o imóvel: Lota para Construção Com Vistas Mar na Areosa
Partilha este imóvel nas tuas redes sociais ou envia diretamente para o email dos teus amigos.
Partilhar por email
Adicione uma nota ao imóvel!
Só você é que vê as notas que adiciona. Os imóveis com notas ficam nos favoritos para os poder consultar mais tarde.
Excluíste o anúncio:
Lota para Construção Com Vistas Mar na Areosa