Pesquisar perto de mim
A aguardar a sua pesquisa
Voltar
Loja para venda em Telheiras
Loja para venda em Telheiras
Loja para venda em Telheiras
Loja para venda em Telheiras
Ver galeria (17)
Ver galeria (17)
Seguir
Partilhar

Loja para venda em Telheiras

Lisboa, Lisboa, Lumiar Ver no mapa
180 000 €
0 Quartos
1 WC's
114m2
Área Útil: 114m2
Área Bruta: 114m2
Ano de Construção: 1992
Certificação Energética: C
Estado: Usado

Descrição do anúncio

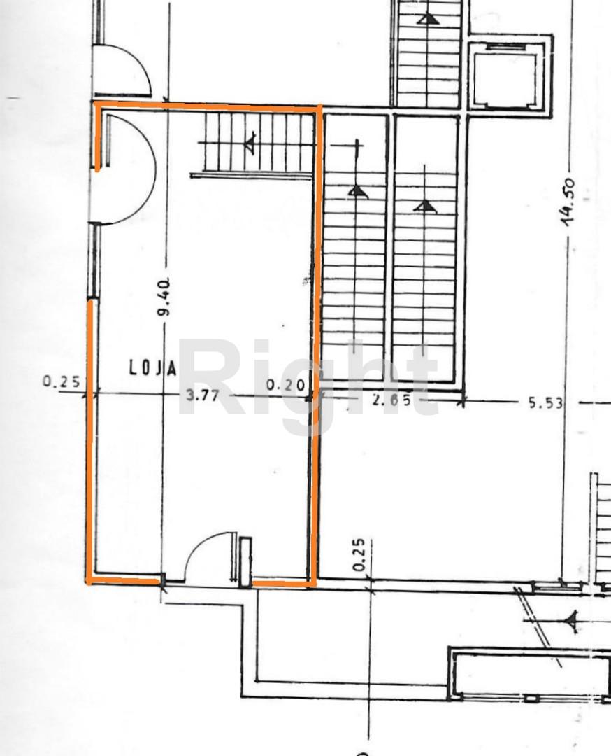
Loja para venda em Telheiras.

A loja encontra-se dividida em 2 pisos (R/C e Cave).

O piso ao nível do R/C tem 36m2 e um pé direito de 3,81m.
O piso inferior tem 78m2, tem uma sala e uma casa de banho, com um pé direto de 3,84m.

Ótima localização, zona envolvente com variado tipo de comércio, serviços, escolas e transportes.
Bons acessos aos principais eixos da cidade (2ª Circular, Eixo Norte/Sul, Avenida Padre Cruz).

O Lumiar é uma das freguesias mais antigas de Lisboa, com mais de 750 anos. Criada a 2 de abril de 1266 chega ao sec. XXI com características muito diferentes. Compreende hoje um território extenso e diverso.
Pertence à Zona Norte da capital.
No século XXI foi inaugurado, no dia 10 de Outubro de 2007, o último troço do Eixo Norte-Sul, facilitando o trânsito de toda a capital portuguesa.
A freguesia do Lumiar é servida pelo parque recreativo Quinta das Conchas e dos Lilases.


Store for sale in Telheiras.

The store is divided into 2 floors (ground floor and basement).

The floor level of the ground floor has 36m2 with a right foot of 3.81m.
The lower floor has 78m2, has a living room and a bathroom with a direct foot of 3.84m.

Great location, surrounding area with varied type of trade, services, schools and transport.
Good access to the main axes of the city (2nd Circular, Axis North / South, Avenida Padre Cruz).

Lumiar is one of the oldest parishes in Lisbon, over 750 years old. Created on April 2, 1266, it has come to the 21st century with very different characteristics. Today it covers an extensive and diverse territory.
It belongs to the northern part of the capital.
In the 21st century, the last section of the North-South Axis was inaugurated on October 10, 2007, facilitating traffic throughout the Portuguese capital.
The parish of Lumiar is served by the Quinta das Conchas and Lilases recreational park.
 

Galeria do imóvel

Loja para venda em Telheiras
Loja para venda em Telheiras
Loja para venda em Telheiras
Loja para venda em Telheiras
Loja para venda em Telheiras
Loja para venda em Telheiras

Localização do imóvel

Lisboa, Lisboa, Lumiar

Referência do anúncio: S-2796. Última atualização: 26 janeiro 2024.

Relatório de preços praticados nos últimos 8 meses

Lisboa, Lisboa, Lumiar

Simule um Crédito Habitação

Os dados apresentados são meramente indicativos. Condições gerais
Seguir
Partilhar
Right Solution
AMI 9645
+35 ...
Chamada para a rede fixa nacional
Mostrar número
Nome
Email
Contacto
Formato inválido
Agende uma visita
Referência do anúncio: S-2796.
Última atualização: 26 janeiro 2024.
Contactar
Veja também
Anúncios na mesma zona
Studio T0 na Praia das Maças, Sintra
Lisboa, Sintra, Colares
399 078 €
1
Loja Comercial para venda na Rua da Azenha em Mem Martins
Lisboa, Sintra, Algueirão-Mem Martins
140 000 €
Apart-hotel T1 na Praia das Maçãs, Sintra
Lisboa, Sintra, Colares
554 758 €
1
1
Espaço Comercial junto ao Mar na Parede
Lisboa, Cascais, Carcavelos e Parede
375 000 €
2
Excelente oportunidade para adquirir um espaço comercial em belas!
Lisboa, Sintra, Queluz e Belas
145 000 €
Apart-hotel T1 na Praia das Maçãs, Sintra
Lisboa, Sintra, Colares
864 076 €
1
1
Loja em belas - boa localização
Lisboa, Sintra, Queluz e Belas
155 000 €
Studio T0 na Praia das Maças, Sintra
Lisboa, Sintra, Colares
328 653 €
1
Loja Trespasse em Avenidas Novas,Lisboa
Lisboa, Lisboa, Avenidas Novas
79 000 €
3
1
Loja Venda em Póvoa de Santa Iria e Forte da Casa,Vila Franca de Xira
Lisboa, Vila Franca de Xira, Póvoa de Santa Iria e Forte da Casa
30 000 €
Partilha o imóvel: Loja para venda em Telheiras
Partilha este imóvel nas tuas redes sociais ou envia diretamente para o email dos teus amigos.
Partilhar por email
Adicione uma nota ao imóvel!
Só você é que vê as notas que adiciona. Os imóveis com notas ficam nos favoritos para os poder consultar mais tarde.
Excluíste o anúncio:
Loja para venda em Telheiras