Pesquisar perto de mim
A aguardar a sua pesquisa
Voltar
Loja comercial em Rio de Mouro, Sintra
Loja comercial em Rio de Mouro, Sintra
Loja comercial em Rio de Mouro, Sintra
Loja comercial em Rio de Mouro, Sintra
Ver galeria (31)
Ver galeria (31)
Seguir
Partilhar

Loja comercial em Rio de Mouro, Sintra

Lisboa, Sintra, Rio de Mouro Ver no mapa
2 100 € /mês
0 Quartos
2 WC's
170m2
Área Útil: 170m2
Área Bruta: 170m2
Ano de Construção: 1992
Certificação Energética: D

Descrição do anúncio

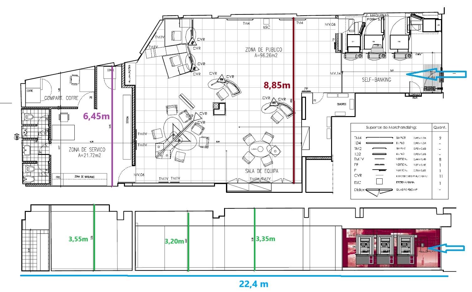
Funcional loja com 170 m2, em Rio de Mouro, Sintra.

Esta loja costumava funcionar como uma agencia bancária. Possui eletricidade trifásica (até 60A) e ligação de água. Pé-direito médio de 3,25 a 3,50 metros.

Constituída por montra de entrada, ampla divisão, sala reuniões, 3 salas técnicas/arrumos, copa com lavatório, e casas de banho homens e senhoras. Medidas aproximadas 8,5 metros de largura, por 21 metros de profundidade.

Localização habitacional com bastante comercio na proximidade da Estação de Comboios de Rio de Mouro, Sintra.

Venha conhecer e desenvolva a Sua atividade!

Galeria do imóvel

Loja comercial em Rio de Mouro, Sintra
Loja comercial em Rio de Mouro, Sintra
Loja comercial em Rio de Mouro, Sintra
Loja comercial em Rio de Mouro, Sintra
Loja comercial em Rio de Mouro, Sintra
Loja comercial em Rio de Mouro, Sintra

Localização do imóvel

Lisboa, Sintra, Rio de Mouro

Referência do anúncio: BOT_4062. Última atualização: 29 janeiro 2026.

Relatório de preços praticados nos últimos 8 meses

Lisboa, Sintra, Rio de Mouro

Simule um Crédito Habitação

Os dados apresentados são meramente indicativos. Condições gerais
Seguir
Partilhar
Carpe Domus Consultadoria E Mediacao Imob Lda
AMI 9466
Nome
Email
Contacto
Formato inválido
Agende uma visita
Referência do anúncio: BOT_4062.
Última atualização: 29 janeiro 2026.
Contactar
Veja também
Anúncios na mesma zona
Loja no Centro Comercial das Palmeiras em Oeiras. Oportunidade Única
Lisboa, Oeiras, Oeiras e São Julião da Barra, Paço de Arcos e Caxias
2 000 € /Mês
Loja Arrendamento em Mina de Água,Amadora
Lisboa, Amadora, Mina de Água
1 500 € /Mês
Loja t1 +1
Lisboa, Lisboa, Benfica
850 € /Mês
Loja ou Armazém com 128m2 no Casal Novo em Caneças - Odivelas
Lisboa, Sintra, Casal de Cambra
1 250 € /Mês
2
Loja ou Armazém com 128m2 no Casal Novo em Caneças - Odivelas
Lisboa, Sintra, Casal de Cambra
1 250 € /Mês
2
Espaço flexível de 490m2 p/ Comércio, Escritório, Showroom, Coworking. Portugal, Lisboa, Alverca.
Lisboa, Vila Franca de Xira, Alverca do Ribatejo e Sobralinho
6 240 € /Mês
1
OPORTUNIDADE RESTAURANTE NA GRAÇA
Lisboa, Lisboa, São Vicente
2 000 € /Mês
Espaço Comercial com 2 pisos, em São Domingos de Rana
Lisboa, Cascais, São Domingos de Rana
2 950 € /Mês
2
Loja no Centro Comercial das Palmeiras em Oeiras. Oportunidade Única
Lisboa, Oeiras, Oeiras e São Julião da Barra, Paço de Arcos e Caxias
750 € /Mês
Loja | belas - queluz | sintra
Lisboa, Sintra, Queluz e Belas
1 100 € /Mês
Partilha o imóvel: Loja comercial em Rio de Mouro, Sintra
Partilha este imóvel nas tuas redes sociais ou envia diretamente para o email dos teus amigos.
Partilhar por email
Adicione uma nota ao imóvel!
Só você é que vê as notas que adiciona. Os imóveis com notas ficam nos favoritos para os poder consultar mais tarde.
Excluíste o anúncio:
Loja comercial em Rio de Mouro, Sintra