Pesquisar perto de mim
A aguardar a sua pesquisa
Voltar
Hotel no Freixo
Hotel no Freixo
Hotel no Freixo
Hotel no Freixo
Ver galeria (12)
Ver galeria (12)
Seguir
Partilhar

Hotel no Freixo

Porto, Gondomar, Gondomar (São Cosme), Valbom e Jovim Ver no mapa
3 300 000 €
0 Quartos
0 WC's
3210m2
Área Útil: 3210m2
Área Bruta: 3210m2
Certificação Energética: Isento
Estado: Em Projecto

Descrição do anúncio

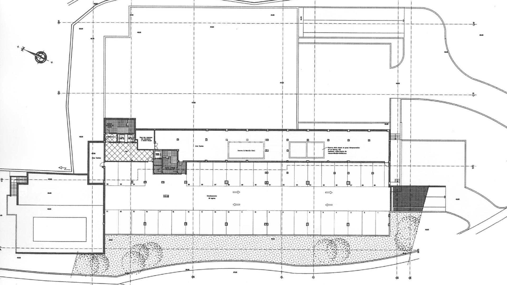
Terreno na zona do Freixo com projeto para construção de Hotel de 4 estrelas.

O terreno tem 6 500 m2 e está excelentemente localizado junto ao nó de acesso da VCI ao Freixo.

Localiza-se na margem do Rio Douro e é visível da Ponte do Freixo / A20 / IP1.

Tem vista panorâmica privilegiada sobre o Rio, as Pontes e as cidades do Porto e Vila Nova de Gaia.

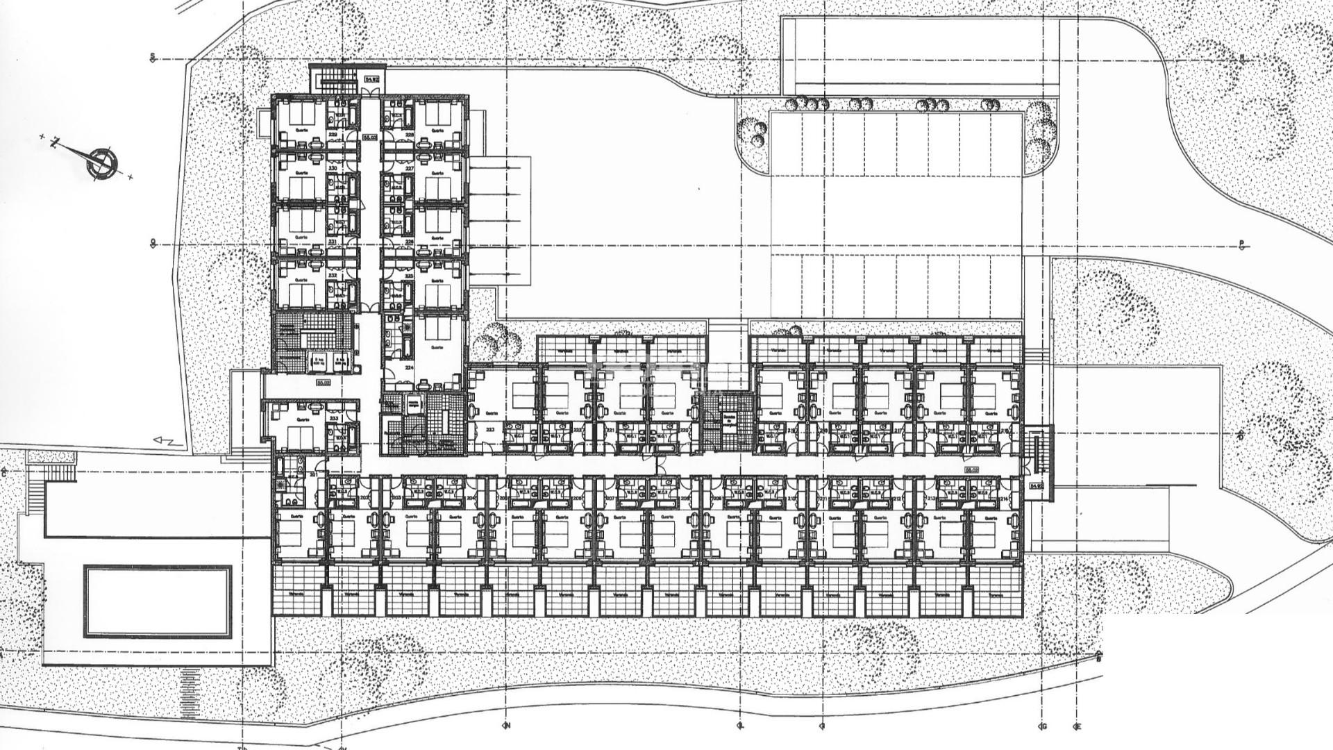
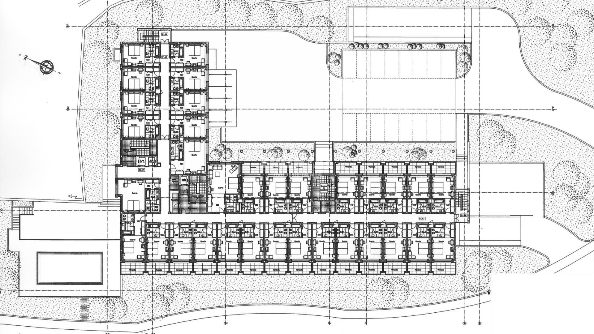
O projeto inicial do Hotel equipa-o com 80 quartos, sendo hoje possível construir mais de 100 quartos, otimizando assim o investimento.

O acesso ao edifício far-se-á por um átrio descoberto, havendo lugar a uma piscina exterior.

Áreas:
• Terreno: 6 500 €;
• Implantação: 1 395 m2;
• Construção: 5 760 m2;

Pisos:
• 3 (hotelaria);
• 2 na cave (estacionamento);

Instalações Complementares:
• Bar e Piscina;
• Balneários;
• 75 lugares de estacionamento em garagem;
• 16 lugares de estacionamento exterior;
• Espaços Verdes;

Frontal, desde 1990.
Carácter e Competência.

--

A FRONTAL distingue-se pela amplitude no serviço de qualidade prestado ao cliente e encara sempre os desafios com rigor e frontalidade.

Segmento Residencial - conta com uma vasta equipa de comerciais, dinâmica e ambiciosa que tem por missão prestar um serviço de excelência, alicerçada numa vasta experiência do mercado, respeitando os mais elevados padrões de ética, descrição e integridade, contribuindo assim para o crescimento da marca e da satisfação dos seus clientes.

Apoiados por um departamento autónomo, trata de todos os processos administrativos e de financiamento acompanhando o cliente até á escritura.
Através da sua rede de Sucursais, Know-How, Dinâmica e Inovação Comercial, apoiada em ferramentas de Marketing, a Frontal responde eficazmente aos desafios que os seus clientes e parceiros possam lançar.

Segmento Empresarial - concentra-se na oferta de soluções diferenciadas a empresas e a clientes empresariais que procuram um produto dotado de um alto grau de especificidade.

Segmento Empreendimentos – tem o seu foco especializado na comercialização de Empreendimentos, contemplando um Serviço Global de Venda, apoiado numa Estratégia de Marketing e Estudo de Mercado, definindo um posicionamento claro e ajustado à dinâmica da oferta e da procura tendo como foco superar as suas expectativas.

Galeria do imóvel

Hotel no Freixo
Hotel no Freixo
Hotel no Freixo
Hotel no Freixo
Hotel no Freixo
Hotel no Freixo

Localização do imóvel

Porto, Gondomar, Gondomar (São Cosme), Valbom e Jovim

Referência do anúncio: FPS-30375. Última atualização: 28 março 2025.

Relatório de preços praticados nos últimos 8 meses

Porto, Gondomar, Gondomar (São Cosme), Valbom e Jovim

Simule um Crédito Habitação

Os dados apresentados são meramente indicativos. Condições gerais
Seguir
Partilhar
DIFRANO - SOCIEDADE DE INVESTIMENTOS IMOBILIÁRIOS LDA (FRONTAL IMOBILIARIA)
AMI 9590
+35 ...
Chamada para a rede fixa nacional
Mostrar número
Nome
Email
Contacto
Formato inválido
Agende uma visita
Referência do anúncio: FPS-30375.
Última atualização: 28 março 2025.
Contactar
Veja também
Anúncios na mesma zona
Loja Venda em Cedofeita, Santo Ildefonso, Sé, Miragaia, São Nicolau e Vitória,Porto
Porto, Porto, Cedofeita, Santo Ildefonso, Sé, Miragaia, São Nicolau e Vitória
475 000 €
FANTÁSTICA LOJA, a poucos metros da Avenida da República
Porto, Vila Nova de Gaia, Santa Marinha e São Pedro da Afurada
480 000 €
1
Loja Venda em Mafamude e Vilar do Paraíso,Vila Nova de Gaia
Porto, Vila Nova de Gaia, Mafamude e Vilar do Paraíso
450 000 €
Restaurante Venda em São Félix da Marinha,Vila Nova de Gaia
Porto, Vila Nova de Gaia, São Félix da Marinha
160 000 €
Loja Venda em Oliveira do Douro,Vila Nova de Gaia
Porto, Vila Nova de Gaia, Oliveira do Douro
345 000 €
INVESTIMENTO | Loja Arrendada | Centro de Gondomar (Souto)
Porto, Gondomar, Gondomar (São Cosme), Valbom e Jovim
59 500 €
Loja Venda em Águas Santas,Maia
Porto, Maia, Águas Santas
28 000 €
Loja Trespasse em Ermesinde,Valongo
Porto, Valongo, Ermesinde
24 000 €
Restaurante Trespasse em Rio Tinto,Gondomar
Porto, Gondomar, Rio Tinto
36 500 €
INVESTIMENTO | 7 Lojas Arrendadas | Centro de Gondomar (Souto)
Porto, Gondomar, Gondomar (São Cosme), Valbom e Jovim
405 400 €
Partilha o imóvel: Hotel no Freixo
Partilha este imóvel nas tuas redes sociais ou envia diretamente para o email dos teus amigos.
Partilhar por email
Adicione uma nota ao imóvel!
Só você é que vê as notas que adiciona. Os imóveis com notas ficam nos favoritos para os poder consultar mais tarde.
Excluíste o anúncio:
Hotel no Freixo