Pesquisar perto de mim
A aguardar a sua pesquisa
Voltar
Fantástico T4 Duplex com acabamentos de Luxo, no Montijo
Fantástico T4 Duplex com acabamentos de Luxo, no Montijo
Fantástico T4 Duplex com acabamentos de Luxo, no Montijo
Fantástico T4 Duplex com acabamentos de Luxo, no Montijo
Ver galeria (25)
Ver galeria (25)
Seguir
Partilhar

Fantástico T4 Duplex com acabamentos de Luxo, no Montijo

Setúbal, Montijo, Atalaia e Alto Estanqueiro-Jardia Ver no mapa
890 000 €
4 Quartos
4 WC's
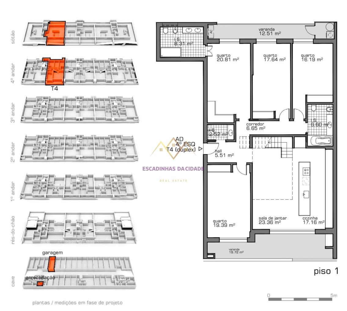
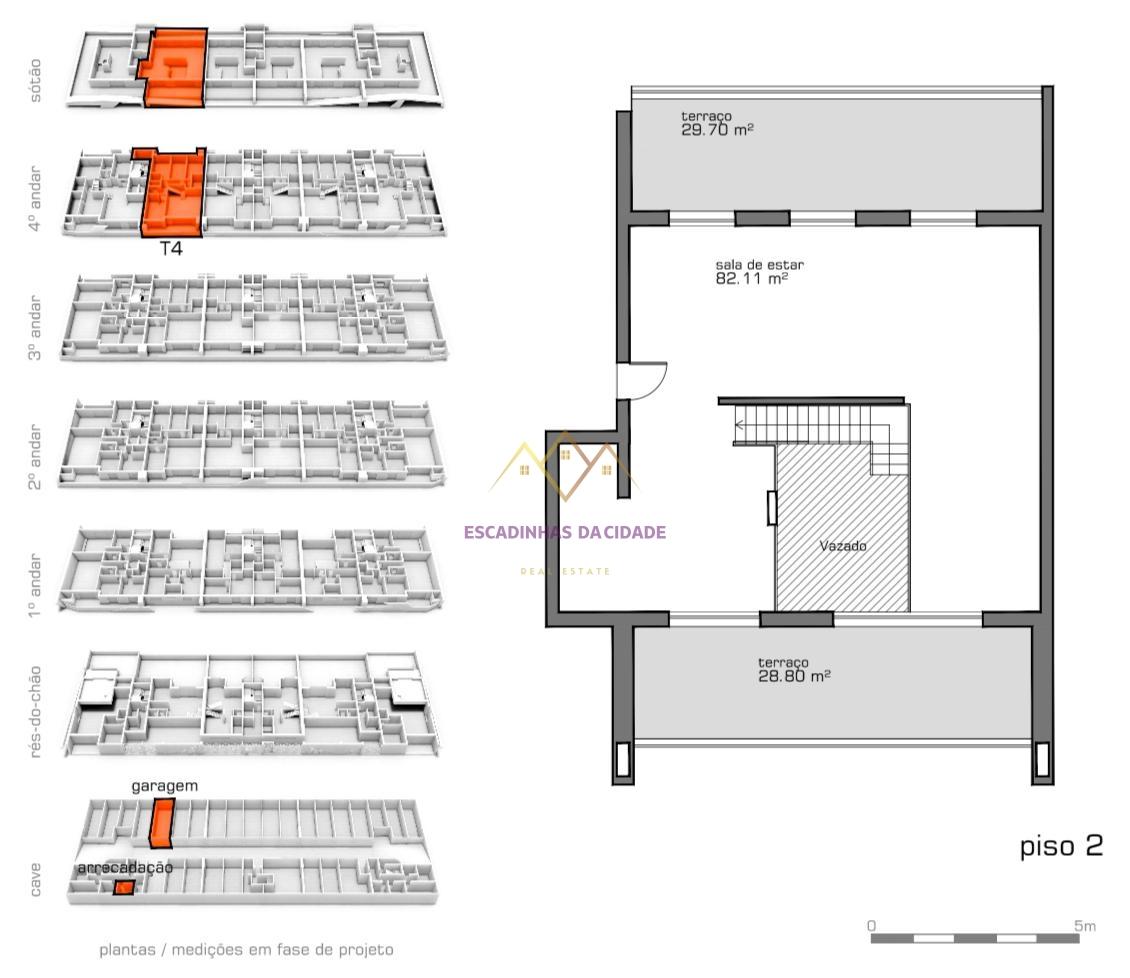
267m2
Área Útil: 267m2
Área Bruta: 346m2
Ano de Construção: 2023
Certificação Energética: A
Estado: Novo

Descrição do anúncio

Viver no Montijo é escolher uma vida com mais espaço, mais tranquilidade e uma ligação privilegiada a Lisboa, sem abdicar de conforto e modernidade. Imagine um refúgio sofisticado, junto ao rio Tejo, onde o ritmo é mais leve, mas tudo está ao seu alcance — é aqui que começa a sua nova forma de viver.

No coração desta cidade em plena valorização, surge este exclusivo apartamento T4 Duplex, pensado para quem procura distinção e qualidade superior. Com uma generosa área útil de 267 m², destaca-se pelas suas linhas contemporâneas, áreas amplas e uma luminosidade natural extraordinária — tão característica da região do Montijo. A distribuição inteligente inclui duas salas interligadas — uma em open space no piso principal e outra no piso superior — criando ambientes versáteis e sofisticados, ideais para o dia a dia e momentos de convívio.

A cozinha, totalmente equipada com eletrodomésticos Siemens e acabamentos de excelência, integra-se harmoniosamente com a sala num espaço amplo com duplo pé-direito, onde a luz natural é protagonista. As janelas panorâmicas abrem-se para uma varanda com churrasqueira, perfeita para desfrutar do clima ameno da Margem Sul e de momentos únicos com família e amigos.
Os quartos oferecem conforto e funcionalidade, com roupeiros embutidos e destaque para uma elegante suíte. Com três casas de banho e uma box privativa para duas viaturas, tudo foi pensado para garantir comodidade e exclusividade.
A qualidade construtiva e os equipamentos premium elevam ainda mais este imóvel:
Caixilharia moderna com elevado desempenho térmico e acústico
Estores elétricos térmicos
Isolamentos diferenciadores para máximo conforto
Vinoteca Liebherr para os apreciadores de vinho
Iluminação LED e tetos falsos sofisticados
Aspiração central
Ar condicionado Mitsubishi embutido
Piso radiante elétrico Warmup
Painéis solares e sistema de aquecimento eficienteTudo isto com Classe Energética A, garantindo eficiência e sustentabilidade.

Localizado numa zona tranquila do Montijo, com acessos rápidos à Ponte Vasco da Gama e a apenas minutos de Lisboa, perto de comércio, escolas, restaurantes e com fácil ligação às praias da região, este imóvel representa uma oportunidade única.
Agende já a sua visita e descubra um apartamento onde o conforto, a elegância e a localização se unem para criar um estilo de vida verdadeiramente exclusivo.

Área útil: 267 m2
Valor unitário: 3.333/m2
CE: A

Emir Sabalo
+351916639047
[email protected]
AMI 23557
Escadinhas da Cidade – Mediação Imobiliária, Lda

Visite a nossa pagina e veja este e outros imóveis.

www.escadinhasdacidade.pt

Características Gerais

  • Ar Condicionado
  • Cozinha Equipada
  • Guarda Roupa
  • Varandas

Galeria do imóvel

Fantástico T4 Duplex com acabamentos de Luxo, no Montijo
Fantástico T4 Duplex com acabamentos de Luxo, no Montijo
Fantástico T4 Duplex com acabamentos de Luxo, no Montijo
Fantástico T4 Duplex com acabamentos de Luxo, no Montijo
Fantástico T4 Duplex com acabamentos de Luxo, no Montijo
Fantástico T4 Duplex com acabamentos de Luxo, no Montijo

Localização do imóvel

Setúbal, Montijo, Atalaia e Alto Estanqueiro-Jardia

Referência do anúncio: TRI-315-24-OE (3). Última atualização: 26 março 2026.

Relatório de preços praticados nos últimos 8 meses

Setúbal, Montijo, Atalaia e Alto Estanqueiro-Jardia

Simule um Crédito Habitação

Os dados apresentados são meramente indicativos. Condições gerais
Seguir
Partilhar
Escadinhas Da Cidade - Mediacao Imobiliaria, Lda
AMI 23557
Nome
Email
Contacto
Formato inválido
Agende uma visita
Referência do anúncio: TRI-315-24-OE (3).
Última atualização: 26 março 2026.
Contactar
Veja também
Anúncios na mesma zona
T3 de Luxo com Piscina Privativa e Terraço - A Tranquilidade do Mar à Porta de Casa
Setúbal, Almada, Costa da Caparica
670 000 €
3
2
Alcochete - Duplex - Luxo -Tagus Bay - Vende
Setúbal, Alcochete, Alcochete
898 000 €
4
3
T2 Moderno com Estacionamento e Acabamentos Premium - A Sua Nova Vida Começa Aqui
Setúbal, Almada, Costa da Caparica
595 000 €
2
2
Apartamento T2
Setúbal, Grândola, Grândola e Santa Margarida da Serra
335 000 €
2
2
Praia do Sal - Apartamento T2 - Alcochete
Setúbal, Alcochete, Alcochete
710 000 €
2
2
1
Apartamento T2 Venda em Alto do Seixalinho, Santo André e Verderena,Barreiro
Setúbal, Barreiro, Alto do Seixalinho, Santo André e Verderena
245 000 €
2
1
Apartamento T1 - Setúbal
Setúbal, Setúbal, Setúbal (São Sebastião)
190 000 €
1
1
Apartamento T1 novo na zona histórica de Setúbal
Setúbal, Setúbal, Setúbal (São Sebastião)
210 000 €
1
1
Apartamento T1 novo na zona histórica de Setúbal, com vista de rio.
Setúbal, Setúbal, Setúbal (São Sebastião)
255 000 €
1
1
Apartamento T2 Venda em Baixa da Banheira e Vale da Amoreira,Moita
Setúbal, Moita, Baixa da Banheira e Vale da Amoreira
270 000 €
2
1
Partilha o imóvel: Fantástico T4 Duplex com acabamentos de Luxo, no Montijo
Partilha este imóvel nas tuas redes sociais ou envia diretamente para o email dos teus amigos.
Partilhar por email
Adicione uma nota ao imóvel!
Só você é que vê as notas que adiciona. Os imóveis com notas ficam nos favoritos para os poder consultar mais tarde.
Excluíste o anúncio:
Fantástico T4 Duplex com acabamentos de Luxo, no Montijo