Pesquisar perto de mim
A aguardar a sua pesquisa
Voltar
Espaço Único no Porto: Onde a Visão se Transforma em Valor
Espaço Único no Porto: Onde a Visão se Transforma em Valor
Espaço Único no Porto: Onde a Visão se Transforma em Valor
Espaço Único no Porto: Onde a Visão se Transforma em Valor
Ver galeria (17)
Ver galeria (17)
Seguir
Partilhar

Espaço Único no Porto: Onde a Visão se Transforma em Valor

Porto, Porto, Cedofeita, Santo Ildefonso, Sé, Miragaia, São Nicolau e Vitória Ver no mapa
13 500 € /mês
0 Quartos
0 WC's
1630m2
Área Útil: 1630m2
Área Bruta: 1630m2
Certificação Energética: N/D
Estado: Usado

Descrição do anúncio

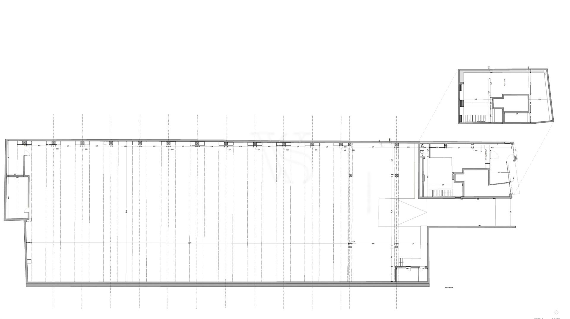
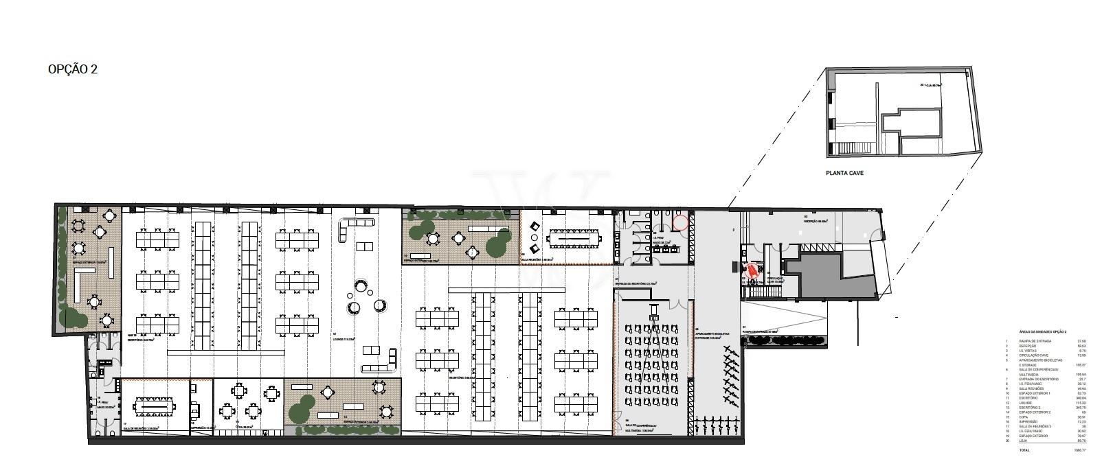
O Diamante em Bruto do Porto – Espaço Versátil para o Seu Projeto!

Descubra este armazém único de 1.568 m², com luz direta natural, instalações sanitárias e um pé direito generoso, pronto para transformar qualquer projeto em realidade. Antiga fábrica têxtil, este espaço combina história, carácter e potencial ilimitado.

Incluído no valor do Arrendamento
Uma loja de 80 m², com entrada direta para o armazém, ideal para receção, showroom ou apoio administrativo.Localização estratégica:
Acesso privilegiado às principais vias: Via Norte, A4, A28
Apenas 15 minutos do aeroporto
5 minutos do Oporto Park OfficePossibilidades de utilização:
Um moderno coworking ou hub criativo
Centro de distribuição eficiente
Supermercado ou espaço comercial inovador
Ginásio premium
Recolha de viaturas ou estacionamento privativo
Espaços para armazenamento/self-storage, pagos conforme a área ocupada
Eventualmente, showroom, espaço industrial leve ou projeto mistoEste é mais que um armazém; é uma tela em branco para empreendedores visionários.

Com dimensões generosas, pode acomodar estacionamento, logística interna, máquinas industriais ou áreas comerciais, aproveitando também a loja como ponto de receção ou apoio.
Não perca a oportunidade de transformar este diamante em bruto no seu próximo sucesso!

Características Gerais

  • Garagem
  • Estacionamento

Galeria do imóvel

Espaço Único no Porto: Onde a Visão se Transforma em Valor
Espaço Único no Porto: Onde a Visão se Transforma em Valor
Espaço Único no Porto: Onde a Visão se Transforma em Valor
Espaço Único no Porto: Onde a Visão se Transforma em Valor
Espaço Único no Porto: Onde a Visão se Transforma em Valor
Espaço Único no Porto: Onde a Visão se Transforma em Valor

Localização do imóvel

Porto, Porto, Cedofeita, Santo Ildefonso, Sé, Miragaia, São Nicolau e Vitória

Referência do anúncio: HM251003. Última atualização: 20 novembro 2025.

Relatório de preços praticados nos últimos 8 meses

Porto, Porto, Cedofeita, Santo Ildefonso, Sé, Miragaia, São Nicolau e Vitória

Simule um Crédito Habitação

Os dados apresentados são meramente indicativos. Condições gerais
Seguir
Partilhar
VERTICUS
AMI 6726
+35 ...
Chamada para a rede fixa nacional
Mostrar número
Nome
Email
Contacto
Formato inválido
Agende uma visita
Referência do anúncio: HM251003.
Última atualização: 20 novembro 2025.
Contactar
Veja também
Anúncios na mesma zona
Armazém Arrendamento em Raimonda,Paços de Ferreira
Porto, Paços de Ferreira, Raimonda
1 000 € /Mês
Armazém renovado - areosa
Porto, Maia, Pedrouços
18 500 € /Mês
Armazém para Arrendamento na Zona Industrial de Ribeirão, Vila Nova de Famalicão
Porto, Trofa, Bougado (São Martinho e Santiago)
3 100 € /Mês
Armazém para Arrendamento na Zona Industrial de Ribeirão, Vila Nova de Famalicão
Porto, Trofa, Bougado (São Martinho e Santiago)
2 150 € /Mês
Armazém Indústrial com 2.600m2 e 3 cais carga na Maia
Porto, Maia, Nogueira e Silva Escura
17 000 € /Mês
Armazém Arrendamento em Fânzeres e São Pedro da Cova,Gondomar
Porto, Gondomar, Fânzeres e São Pedro da Cova
3 500 € /Mês
Pavilhão Industrial para Arrendamento em Guifões
Porto, Matosinhos, Custóias, Leça do Balio e Guifões
5 200 € /Mês
Armazém de luxo para Arrendamento  na Zona Industrial de Grijó - Porto
Porto, Vila Nova de Gaia, Grijó e Sermonde
4 150 € /Mês
ARMAZÉM EM PARQUE EMPRESARIAL (625M2)
Porto, Gondomar, Fânzeres e São Pedro da Cova
2 600 € /Mês
2
Armazém Novo com 440 m2 para Arrendamento
Porto, Póvoa de Varzim, Póvoa de Varzim, Beiriz e Argivai
2 300 € /Mês
2
Partilha o imóvel: Espaço Único no Porto: Onde a Visão se Transforma em Valor
Partilha este imóvel nas tuas redes sociais ou envia diretamente para o email dos teus amigos.
Partilhar por email
Adicione uma nota ao imóvel!
Só você é que vê as notas que adiciona. Os imóveis com notas ficam nos favoritos para os poder consultar mais tarde.
Excluíste o anúncio:
Espaço Único no Porto: Onde a Visão se Transforma em Valor