Pesquisar perto de mim
A aguardar a sua pesquisa
Voltar
Espaço Único no Porto: Onde a Visão se Transforma em Valor
Espaço Único no Porto: Onde a Visão se Transforma em Valor
Espaço Único no Porto: Onde a Visão se Transforma em Valor
Espaço Único no Porto: Onde a Visão se Transforma em Valor
Ver galeria (17)
Ver galeria (17)
Seguir
Partilhar

Espaço Único no Porto: Onde a Visão se Transforma em Valor

Porto, Porto, Ramalde Ver no mapa
1 950 000 €
0 Quartos
0 WC's
1630m2
Área Útil: 1630m2
Área Bruta: 1630m2
Certificação Energética: N/D
Estado: Usado

Descrição do anúncio

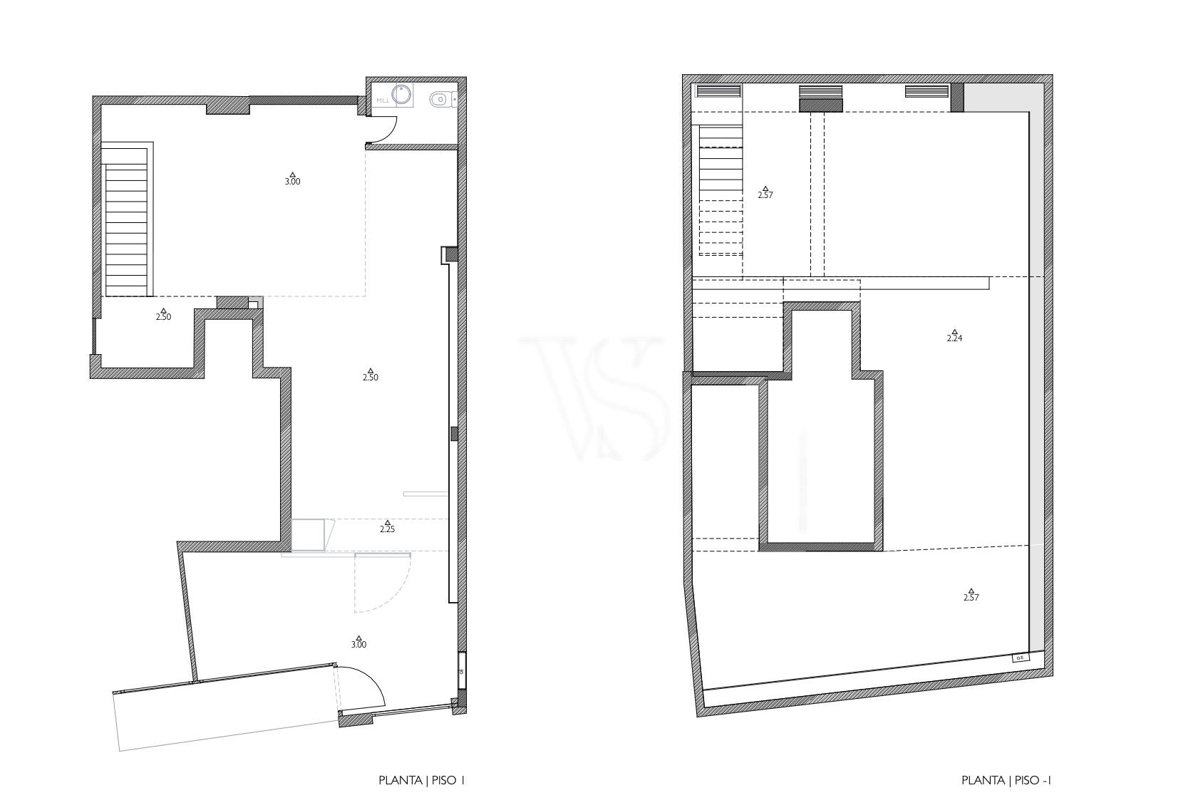
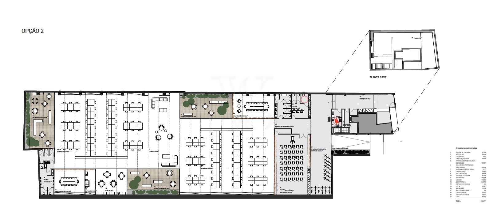
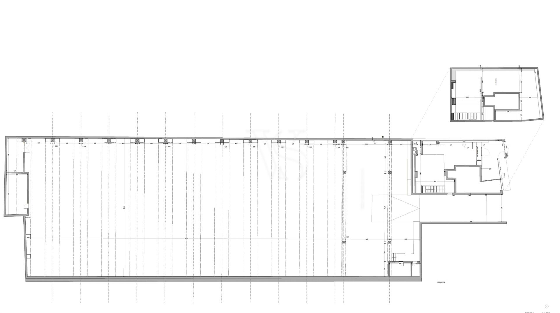
O Diamante em Bruto do Porto – Espaço Versátil para o Seu Projeto!

Descubra este armazém único de 1.568 m², com luz direta natural, instalações sanitárias e um pé direito generoso, pronto para transformar qualquer projeto em realidade. Antiga fábrica têxtil, este espaço combina história, carácter e potencial ilimitado.

Incluído no valor:
Uma loja de 160  m², com entrada direta para o armazém, ideal para receção, showroom ou apoio administrativo.Localização estratégica:
Acesso privilegiado às principais vias: Via Norte, A4, A28
Apenas 15 minutos do aeroporto
5 minutos do Oporto Park OfficePossibilidades de utilização:
Um moderno coworking ou hub criativo
Centro de distribuição eficiente
Supermercado ou espaço comercial inovador
Ginásio premium
Recolha de viaturas ou estacionamento privativo
Espaços para armazenamento/self-storage, pagos conforme a área ocupada
Eventualmente, showroom, espaço industrial leve ou projeto mistoEste é mais que um armazém; é uma tela em branco para empreendedores visionários.

Com dimensões generosas, pode acomodar estacionamento, logística interna, máquinas industriais ou áreas comerciais, aproveitando também a loja como ponto de receção ou apoio.
Não perca a oportunidade de transformar este diamante em bruto no seu próximo sucesso!

Galeria do imóvel

Espaço Único no Porto: Onde a Visão se Transforma em Valor
Espaço Único no Porto: Onde a Visão se Transforma em Valor
Espaço Único no Porto: Onde a Visão se Transforma em Valor
Espaço Único no Porto: Onde a Visão se Transforma em Valor
Espaço Único no Porto: Onde a Visão se Transforma em Valor
Espaço Único no Porto: Onde a Visão se Transforma em Valor

Localização do imóvel

Porto, Porto, Ramalde

Referência do anúncio: HM251008. Última atualização: 12 dezembro 2025.

Relatório de preços praticados nos últimos 8 meses

Porto, Porto, Ramalde

Simule um Crédito Habitação

Os dados apresentados são meramente indicativos. Condições gerais
Seguir
Partilhar
VERTICUS
AMI 6726
+35 ...
Chamada para a rede fixa nacional
Mostrar número
Nome
Email
Contacto
Formato inválido
Agende uma visita
Referência do anúncio: HM251008.
Última atualização: 12 dezembro 2025.
Contactar
Veja também
Anúncios na mesma zona
Armazém industrial 1600 m2. Aceso A1 a 500 mt.
Porto, Vila Nova de Gaia, Pedroso e Seixezelo
1 150 000 €
4
ARMAZEM DEVOLUTO (afetação para Indústria; comércio e habitação)
Porto, Maia, Milheirós
397 000 €
1
Armazém Venda em Póvoa de Varzim, Beiriz e Argivai,Póvoa de Varzim
Porto, Póvoa de Varzim, Póvoa de Varzim, Beiriz e Argivai
325 000 €
1
Armazém Zona Industrial do Porto
Porto, Porto, Ramalde
19 950 000 €
1
Armazém Leça da Palmeira/Matosinhos com acesso a TIR
Porto, Matosinhos, Matosinhos e Leça da Palmeira
1 400 000 €
Armazém para Venda na Zona Industrial de Ribeirão, Vila Nova de Famalicão
Porto, Trofa, Bougado (São Martinho e Santiago)
455 000 €
Armazém Venda em Torrados e Sousa,Felgueiras
Porto, Felgueiras, Torrados e Sousa
125 000 €
Arrecadação em Empreendimento de Luxo no Porto
Porto, Porto, Bonfim
7 000 €
Industrial para venda
Porto, Felgueiras, Idães
1 950 000 €
Dois armazéns com cerca de 1300m2 , com logradouro
Porto, Póvoa de Varzim, Aver-o-Mar, Amorim e Terroso
600 000 €
1
Partilha o imóvel: Espaço Único no Porto: Onde a Visão se Transforma em Valor
Partilha este imóvel nas tuas redes sociais ou envia diretamente para o email dos teus amigos.
Partilhar por email
Adicione uma nota ao imóvel!
Só você é que vê as notas que adiciona. Os imóveis com notas ficam nos favoritos para os poder consultar mais tarde.
Excluíste o anúncio:
Espaço Único no Porto: Onde a Visão se Transforma em Valor