Pesquisar perto de mim
A aguardar a sua pesquisa
Voltar
Duplex às Piscinas Municipais de Codessais, Vila Real
Duplex às Piscinas Municipais de Codessais, Vila Real
Duplex às Piscinas Municipais de Codessais, Vila Real
Duplex às Piscinas Municipais de Codessais, Vila Real
Ver galeria (6)
Ver galeria (6)
Seguir
Partilhar

Duplex às Piscinas Municipais de Codessais, Vila Real

Vila Real, Vila Real, Vila Real (Nossa Senhora da Conceição, São Pedro e São Dinis) Ver no mapa
210 000 €
3 Quartos
3 WC's
114,3m2
Área Útil: 114,3m2
Área Bruta: 319,8m2
Certificação Energética: C

Descrição do anúncio

A 600 metros das Piscinas Municipais de Codessais em Vila Real, imóvel de rés do chão e andar, com muita luz natural e 10 lugares de garagem, com projeto aprovado pela Câmara Municipal de Vila Real para alteração do uso para habitação tipo T3+1


| Zona Envolvente |

Ampla Oferta de Serviços, Espaços Verdes, Estacionamento, Estacionamento Público, Excelentes Acessos, Orientação Solar(Sul/Norte), Piscinas, Transportes Públicos, Vista para Cidade


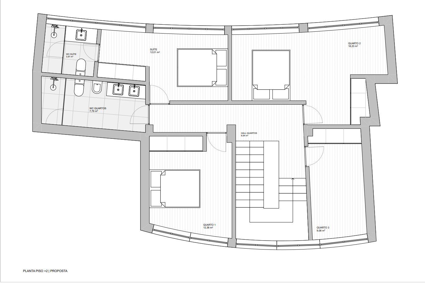
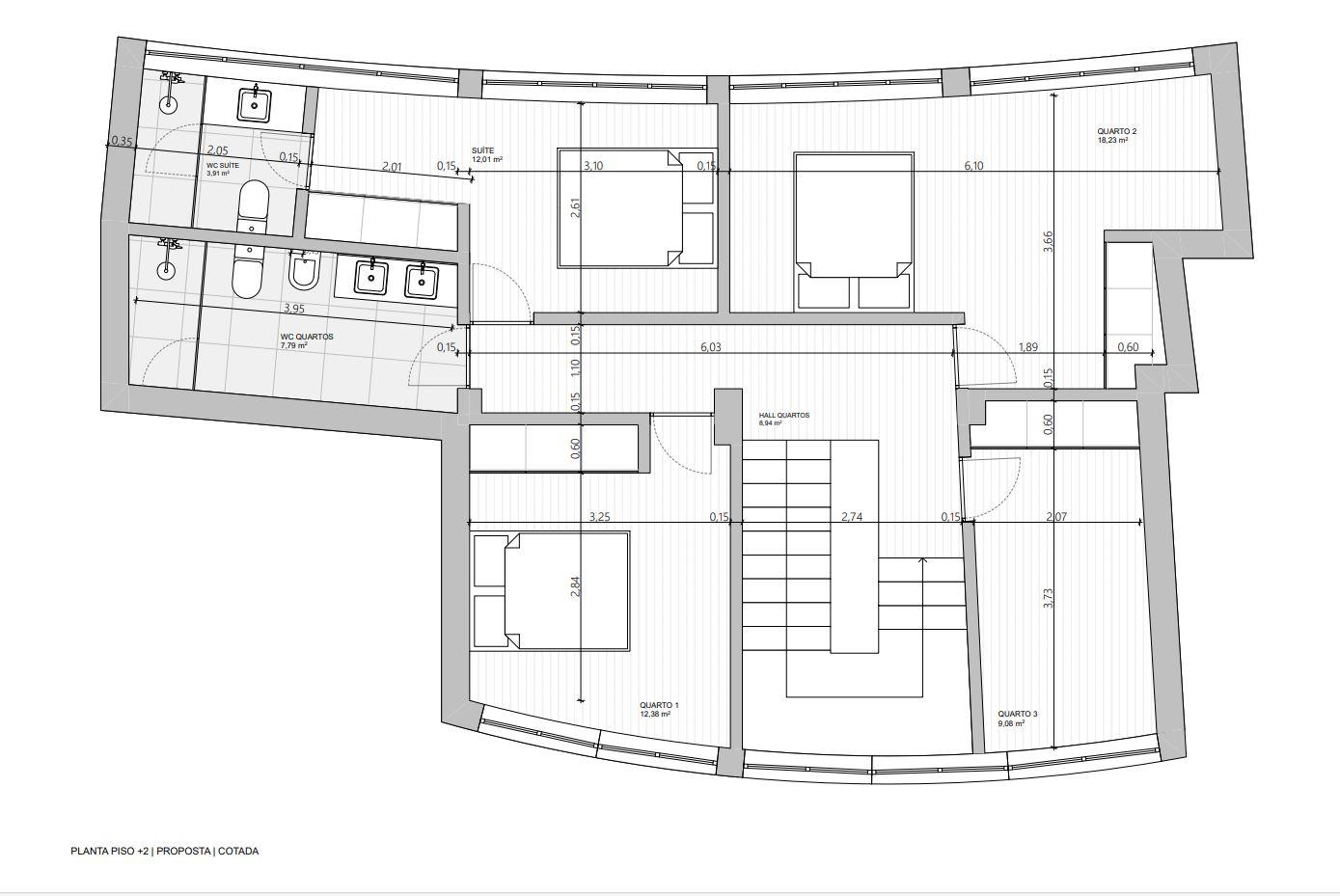
| Configuração da futura habitação |

- Rés do chão, com 3 frentes (zona social) :

Composta por: hall, sala comum, cozinha, lavandaria, casa de banho de serviço e escadas de acesso ao 1º andar

- Primeiro andar com 2 frentes (zona íntima) :

Composta por: hall de quartos, suite, dois quartos, escritório/ quarto, casa de banho completa


Faz parte integrante da fração 205,50 m2, na cave do prédio, que conta com aproximadamente 100 m2 de arrumos e 10 lugares de estacionamento

Ano de Construção do Edifício: 1996


| Nota |

Por questões de privacidade, não estamos autorizados a divulgar fotos do imóvel.

Galeria do imóvel

Duplex às Piscinas Municipais de Codessais, Vila Real
Duplex às Piscinas Municipais de Codessais, Vila Real
Duplex às Piscinas Municipais de Codessais, Vila Real
Duplex às Piscinas Municipais de Codessais, Vila Real
Duplex às Piscinas Municipais de Codessais, Vila Real
Duplex às Piscinas Municipais de Codessais, Vila Real

Localização do imóvel

Vila Real, Vila Real, Vila Real (Nossa Senhora da Conceição, São Pedro e São Dinis)

Referência do anúncio: APA_982. Última atualização: 03 outubro 2025.

Relatório de preços praticados nos últimos 8 meses

Vila Real, Vila Real, Vila Real (Nossa Senhora da Conceição, São Pedro e São Dinis)

Simule um Crédito Habitação

Os dados apresentados são meramente indicativos. Condições gerais
Seguir
Partilhar
Degraus Para O Sol - Unipessoal Lda
AMI 14033
Nome
Email
Contacto
Formato inválido
Agende uma visita
Referência do anúncio: APA_982.
Última atualização: 03 outubro 2025.
Contactar
Veja também
Anúncios na mesma zona
Apartamento T1 com Terraço Edifício do CAMPUS junto à entrada da UTAD Vila real
Vila Real, Vila Real, Vila Real (Nossa Senhora da Conceição, São Pedro e São Dinis)
225 000 €
1
1
Apartamento T4 Venda em Valpaços e Sanfins,Valpaços
Vila Real, Valpaços, Valpaços e Sanfins
138 000 €
4
1
| Reservado | Apartamento T3 com Boas Áreas ao Hospital de Lordelo, Vila Real
Vila Real, Vila Real, Lordelo
Sob consulta
3
2
| VENDIDO | T2 Junto à Rotunda da Araucária em Vila Real
Vila Real, Vila Real, Vila Real (Nossa Senhora da Conceição, São Pedro e São Dinis)
Sob consulta
2
2
Apartamento T3 para venda
Vila Real, Montalegre, Montalegre e Padroso
180 000 €
3
2
Apartamento >=T10 Venda em Mondim de Basto,Mondim de Basto
Vila Real, Mondim de Basto, Mondim de Basto
450 000 €
10
1
| VENDIDO | T2 à Escola Diogo Cão em Vila Real
Vila Real, Vila Real, Vila Real (Nossa Senhora da Conceição, São Pedro e São Dinis)
Sob consulta
2
1
Apartamento t3 semi-novo ( nunca foi habitado ) com vistas sobre a cidade e o rio douro, no peso da régua
Vila Real, Peso da Régua, Peso da Régua e Godim
400 000 €
3
3
| Vendido | Apartamento T1 Junto à UTAD em Vila Real
Vila Real, Vila Real, Vila Real (Nossa Senhora da Conceição, São Pedro e São Dinis)
Sob consulta
1
1
Apartamento T5 Venda em Vila Real (Nossa Senhora da Conceição, São Pedro e São Dinis),Vila Real
Vila Real, Vila Real, Vila Real (Nossa Senhora da Conceição, São Pedro e São Dinis)
420 000 €
5
2
Partilha o imóvel: Duplex às Piscinas Municipais de Codessais, Vila Real
Partilha este imóvel nas tuas redes sociais ou envia diretamente para o email dos teus amigos.
Partilhar por email
Adicione uma nota ao imóvel!
Só você é que vê as notas que adiciona. Os imóveis com notas ficam nos favoritos para os poder consultar mais tarde.
Excluíste o anúncio:
Duplex às Piscinas Municipais de Codessais, Vila Real