Pesquisar perto de mim
A aguardar a sua pesquisa
Voltar
Discoteca famosa em Vila Moura, Boliqueime
Discoteca famosa em Vila Moura, Boliqueime
Discoteca famosa em Vila Moura, Boliqueime
Discoteca famosa em Vila Moura, Boliqueime
Ver galeria (13)
Ver galeria (13)
Seguir
Partilhar

Discoteca famosa em Vila Moura, Boliqueime

Faro, Loulé, Boliqueime Ver no mapa
13 000 000 €
0 Quartos
10 WC's
Área Bruta: 5040m2
Certificação Energética: D

Descrição do anúncio

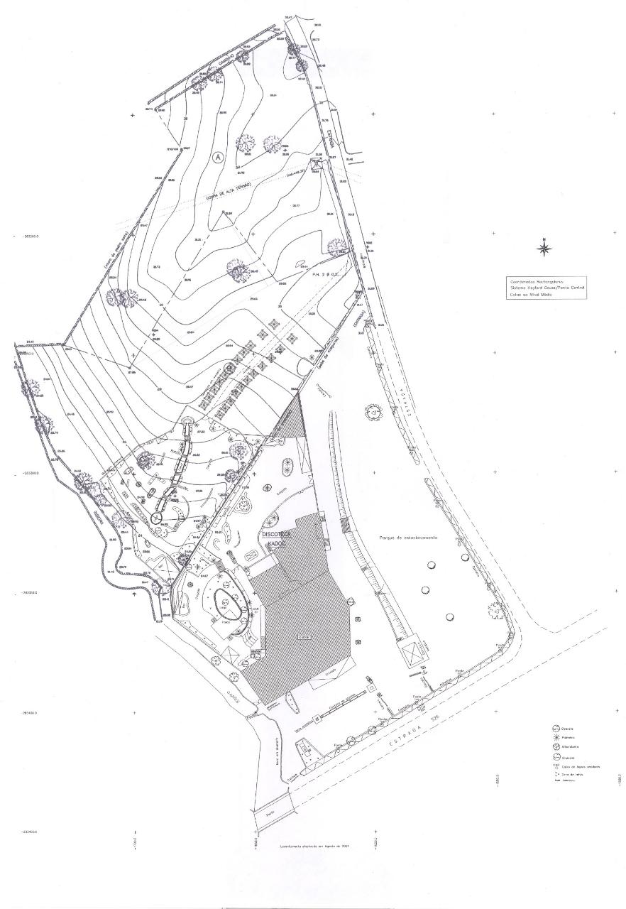
Um Império de Diversão no Algarve

Imagine um espaço que pulsa com a energia da noite, um lugar onde a música, a dança e a adrenalina se fundem em uma experiência única. Com seus 5.040 m² de puro entretenimento, esta discoteca já é um ícone no Algarve. Mas prepare-se para ser transportado para um novo nível de experiência, pois o potencial deste espaço é ilimitado.

Um Oásis de Luxo e Diversão

Visualize uma pista de dança que se estende por metros, com um sistema de som e iluminação tão avançado que faz você sentir cada batida em seus ossos. Imagine lounges exclusivos, onde você pode relaxar e apreciar a vista enquanto saboreia um coquetel sofisticado. Este é o tipo de experiência que aguarda os frequentadores deste estabelecimento.

Um Futuro Brilhante

Mas a magia não para por aí. Com a possibilidade de expandir para até 7.500 m², as oportunidades são infinitas. Imagine um complexo de entretenimento completo, com restaurantes temáticos, bares com música ao vivo, lojas de grife e espaços para eventos memoráveis. Um destino que atrairá tanto os turistas quanto os moradores locais, transformando a região em um polo de entretenimento de renome internacional.

A Localização Ideal

A proximidade de praias paradisíacas, atrações turísticas e comodidades locais garante um fluxo constante de visitantes. A demanda por experiências de lazer e entretenimento é alta, e este espaço está pronto para atender a essa necessidade.

Um Investimento Estratégico

Este imóvel representa muito mais do que uma simples discoteca. É uma oportunidade única de investir em um negócio próspero e em constante crescimento. Com um planejamento estratégico e uma visão de futuro, este espaço pode se tornar um dos destinos mais cobiçados do Algarve.

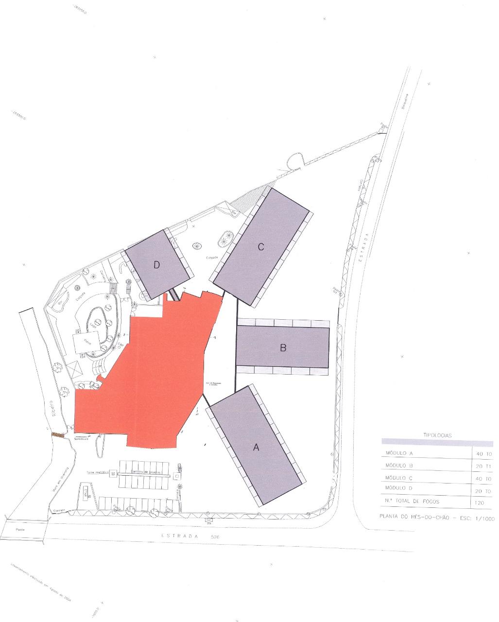
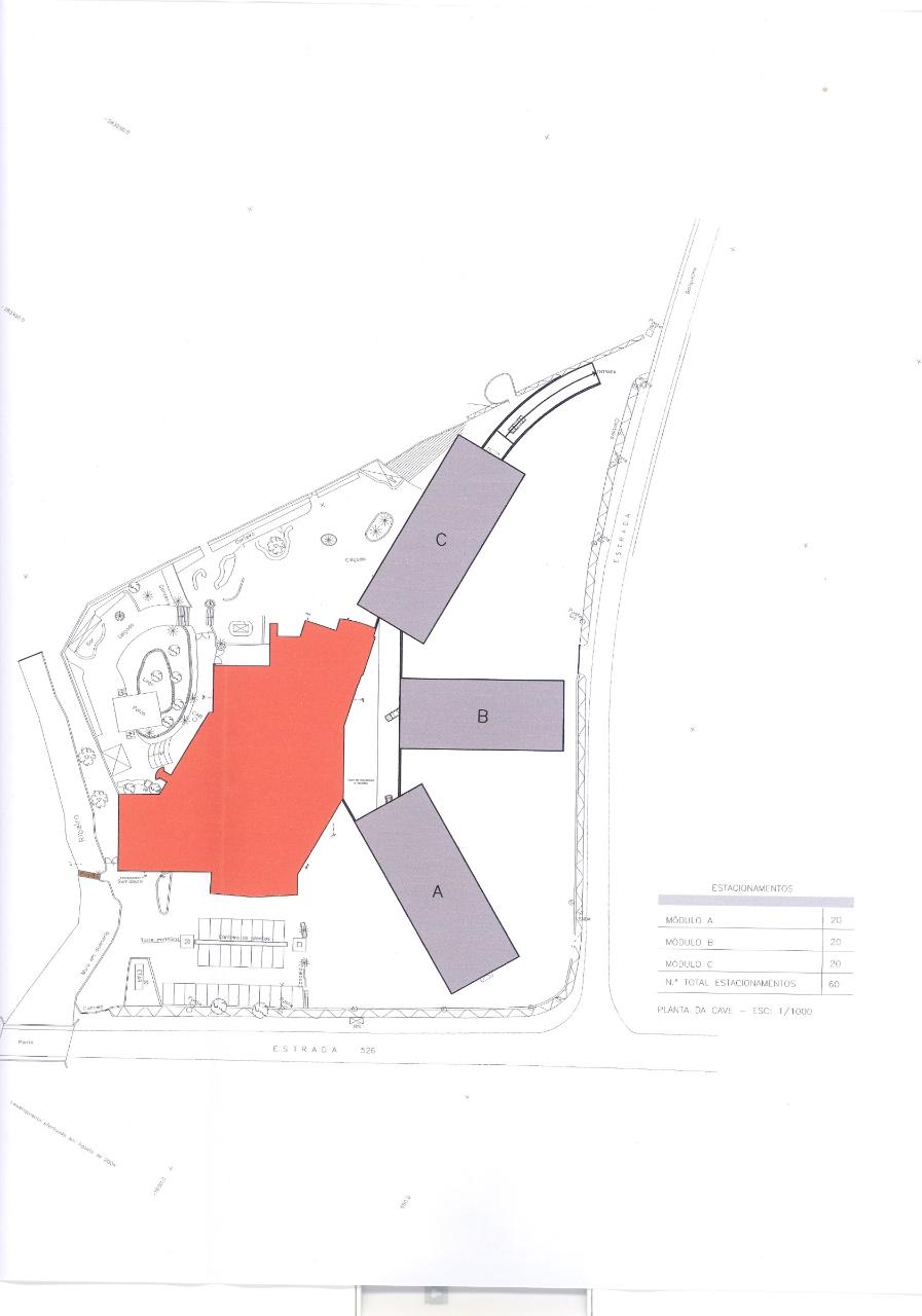
Viabilidade de projeto para Lar de Idosos de Luxo, com a construção de 120 apartamentos e também adaptação do espaço existente para a adaptação das áreas comuns com serviços como restaurantes, espaços de lazer, assistência médica e sala de entretenimento e jardim exótico existente.

Em resumo, este imóvel oferece:

A maior discoteca do Algarve: Um espaço já consolidado e com grande potencial de crescimento.
Localização estratégica: Próximo de tudo o que você precisa para garantir o sucesso do seu negócio.
Flexibilidade: A possibilidade de adaptar o espaço às suas necessidades e criar um conceito único.
Potencial de expansão: A chance de construir um império do entretenimento.
Se você busca um investimento que une paixão, negócios e um futuro promissor, esta é a sua oportunidade.

Gostaria de saber mais sobre este incrível projeto? Entre em contato conosco!

Galeria do imóvel

Discoteca famosa em Vila Moura, Boliqueime
Discoteca famosa em Vila Moura, Boliqueime
Discoteca famosa em Vila Moura, Boliqueime
Discoteca famosa em Vila Moura, Boliqueime
Discoteca famosa em Vila Moura, Boliqueime
Discoteca famosa em Vila Moura, Boliqueime

Localização do imóvel

Faro, Loulé, Boliqueime

Referência do anúncio: PBI-1348. Última atualização: 31 agosto 2024.

Relatório de preços praticados nos últimos 8 meses

Faro, Loulé, Boliqueime

Simule um Crédito Habitação

Os dados apresentados são meramente indicativos. Condições gerais
Seguir
Partilhar
Protagonistexclusive Lda
AMI 16149
Nome
Email
Contacto
Formato inválido
Agende uma visita
Referência do anúncio: PBI-1348.
Última atualização: 31 agosto 2024.
Contactar
Veja também
Anúncios na mesma zona
Hotel Rural em Albufeira no Algarve
Faro, Albufeira, Guia
7 500 000 €
39
Hotel Rural perto da praia dos Salgados
Faro, Albufeira, Guia
10 500 000 €
39
Espaço Comercial
Faro, Castro Marim, Castro Marim
450 000 €
3
3
Hotel perto de Moncarapacho
Faro, Olhão, Moncarapacho e Fuseta
3 900 000 €
22
26
Excelente oportunidade – Restaurante totalmente equipado em Lagos
Faro, Lagos, Lagos (São Sebastião e Santa Maria)
90 000 €
2
Aparthotel Albufeira 4*
Faro, Albufeira, Albufeira e Olhos de Água
20 070 000 €
Restaurante equipado e mobilado para venda em Tavira, perto do centro histórico
Faro, Tavira, Tavira (Santa Maria e Santiago)
330 000 €
2
Loja Venda em Quarteira,Loulé
Faro, Loulé, Quarteira
890 000 €
2
1
Discoteca famosa em Vila Moura, Boliqueime
Faro, Loulé, Boliqueime
13 000 000 €
10
A mais carismática unidade hoteleira em Albufeira, com classificação 4 estrelas e vista para o mar
Faro, Albufeira, Albufeira e Olhos de Água
33 207 500 €
10
10
Partilha o imóvel: Discoteca famosa em Vila Moura, Boliqueime
Partilha este imóvel nas tuas redes sociais ou envia diretamente para o email dos teus amigos.
Partilhar por email
Adicione uma nota ao imóvel!
Só você é que vê as notas que adiciona. Os imóveis com notas ficam nos favoritos para os poder consultar mais tarde.
Excluíste o anúncio:
Discoteca famosa em Vila Moura, Boliqueime