Pesquisar perto de mim
A aguardar a sua pesquisa
Voltar
Construção em altura em Braga
Construção em altura em Braga
Construção em altura em Braga
Construção em altura em Braga
Ver galeria (17)
Ver galeria (17)
Seguir
Partilhar

Construção em altura em Braga

Braga, Braga, Lomar e Arcos Ver no mapa
900 000 €
0 Quartos
0 WC's
Certificação Energética: N/D

Descrição do anúncio

Se é construtor temos uma oportunidade de negócio para si!

Terreno para construção em altura, localizado na freguesia de Lomar, Braga.

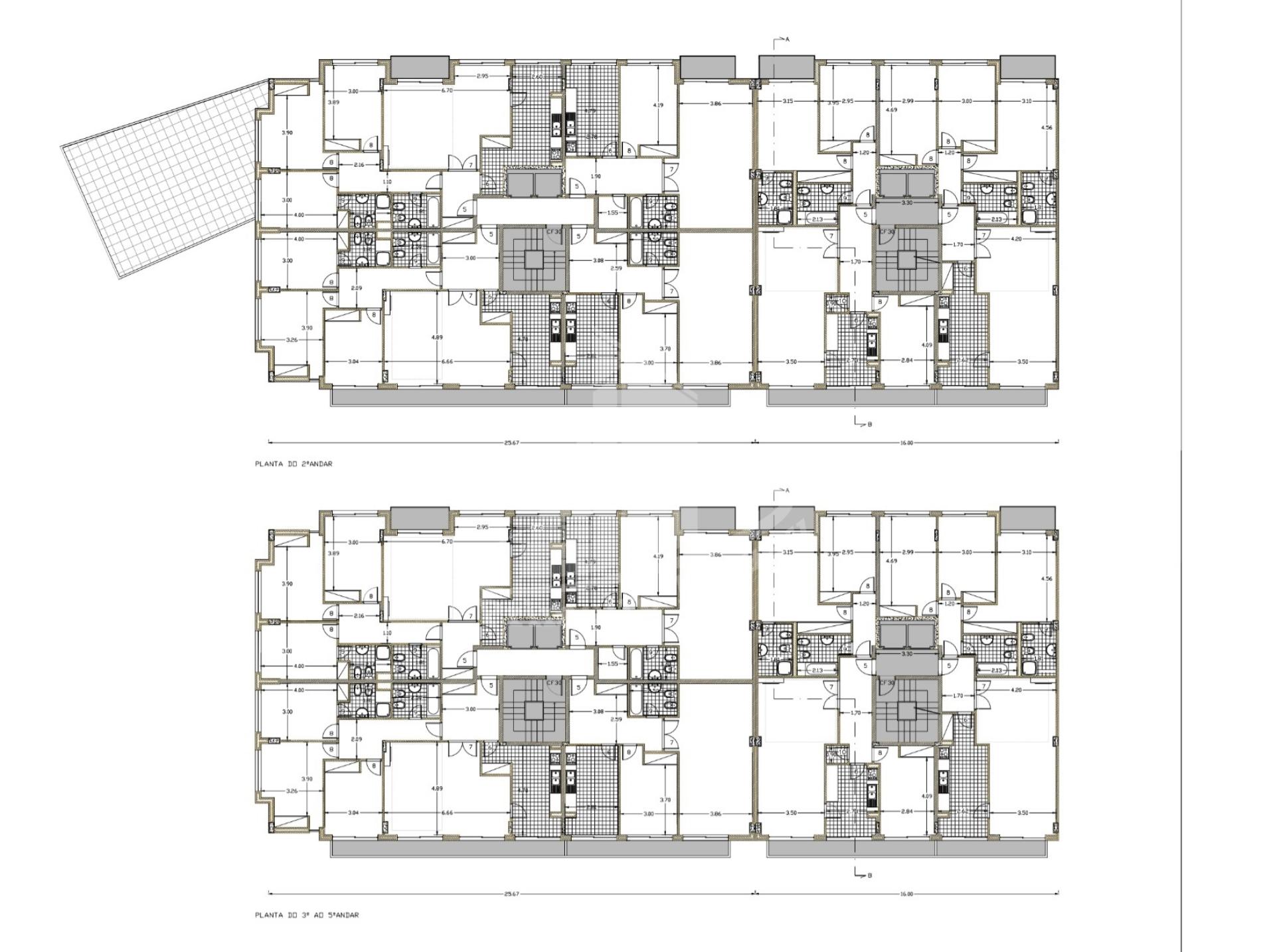
Com projeto aprovado para construção de um prédio de 5 pisos de habitação, 1 piso de comércio e 1 piso de garagens.
Projeto contém 31 frações, distribuídas por 10 apartamentos de tipologia T1, 19 apartamentos de tipologia T3 e 2 frações de comércio.

Não perca esta excelente oportunidade!

Quer esteja no mercado para comprar, ou vender um imóvel, trabalharemos consigo, de forma personalizada, para que consigamos, juntos, o melhor negócio.
A nossa equipa de consultores imobiliários é experiente, formada e orientada para a obtenção de resultados e serviço ao cliente. 
Sabemos que não basta uma ótima carteira de imóveis para atender às necessidades de quem procura uma casa. Preocupamo-nos em estudar o mercado local para que lhe possamos dar as melhores recomendações. 
Diga-nos o que procura, e nós iremos ajudá-lo/a.    
 

Características Gerais

  • Acesso com Estrada
  • Terreno Urbano

Galeria do imóvel

Construção em altura em Braga
Construção em altura em Braga
Construção em altura em Braga
Construção em altura em Braga
Construção em altura em Braga
Construção em altura em Braga

Localização do imóvel

Braga, Braga, Lomar e Arcos

Referência do anúncio: MP336. Última atualização: 07 agosto 2025.

Relatório de preços praticados nos últimos 8 meses

Braga, Braga, Lomar e Arcos

Simule um Crédito Habitação

Os dados apresentados são meramente indicativos. Condições gerais
Seguir
Partilhar
Primeiro Degrau Imobiliária
AMI 20927
910 ...
Chamada para a rede fixa nacional
Mostrar número
Nome
Email
Contacto
Formato inválido
Agende uma visita
Referência do anúncio: MP336.
Última atualização: 07 agosto 2025.
Contactar
Veja também
Anúncios na mesma zona
Terreno para venda
Braga, Cabeceiras de Basto, Cabeceiras de Basto
39 000 €
Terreno Para Construção Venda em Sobradelo da Goma,Póvoa de Lanhoso
Braga, Póvoa de Lanhoso, Sobradelo da Goma
49 900 €
Terreno para venda
Braga, Cabeceiras de Basto, Cabeceiras de Basto
49 000 €
Terreno para venda
Braga, Cabeceiras de Basto, Rio Douro
2 900 €
Terreno para venda
Braga, Vieira do Minho, Eira Vedra
69 000 €
Terreno Para Construção Venda em Canedo de Basto e Corgo,Celorico de Basto
Braga, Celorico de Basto, Canedo de Basto e Corgo
150 000 €
Lote de Terreno Venda em Santa Eulália,Vizela
Braga, Vizela, Vizela (Santo Adrião)
160 000 €
Lote de Terreno Venda em Santa Eulália,Vizela
Braga, Vizela, Santa Eulália
55 000 €
Terreno para venda
Braga, Vieira do Minho, Tabuaças
495 000 €
Terreno para venda
Braga, Cabeceiras de Basto, Cabeceiras de Basto
39 000 €
Partilha o imóvel: Construção em altura em Braga
Partilha este imóvel nas tuas redes sociais ou envia diretamente para o email dos teus amigos.
Partilhar por email
Adicione uma nota ao imóvel!
Só você é que vê as notas que adiciona. Os imóveis com notas ficam nos favoritos para os poder consultar mais tarde.
Excluíste o anúncio:
Construção em altura em Braga