Pesquisar perto de mim
A aguardar a sua pesquisa
Voltar
Com Projeto Aprovado | Imóvel para Reconstrução de Moradia T3 | Vila Real
Com Projeto Aprovado | Imóvel para Reconstrução de Moradia T3 | Vila Real
Com Projeto Aprovado | Imóvel para Reconstrução de Moradia T3 | Vila Real
Com Projeto Aprovado | Imóvel para Reconstrução de Moradia T3 | Vila Real
Ver galeria (10)
Ver galeria (10)
Seguir
Partilhar

Com Projeto Aprovado | Imóvel para Reconstrução de Moradia T3 | Vila Real

Vila Real, Vila Real, Vila Real (Nossa Senhora da Conceição, São Pedro e São Dinis) Ver no mapa
95 000 €
3 Quartos
3 WC's
152,6m2
Área Útil: 152,6m2
Área Bruta: 312m2
Certificação Energética: Isento

Descrição do anúncio

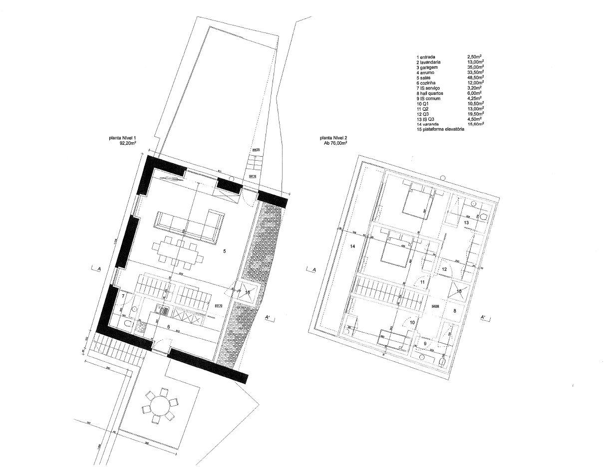
Imóvel com Projeto de Arquitetura e Respetivas Especialidades Aprovados Pela Câmara Municipal de Vila Real

para Moradia T3 de Rés do Chão, 1º e 2º Andares com 312m2 de Área Bruta de Construção e Logradouro

a 1.5 Kms da Avenida Carvalho Araújo em Vila Real.

Configuração do imóvel:

Rés do Chão: Hall, Garagem (35m2), Lavandaria, Arrumos (33,50m2) e Escadas Interiores de Acesso ao 1º Piso

Piso 1 (Zona Social): Sala Comum (48,50m2), Cozinha (12m2), Casa de Banho de Serviço, Escadas Interiores de Acesso ao 2º Piso e Acesso ao Logradouro Tanto Através da Sala como da Cozinha

Piso 2 (Zona Íntima): Hall de Distribuição de Quartos, Suite (24m2), Dois Quartos, Casa de Banho Comum e Varanda (15,40m2) Transversal à Suite e aos Quartos

Está também previsto no Projeto:

Um espaço dedicado para a colocação de uma Plataforma Elevatória para facilitar o acesso aos pisos superiores

Área de Estacionamento para Dois Carros Junto à Via Pública

Galeria do imóvel

Com Projeto Aprovado | Imóvel para Reconstrução de Moradia T3 | Vila Real
Com Projeto Aprovado | Imóvel para Reconstrução de Moradia T3 | Vila Real
Com Projeto Aprovado | Imóvel para Reconstrução de Moradia T3 | Vila Real
Com Projeto Aprovado | Imóvel para Reconstrução de Moradia T3 | Vila Real
Com Projeto Aprovado | Imóvel para Reconstrução de Moradia T3 | Vila Real
Com Projeto Aprovado | Imóvel para Reconstrução de Moradia T3 | Vila Real

Localização do imóvel

Vila Real, Vila Real, Vila Real (Nossa Senhora da Conceição, São Pedro e São Dinis)

Referência do anúncio: CAS_928. Última atualização: 18 dezembro 2024.

Relatório de preços praticados nos últimos 8 meses

Vila Real, Vila Real, Vila Real (Nossa Senhora da Conceição, São Pedro e São Dinis)

Simule um Crédito Habitação

Os dados apresentados são meramente indicativos. Condições gerais
Seguir
Partilhar
Degraus Para O Sol - Unipessoal Lda
AMI 14033
Nome
Email
Contacto
Formato inválido
Agende uma visita
Referência do anúncio: CAS_928.
Última atualização: 18 dezembro 2024.
Contactar
Veja também
Anúncios na mesma zona
Moradia estilo antigo, V4, vista rio Douro. Portugal, Peso da Régua, Douro.
Vila Real, Peso da Régua, Fontelas
300 000 €
4
2
1
Moradia p/ recuperar c/ projecto aprovado
Vila Real, Vila Real, Borbela e Lamas de Olo
50 000 €
2
Moradia em ruínas
Vila Real, Vila Real, Adoufe e Vilarinho de Samardã
42 500 €
3
Moradia e terreno lugar do pinheiro / loureiro
Vila Real, Peso da Régua, Loureiro
40 000 €
2
1
Moradia usada c/ 3 moinhos de roda em vila real
Vila Real, Vila Real, Vila Real (Nossa Senhora da Conceição, São Pedro e São Dinis)
90 000 €
2
1
Moradia T3 para venda
Vila Real, Montalegre, Salto
189 000 €
3
1
Ruina de 280 m2 em Fornelos, Santa Marta de Penaguião
Vila Real, Santa Marta de Penaguião, Louredo e Fornelos
36 000 €
3
Conjunto de 2 casas de campo p/recuperar em vila real
Vila Real, Vila Real, Nogueira e Ermida
35 000 €
4
Vivenda c/ jardim junto ao hospital de lordelo - vila real
Vila Real, Vila Real, Vila Real (Nossa Senhora da Conceição, São Pedro e São Dinis)
490 000 €
8
5
Retoma Bancária, Moradia T2 em Nogueira, Vila Real
Vila Real, Vila Real, Nogueira e Ermida
40 000 €
2
2
Partilha o imóvel: Com Projeto Aprovado | Imóvel para Reconstrução de Moradia T3 | Vila Real
Partilha este imóvel nas tuas redes sociais ou envia diretamente para o email dos teus amigos.
Partilhar por email
Adicione uma nota ao imóvel!
Só você é que vê as notas que adiciona. Os imóveis com notas ficam nos favoritos para os poder consultar mais tarde.
Excluíste o anúncio:
Com Projeto Aprovado | Imóvel para Reconstrução de Moradia T3 | Vila Real