Pesquisar perto de mim
A aguardar a sua pesquisa
Voltar
Com Alvará de Construção | Imóvel para Reconstrução no Centro Histórico de Vila Real
Com Alvará de Construção | Imóvel para Reconstrução no Centro Histórico de Vila Real
Com Alvará de Construção | Imóvel para Reconstrução no Centro Histórico de Vila Real
Com Alvará de Construção | Imóvel para Reconstrução no Centro Histórico de Vila Real
Ver galeria (10)
Ver galeria (10)
Seguir
Partilhar

Com Alvará de Construção | Imóvel para Reconstrução no Centro Histórico de Vila Real

Vila Real, Vila Real, Vila Real (Nossa Senhora da Conceição, São Pedro e São Dinis) Ver no mapa
85 000 €
2 Quartos
2 WC's
117,26m2
Área Útil: 117,26m2
Área Bruta: 117,26m2
Certificação Energética: Isento

Descrição do anúncio

Ao Nosso Shopping e Junto ao Parque Corgo em Vila Real,

Imóvel inserido em área de reabilitação urbana (ARU)

com incentivos à respetiva reconstrução,

e Alvará de Obras Construção Aprovado para:

Moradia T2 de, Rés do Chão, 1º Andar e Pátio,

em Banda Continua (Duas Frentes)

com Área de Implantação de 58,52 m2

e Área Bruta de Construção de 117,26 m2

a Implantar em Terreno de 61 m2


Nota Importante: O imóvel Será Para Vender no Estado (Mau; Será Necessário Reconstruir ou Até Demolir ) em Que Se Encontra.


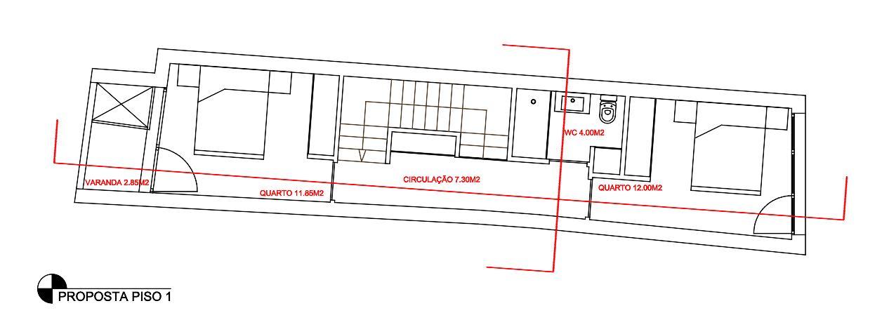
-Áreas, Distribuição e Respetivas Divisões:

Rés do Chão (58,52 m2): Zona Social com, Casa de Banho, Sala, Cozinha, Lavandaria e Pátio

1º Andar (58,74 m2): Zona Intima com, Casa de Banho, Dois Quartos e Varanda

Nota: As imagens 3D apresentadas no anúncio, são meramente ilustrativas

Galeria do imóvel

Com Alvará de Construção | Imóvel para Reconstrução no Centro Histórico de Vila Real
Com Alvará de Construção | Imóvel para Reconstrução no Centro Histórico de Vila Real
Com Alvará de Construção | Imóvel para Reconstrução no Centro Histórico de Vila Real
Com Alvará de Construção | Imóvel para Reconstrução no Centro Histórico de Vila Real
Com Alvará de Construção | Imóvel para Reconstrução no Centro Histórico de Vila Real
Com Alvará de Construção | Imóvel para Reconstrução no Centro Histórico de Vila Real

Localização do imóvel

Vila Real, Vila Real, Vila Real (Nossa Senhora da Conceição, São Pedro e São Dinis)

Referência do anúncio: CAS_923. Última atualização: 18 dezembro 2024.

Relatório de preços praticados nos últimos 8 meses

Vila Real, Vila Real, Vila Real (Nossa Senhora da Conceição, São Pedro e São Dinis)

Simule um Crédito Habitação

Os dados apresentados são meramente indicativos. Condições gerais
Seguir
Partilhar
Degraus Para O Sol - Unipessoal Lda
AMI 14033
Nome
Email
Contacto
Formato inválido
Agende uma visita
Referência do anúncio: CAS_923.
Última atualização: 18 dezembro 2024.
Contactar
Veja também
Anúncios na mesma zona
Moradia com Requinte
Vila Real, Peso da Régua, Peso da Régua e Godim
Sob consulta
5
3
Magnífica casa t6 em adoufe – a 5 minutos de vila real
Vila Real, Vila Real, Borbela e Lamas de Olo
430 000 €
6
4
1
Moradia T4 de Arquitetura Singular em Mateus, Vila Real
Vila Real, Vila Real, Mateus
525 000 €
4
4
Moradia t4 independente, junto ao centro escolar das alagoas, no peso da régua
Vila Real, Peso da Régua, Peso da Régua e Godim
365 000 €
4
2
Casa em pedra para recuperação total em vila meã / vila real
Vila Real, Vila Real, São Tomé do Castelo e Justes
15 000 €
1
Moradia T3 Venda em Celeirós,Sabrosa
Vila Real, Sabrosa, Celeirós
150 000 €
3
1
Casa em pedra para reconstrução em murça / vila real
Vila Real, Murça, Carva e Vilares
30 000 €
3
Moradia para venda na Campeã
Vila Real, Vila Real, Campeã
128 000 €
1
1
Moradia com terreno
Vila Real, Santa Marta de Penaguião, Lobrigos (São Miguel e São João Baptista) e Sanhoane
60 000 €
3
RESERVADA | Ruína em Terreno de 1500 m2 em Felgueiras, Fortunho, Vila Real
Vila Real, Sabrosa, Torre do Pinhão
Sob consulta
3
Partilha o imóvel: Com Alvará de Construção | Imóvel para Reconstrução no Centro Histórico de Vila Real
Partilha este imóvel nas tuas redes sociais ou envia diretamente para o email dos teus amigos.
Partilhar por email
Adicione uma nota ao imóvel!
Só você é que vê as notas que adiciona. Os imóveis com notas ficam nos favoritos para os poder consultar mais tarde.
Excluíste o anúncio:
Com Alvará de Construção | Imóvel para Reconstrução no Centro Histórico de Vila Real