Pesquisar perto de mim
A aguardar a sua pesquisa
Voltar
Carritos- TAVAREDE LOTE URBANO
Carritos- TAVAREDE LOTE URBANO
Carritos- TAVAREDE LOTE URBANO
Carritos- TAVAREDE LOTE URBANO
Ver galeria (16)
Ver galeria (16)
Seguir
Partilhar

Carritos- TAVAREDE LOTE URBANO

Coimbra, Figueira da Foz, Tavarede Ver no mapa
56 150 €
0 Quartos
0 WC's
Certificação Energética: N/D

Descrição do anúncio

Oportunidade Única em Carritos - TAVAREDE: Construa a Sua Casa de Sonho!

Se sempre sonhou em ter uma casa à sua medida, em um lugar tranquilo, rodeado pela natureza, mas perto de tudo, esta é a oportunidade que você estava esperando!

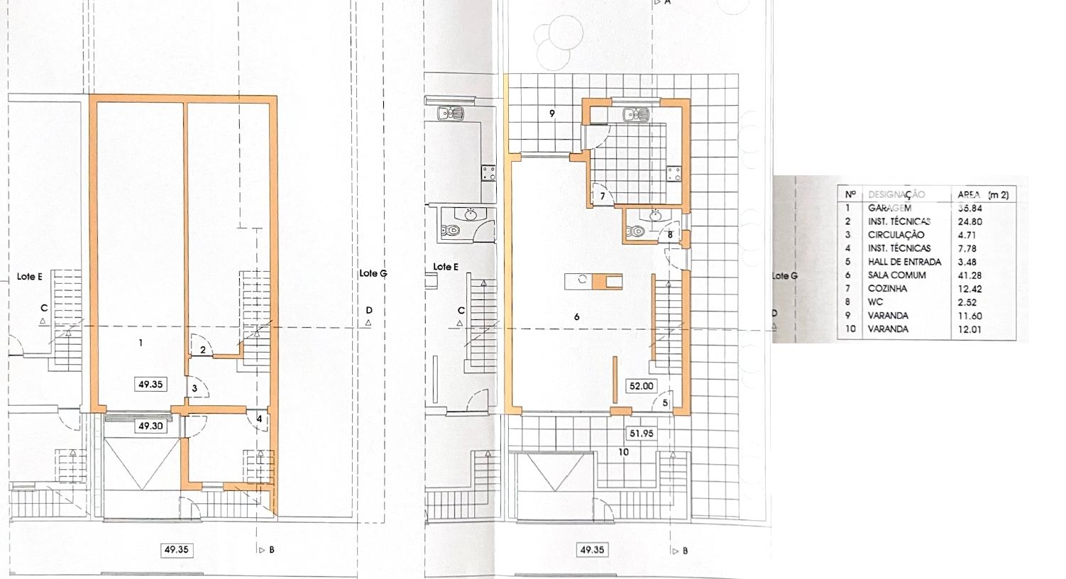
Apresentamos-lhe um lote de terreno urbano com 214m², situado numa zona elevada e privilegiada de Carritos, TAVAREDE.

Este terreno oferece-lhe uma viabilidade de construção de 287,5m² e já conta com um projeto aprovado desde 2008, pronto para dar início à construção da sua casa dos sonhos. E o melhor: está inserido num loteamento com todas as infraestruturas já implementadas, incluindo abastecimento de água e eletricidade.

Imagine-se a construir a sua moradia com vistas deslumbrantes, em total privacidade, numa localização perfeita: a apenas 5 minutos do centro da Figueira da Foz e a 50 km de Coimbra.

Quer mais? O aeroporto do Porto encontra-se a apenas 90 minutos, garantindo-lhe fácil acesso à cidade e ao mundo.

Este é o lugar ideal para quem busca tranquilidade sem abrir mão da conveniência e proximidade dos grandes centros urbanos. Venha fazer parte desta região acolhedora e descubra o potencial deste lote de terreno!

UrbiSeg Imobiliária – Oportunidades como esta só aparecem uma vez na vida!


(Se precisar de vender para comprar, nós podemos ajudar!)
Precisa de crédito habitação? Fale connosco! Somos intermediários de crédito autorizados pelo Banco de Portugal, com registo nº 0003928.
Visite-nos, venha conhecer a nossa Figueira da Foz.
A nossa cidade, localizada entre Lisboa e Porto, próxima de Coimbra, mantém ainda hoje o charme e a imponência da Rainha das Praias, além da tranquilidade e segurança de uma pequena cidade à beira-mar com um Campos Universitário no centro da cidade.
Figueira da Foz: onde o rio Mondego e o oceano se encontram.
Figueira da Foz: onde o rio Mondego e o oceano se encontram. Considerada a “Rainha da Costa de Prata”, a cidade situa-se no litoral da região Centro de Portugal e pertence ao distrito de Coimbra. A 30 minutos de Coimbra, a 01:30h do Aeroporto do Porto, a 02:00h do Aeroporto de Lisboa.


urbiseg, apartamentos, T1, T2, T3, moradias com garagem, casas na Figueira da Foz, para compra e venda, na Praia, Vista mar.
 

Características Gerais

  • Acesso com Estrada
  • Edificável

Galeria do imóvel

Carritos- TAVAREDE LOTE URBANO
Carritos- TAVAREDE LOTE URBANO
Carritos- TAVAREDE LOTE URBANO
Carritos- TAVAREDE LOTE URBANO
Carritos- TAVAREDE LOTE URBANO
Carritos- TAVAREDE LOTE URBANO

Localização do imóvel

Coimbra, Figueira da Foz, Tavarede

Referência do anúncio: 21262024. Última atualização: 02 setembro 2025.

Relatório de preços praticados nos últimos 8 meses

Coimbra, Figueira da Foz, Tavarede

Simule um Crédito Habitação

Os dados apresentados são meramente indicativos. Condições gerais
Seguir
Partilhar
TLourenço - Mediação Imobiliária, Unipessoal, Lda.
AMI 11324
233 ...
Chamada para a rede fixa nacional
Mostrar número
Nome
Email
Contacto
Formato inválido
Agende uma visita
Referência do anúncio: 21262024.
Última atualização: 02 setembro 2025.
Contactar
Veja também
Anúncios na mesma zona
Terreno Rústico Venda em Mira,Mira
Coimbra, Mira, Mira
55 000 €
Venda judicial de lote de terreno na Zona Industrial do Alto Padrão
Coimbra, Lousã, Gândaras
119 115 €
Loteamento com 38 lotes para moradias
Coimbra, Penacova, São Pedro de Alva e São Paio de Mondego
600 000 €
Lote de Terreno Venda em Mira,Mira
Coimbra, Mira, Mira
38 000 €
Terreno no centro de Oliveira do Hospital
Coimbra, Oliveira do Hospital, Oliveira do Hospital e São Paio de Gramaços
1 000 000 €
Terreno p/ construção na Figueira da Foz, cidade. Portugal, Figueira da Foz.
Coimbra, Figueira da Foz, Tavarede
680 000 €
Lote de terreno 8500m2 para construção- senhor da serra- semide
Coimbra, Miranda do Corvo, Semide e Rio Vide
75 000 €
Terreno Para Construção Venda em Arazede,Montemor-o-Velho
Coimbra, Montemor-o-Velho, Arazede
19 000 €
Lote de terreno industrial para construção
Coimbra, Cantanhede, Tocha
618 150 €
Terreno Para Construção Venda em Mira,Mira
Coimbra, Mira, Mira
120 000 €
Partilha o imóvel: Carritos- TAVAREDE LOTE URBANO
Partilha este imóvel nas tuas redes sociais ou envia diretamente para o email dos teus amigos.
Partilhar por email
Adicione uma nota ao imóvel!
Só você é que vê as notas que adiciona. Os imóveis com notas ficam nos favoritos para os poder consultar mais tarde.
Excluíste o anúncio:
Carritos- TAVAREDE LOTE URBANO