Pesquisar perto de mim
A aguardar a sua pesquisa
Voltar
Apartamentos T2 Junto ao Parque Corgo em Vila Real
Apartamentos T2 Junto ao Parque Corgo em Vila Real
Apartamentos T2 Junto ao Parque Corgo em Vila Real
Apartamentos T2 Junto ao Parque Corgo em Vila Real
Ver galeria (19)
Ver galeria (19)
Seguir
Partilhar

Apartamentos T2 Junto ao Parque Corgo em Vila Real

Vila Real, Vila Real, Vila Real (Nossa Senhora da Conceição, São Pedro e São Dinis) Ver no mapa
230 000 €
2 Quartos
2 WC's
61,3m2
Área Útil: 61,3m2
Área Bruta: 74,3m2
Certificação Energética: B

Descrição do anúncio

Apartamentos T2 Junto ao Parque Corgo em Vila Real

Em Construção com Previsão de Entrega para Durante o Ano de 2026


| Descrição e Respetivos Preços (de €230.000 a €300.000) das Frações |

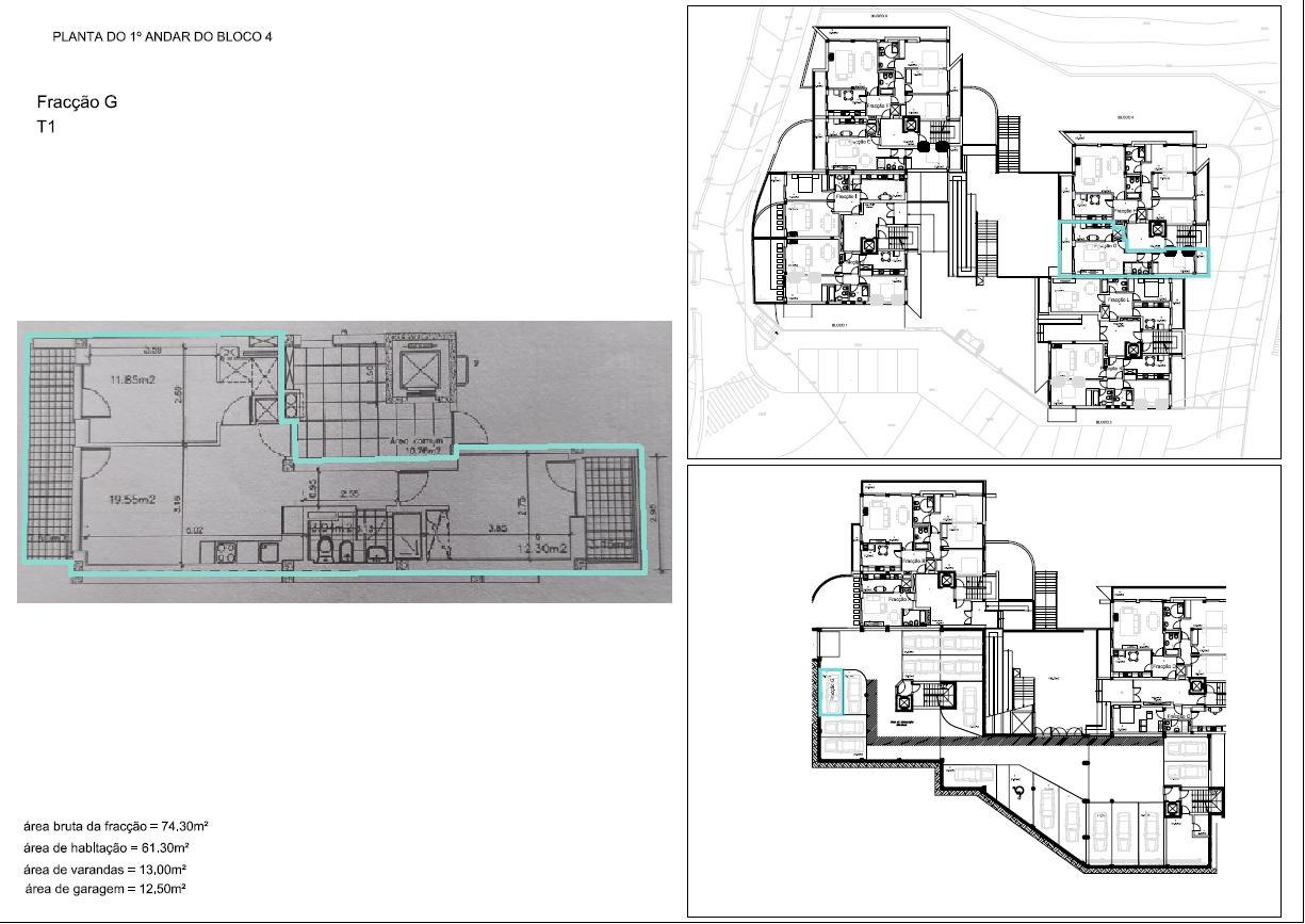
* Fração G: 1º Piso | Bloco 4 | Área bruta da fração: 74.30m2 | Área de habitação: 61.30m2 | Área de varandas: 13m2 | Área de garagem: 12.50m2 | de 2 Frentes com Exposição Solar: Nascente/ Poente | 230.000€

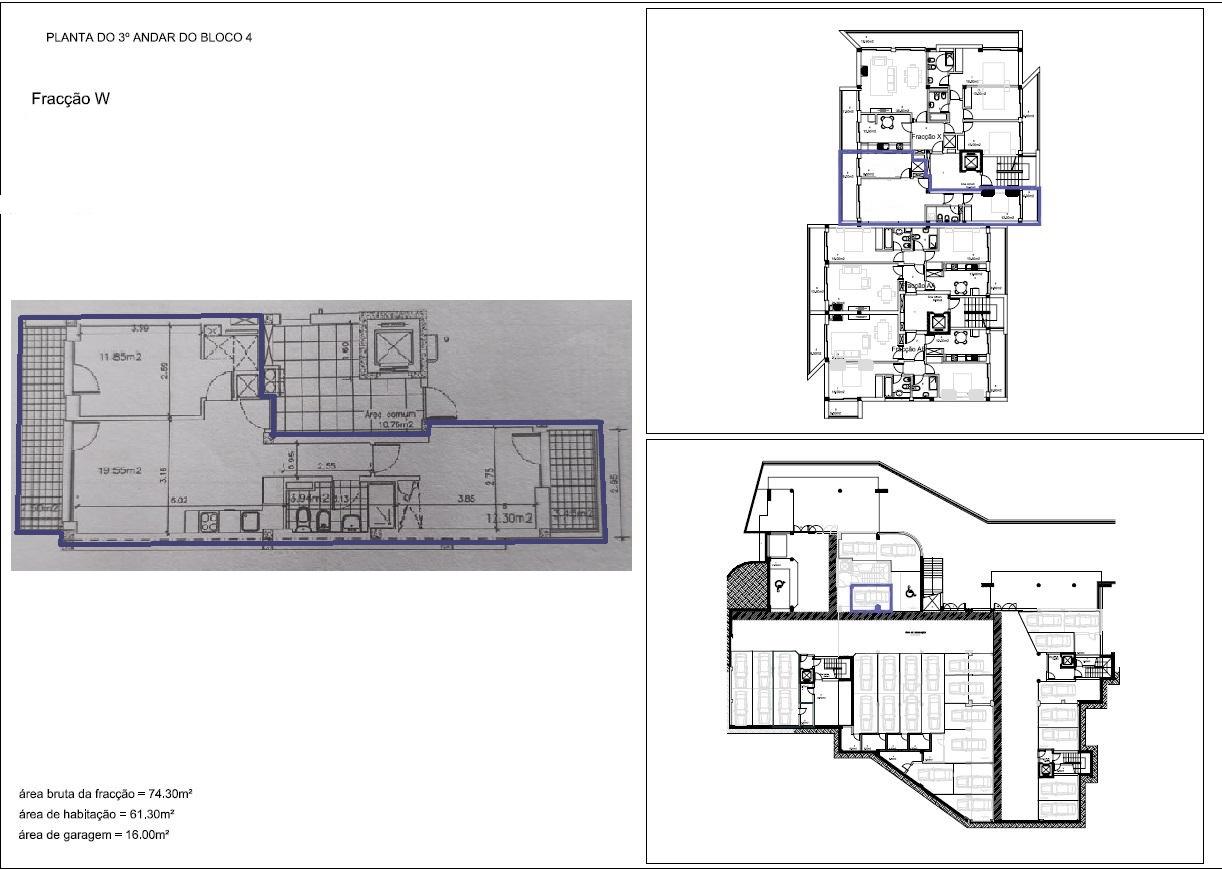
* Fração W: 3º Piso | Bloco 4 | Área bruta da fração: 74.30m2 | Área de habitação: 61.30m2 | Área de varandas: 13m2 | Área de garagem: 16m2 | de 2 Frentes com Exposição Solar: Nascente/ Poente | €240.000

* Fração L: Rés do Chão | Bloco 2 | Área bruta da fração: 77.70m2 | Área de habitação: 69.20m2 | Área de varandas: 8.50m2 | Área de garagem: 16m2 | de 2 Frentes com Exposição Solar: Nascente/ Poente | €265.000

* Fração K: Rés do Chão | Bloco 2 | Área bruta da fração: 93.15m2 | Área de habitação: 93.15m2 | Área de garagem (2 carros): 26m2 | de 3 Frentes com Exposição Solar: Nascente/ Sul/ Poente | €280.000

* Fração I: Rés do Chão | Bloco 1 | Área bruta da fração: 99.80m2 | Área de habitação: 68.30m2 | Área de varandas: 31.50m2 | Área de garagem: 13m2 | de 2 Frentes com Exposição Solar: Nascente/ Poente | €290.000

* Fração Z: 2º Piso | Bloco 1 | Área bruta da fração: 116.35m2 | Área de habitação: 96.85m2 | Área de varandas: 19.50m2 | Área de garagem (2 carros): 24m2 | de 3 Frentes com Exposição Solar: Nascente/ Sul/ Poente | €300.000

- Todos os Apartamentos Têm Lugar de Garagem para 1 ou 2 Carros

- Condomínio Fechado com 32 apartamentos distribuídos por 4 blocos (com elevador)

- Cada bloco com 4 andares e dois apartamentos por piso.


| Caraterísticas Gerais |

- Casas de Banho: Uma ou Duas

- Pavimentos: Flutuante e Cerâmicos

- Caixilharias: Em Alumínio Basculante com Vidros Duplos e Rotura Térmica

- Persianas: Elétricas e Térmicas

- Cozinha: Mobilada e equipada (com Placa Elétrica, Forno Elétrico e Exaustor).

- Tetos Falsos com Focos Embutidos.

- Roupeiros Embutidos.

- Ar Condicionado

- Bomba para Águas Quentes Sanitárias

- Revestimento Exterior: Capoto

Galeria do imóvel

Apartamentos T2 Junto ao Parque Corgo em Vila Real
Apartamentos T2 Junto ao Parque Corgo em Vila Real
Apartamentos T2 Junto ao Parque Corgo em Vila Real
Apartamentos T2 Junto ao Parque Corgo em Vila Real
Apartamentos T2 Junto ao Parque Corgo em Vila Real
Apartamentos T2 Junto ao Parque Corgo em Vila Real

Localização do imóvel

Vila Real, Vila Real, Vila Real (Nossa Senhora da Conceição, São Pedro e São Dinis)

Referência do anúncio: APA_811. Última atualização: 01 fevereiro 2026.

Relatório de preços praticados nos últimos 8 meses

Vila Real, Vila Real, Vila Real (Nossa Senhora da Conceição, São Pedro e São Dinis)

Simule um Crédito Habitação

Os dados apresentados são meramente indicativos. Condições gerais
Seguir
Partilhar
Degraus Para O Sol - Unipessoal Lda
AMI 14033
Nome
Email
Contacto
Formato inválido
Agende uma visita
Referência do anúncio: APA_811.
Última atualização: 01 fevereiro 2026.
Contactar
Veja também
Anúncios na mesma zona
Apartamento T4 na Nossa Senhora da Conceição em Vila Real
Vila Real, Vila Real, Vila Real (Nossa Senhora da Conceição, São Pedro e São Dinis)
290 000 €
4
3
Apartamento >=T10 Venda em Mondim de Basto,Mondim de Basto
Vila Real, Mondim de Basto, Mondim de Basto
450 000 €
10
1
Apartamento T3 para venda
Vila Real, Valpaços, Valpaços e Sanfins
105 000 €
3
1
Apartamento T3 para venda
Vila Real, Mondim de Basto, Mondim de Basto
199 000 €
3
1
Andar de Moradia T5 com Terraço e Quintal no Centro de Vila Real
Vila Real, Vila Real, Vila Real (Nossa Senhora da Conceição, São Pedro e São Dinis)
590 000 €
5
4
Apartamento T3 para venda
Vila Real, Chaves, Santa Maria Maior
219 900 €
3
2
T2 de 3 Frentes com 3 Varandas Junto ao Parque Corgo em Vila Real
Vila Real, Vila Real, Vila Real (Nossa Senhora da Conceição, São Pedro e São Dinis)
300 000 €
2
2
Apartamento T5 Venda em Vila Real (Nossa Senhora da Conceição, São Pedro e São Dinis),Vila Real
Vila Real, Vila Real, Vila Real (Nossa Senhora da Conceição, São Pedro e São Dinis)
450 000 €
5
3
Apartamentos T2 Junto ao Parque Corgo em Vila Real
Vila Real, Vila Real, Vila Real (Nossa Senhora da Conceição, São Pedro e São Dinis)
230 000 €
2
2
Apartamentos T3 Junto ao Parque Corgo em Vila Real
Vila Real, Vila Real, Vila Real (Nossa Senhora da Conceição, São Pedro e São Dinis)
400 000 €
3
2
Partilha o imóvel: Apartamentos T2 Junto ao Parque Corgo em Vila Real
Partilha este imóvel nas tuas redes sociais ou envia diretamente para o email dos teus amigos.
Partilhar por email
Adicione uma nota ao imóvel!
Só você é que vê as notas que adiciona. Os imóveis com notas ficam nos favoritos para os poder consultar mais tarde.
Excluíste o anúncio:
Apartamentos T2 Junto ao Parque Corgo em Vila Real