Pesquisar perto de mim
A aguardar a sua pesquisa
Voltar
Apartamento T4 de luxo em Gaia
Apartamento T4 de luxo em Gaia
Apartamento T4 de luxo em Gaia
Apartamento T4 de luxo em Gaia
Ver galeria (41)
Ver galeria (41)
Seguir
Partilhar

Apartamento T4 de luxo em Gaia

Porto, Vila Nova de Gaia, Madalena Ver no mapa
910 000 €
4 Quartos
4 WC's
158,8m2
Área Útil: 158,8m2
Área Bruta: 158,8m2
Certificação Energética: A

Descrição do anúncio

O empreendimento é composto por quatro edifícios de cinco pisos, além de Recuado. No total, há 157 apartamentos, com tipologias que variam do T1 ao T5. Todos os apartamentos estão equipados com cozinhas completas e varandas espaçosas que oferecem vistas panorâmicas.
Alguns dos apartamentos têm terraços privados com piscina ou jacuzzi. Esses recursos adicionais proporcionam aos moradores uma experiência de luxo e conforto exclusivos.

O Projeto Marina Douro foi concebido para oferecer todos os elementos essenciais para uma vida familiar confortável. Os residentes terão acesso a um jardim e parque infantil comum a todos os edifícios, promovendo um maior espírito de comunidade e convívio entre as famílias. Além disso, todos os apartamentos incluem lugares de estacionamento privativos na garagem do seu próprio edifício.
A primeira fase do empreendimento é a Marina Douro 1 que conta com 26 apartamentos.

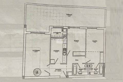
A fração em questão apresenta as seguintes caraterísticas:

- Open space que reúne em si sala de estar, sala de jantar e cozinha com 49,9 m2;
- Duas suítes com 15,2 m2 e 13,9 respectivamente;
- Dois quartos com 10,6 m2 respectivamente
- Quatro casas de banho com 4,9m2, 4,6m2, 3,4m2, 2,1m2 respectivamente
- Varanda com 70,5m2
- Lugar de garagem de 32,9 m2 e arrecadação de 7,0 m2.


Localiza-se a :
- 2 Km Supermercado,
- 2 Km Shopping Arrábida,
- 2 Km Farmácia,
- 15 Km Aeroporto do Porto
- 2,5 Km do Porto

Características Técnicas:
- Pavimentos de hall, sala, cozinha e quartos em madeira de carvalho, multicamada com camada final em madeira nobre;
- Tetos falso em gesso cartonado com 13 mm de espessura
- Paredes em Estuque projectado do tipo 'Seral'
- Roupeiros Interior em melamina de linho, Portas em MDF
- Rodapés MDF hidrófugo
- Aquecimento e arrefecimento por sistema multi splits com unidades murais interiores
- Aquecimento das águas sanitárias por bomba de calor
- Vídeo Porteiro
- Parque privativo com acesso à cave por portão automático com
comando à distância
-Ecopontos no passeio de acesso ao empreendimento para recolha seletiva de
resíduos sólidos indiferenciados, Vidro, Papel e Embalagens
-Sala de condomínio
-Arranjo exterior paisagístico com Parque infantil, zonas de estar e lazer,.
espelho de água e passadiços de madeira.

O prazo previsto para a construção é de 30 meses, tendo início previsto para Maio 2024.

Galeria do imóvel

Apartamento T4 de luxo em Gaia
Apartamento T4 de luxo em Gaia
Apartamento T4 de luxo em Gaia
Apartamento T4 de luxo em Gaia
Apartamento T4 de luxo em Gaia
Apartamento T4 de luxo em Gaia

Localização do imóvel

Porto, Vila Nova de Gaia, Madalena

Referência do anúncio: 0234/24. Última atualização: 17 maio 2025.

Relatório de preços praticados nos últimos 8 meses

Porto, Vila Nova de Gaia, Madalena

Simule um Crédito Habitação

Os dados apresentados são meramente indicativos. Condições gerais
Seguir
Partilhar
Golden Jupiter Unipessoal Lda
AMI 14719
Nome
Email
Contacto
Formato inválido
Agende uma visita
Referência do anúncio: 0234/24.
Última atualização: 17 maio 2025.
Contactar
Veja também
Anúncios na mesma zona
T4 novo Foco C/ varanda
Porto, Porto, Lordelo do Ouro e Massarelos
830 000 €
4
5
1
Apartamento T3 de Luxo junto à Marina de Vila do Conde
Porto, Vila do Conde, Vila do Conde
610 000 €
3
1
1
Apartamento T2 de Luxo junto à Marina de Vila do Conde
Porto, Vila do Conde, Vila do Conde
410 000 €
2
1
1
Apartamento T3 Venda em Penafiel,Penafiel
Porto, Penafiel, Penafiel
310 000 €
3
1
1
Apartamento T4 de Luxo junto à Marina de Vila do Conde
Porto, Vila do Conde, Vila do Conde
990 000 €
4
1
1
Apartamento T1+1 com suite, varanda e lugar de garagem no empreendimento Douro Mar
Porto, Vila Nova de Gaia, Canidelo
139 900 €
2
2
Apartamento T1 com suíte, varanda e lugar de garagem no empreendimento Douro Mar
Porto, Vila Nova de Gaia, Canidelo
139 900 €
1
1
T2 novo, Cidade de Rebordosa
Porto, Paredes, Rebordosa
250 000 €
2
3
Apartamento T2 Duplex Novo junto à Rua de Santa Catarina
Porto, Vila Nova de Gaia, Santa Marinha e São Pedro da Afurada
345 000 €
2
2
1
Apartamento T4 Venda em Canidelo,Vila Nova de Gaia
Porto, Vila Nova de Gaia, Canidelo
1 045 000 €
4
4
1
Partilha o imóvel: Apartamento T4 de luxo em Gaia
Partilha este imóvel nas tuas redes sociais ou envia diretamente para o email dos teus amigos.
Partilhar por email
Adicione uma nota ao imóvel!
Só você é que vê as notas que adiciona. Os imóveis com notas ficam nos favoritos para os poder consultar mais tarde.
Excluíste o anúncio:
Apartamento T4 de luxo em Gaia