Pesquisar perto de mim
A aguardar a sua pesquisa
Voltar
Apartamento T3 Venda em Bonfim,Porto
Apartamento T3 Venda em Bonfim,Porto
Apartamento T3 Venda em Bonfim,Porto
Apartamento T3 Venda em Bonfim,Porto
Ver galeria (8)
Ver galeria (8)
Seguir
Partilhar

Apartamento T3 Venda em Bonfim,Porto

Porto, Porto, Bonfim Ver no mapa
470 000 €
3 Quartos
3 WC's
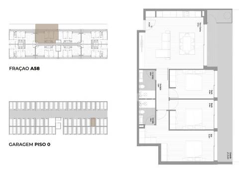
125m2
Área Útil: 125m2
Área Bruta: 176m2
Ano de Construção: 2026
Certificação Energética: A
Estado: Novo

Descrição do anúncio

Apartamento T3 com terraço de 51m2, com 1 lugar de garagem para 1 carro e arrumos, para venda na mais recente proposta residencial na cidade do Porto.

Este empreendimento é um edifi´cio de habitac¸a~o de linguagem marcadamente contempora^nea, em frente à igreja do Bonfim, no Porto.

O Bonfim é o bairro trendy do Porto, na envolvente da Baixa: uma zona residencial de excele^ncia em profunda transformac¸a~o com comércio local e restaurantes, muito procurada por jovens e estrangeiros, pela sua localizac¸a~o, rede de transporte e pela influe^ncia arti´stica da Escola de Belas Artes e Escola Soares dos Reis.

O projeto contempla 38 fogos (T0, T1, T2 e T3) , distribui´dos por 6 pisos.
Os apartamentos, com amplas varandas, conjugam design, conforto e funcionalidade, destinando-se a um pu´blico que privilegia viver na envolvente da Baixa do Porto.

O edifi´cio dispo~e de lugares de garagem e arrecadac¸o~es, distribui´dos por duas caves.

A 10 minutos a pé encontra-se a estac¸a~o de metro do Campo 24 de Agosto e o novo Terminal Intermodal de Campanha~ (metro, comboio e rede de expressos).

Na Rua do Bonfim circulam inu´meros autocarros que terminam a sua marcha no mercado do Bolha~o.

MAPA DE ACABAMENTOS
PAVIMENTOS
Zonas secas: soalho flutuante Swiss Krono ou equivalente
Zonas húmidas: mosaico porcelânico
 PAREDES
Zonas secas: gesso cartonado pintado
Zonas húmidas:– Cozinha: aglomerado de mármore compacto no tampo e entre móveis
– WC: mosaico porcelânico e gesso cartonado pintado


TECTOS
Zonas secas: tetos falsos em gesso cartonado; — Zonas húmidas: tetos falsos em gesso cartonado hidrófugo
 ISOLAMENTOS entre FRAÇÕES
Paredes entre habitações contíguas em bloco térmico
Placas de gesso cartonado e isolamento
 CARPINTARIAS
Portas e armários: MDF Lacado
Cozinhas: MDF Lacado
 INSTALAÇÕES SANITÁRIAS
Louça sanitária suspensa Sanindusa ou equivalente
Lavatório de embutir Valadares ou equivalente e armário em MDF lacado
Duche em mosaico porcelânico e resguardo em vidro
Espelho
Torneiras misturadoras monocomando OFA ou equivalente
 EQUIPAMENTOS DIVERSOS
Portas de segurança Portrisa ou equivalente.
Caixilharia de alumínio anodisado com vidro duplo e corte térmico
Eletrodomésticos Candy ou equivalente
Material elétrico de manobra da EFAPEL ou equivalente
Projetores de LED
Videoporteiro
Aquecimento das águas sanitárias por bomba de calor
Lava-louça em inox e misturadora monocomando OFA ou equivalente
Elevadores Orona ou equivalente
Pré-instalação de ar condicionado
 PRAZOS
Início da obra: Junho, 2024
Conclusão da obra: Janeiro, 2026
Escrituras: Março, 2026
 Observações:
O mapa de acabamento apresentado é meramente indicativo, pode sofrer modificações decorrentes de alterações de projeto, determinadas pelo promotor, pela indisponibilidade de fornecimento ou termo de produção. No item climatização, apenas se encontra incluída a pré instalação do ar condicionado, devendo as restantes opções serem orçamentadas.
As eventuais substituições serão efetuadas respeitando os padrões de qualidade idênticos aos previstos e em concordância com o cliente.
Imagens meramente ilustrativas.
Entre em contacto para mais informações e agende já a sua visita a este imóvel.

Características Gerais

  • Ar Condicionado
  • Cozinha Equipada
  • Garagem
  • Estacionamento
  • Terraço
  • Guarda Roupa

Galeria do imóvel

Apartamento T3 Venda em Bonfim,Porto
Apartamento T3 Venda em Bonfim,Porto
Apartamento T3 Venda em Bonfim,Porto
Apartamento T3 Venda em Bonfim,Porto
Apartamento T3 Venda em Bonfim,Porto
Apartamento T3 Venda em Bonfim,Porto

Localização do imóvel

Porto, Porto, Bonfim

Referência do anúncio: 3851-D. Última atualização: 03 outubro 2024.

Relatório de preços praticados nos últimos 8 meses

Porto, Porto, Bonfim

Simule um Crédito Habitação

Os dados apresentados são meramente indicativos. Condições gerais
Seguir
Partilhar
Projecto Perfeito - Espinho
AMI 8481
220 ...
Chamada para a rede fixa nacional
Mostrar número
Nome
Email
Contacto
Formato inválido
Agende uma visita
Referência do anúncio: 3851-D.
Última atualização: 03 outubro 2024.
Contactar
Veja também
Anúncios na mesma zona
Moradia T4 em condomínio fechado com piscina – Praia da Madalena
Porto, Vila Nova de Gaia, Madalena
1 200 000 €
4
1
1
Apartamento T0 Venda em Cedofeita, Santo Ildefonso, Sé, Miragaia, São Nicolau e Vitória,Porto
Porto, Porto, Cedofeita, Santo Ildefonso, Sé, Miragaia, São Nicolau e Vitória
305 000 €
1
Moradia T4 em condomínio fechado com piscina – Praia da Madalena
Porto, Vila Nova de Gaia, Madalena
1 100 000 €
4
1
1
Apartamentos novos em Matosinhos – Junto ao Mercado | Qualidade e Conforto
Porto, Matosinhos, Matosinhos e Leça da Palmeira
230 000 €
1
1
Moradia T4 em condomínio fechado com piscina – Praia da Madalena
Porto, Vila Nova de Gaia, Madalena
1 100 000 €
4
1
1
Apartamento T3 Venda em Matosinhos e Leça da Palmeira,Matosinhos
Porto, Matosinhos, Matosinhos e Leça da Palmeira
415 000 €
3
2
1
Apartamento T2 Venda em Arcozelo,Vila Nova de Gaia
Porto, Vila Nova de Gaia, Arcozelo
265 000 €
2
1
1
Moradia T4 em condomínio fechado com piscina – Praia da Madalena
Porto, Vila Nova de Gaia, Madalena
1 100 000 €
4
1
1
Apartamento T1 Semi-Novo junto ao Mercado de Matosinhos
Porto, Matosinhos, Matosinhos e Leça da Palmeira
325 000 €
1
1
1
Apartamentos novos em Matosinhos – Junto ao Mercado | Qualidade e Conforto
Porto, Matosinhos, Matosinhos e Leça da Palmeira
280 000 €
1
1
1
Partilha o imóvel: Apartamento T3 Venda em Bonfim,Porto
Partilha este imóvel nas tuas redes sociais ou envia diretamente para o email dos teus amigos.
Partilhar por email
Adicione uma nota ao imóvel!
Só você é que vê as notas que adiciona. Os imóveis com notas ficam nos favoritos para os poder consultar mais tarde.
Excluíste o anúncio:
Apartamento T3 Venda em Bonfim,Porto