Pesquisar perto de mim
A aguardar a sua pesquisa
Voltar
Apartamento t3 renovado em entrecampos – localização premium
Apartamento t3 renovado em entrecampos – localização premium
Apartamento t3 renovado em entrecampos – localização premium
Apartamento t3 renovado em entrecampos – localização premium
Ver galeria (32)
Ver galeria (32)
Seguir
Partilhar

Apartamento t3 renovado em entrecampos – localização premium

Lisboa, Lisboa, São Domingos de Benfica Ver no mapa
2 800 € /mês
3 Quartos
2 WC's
117,31m2
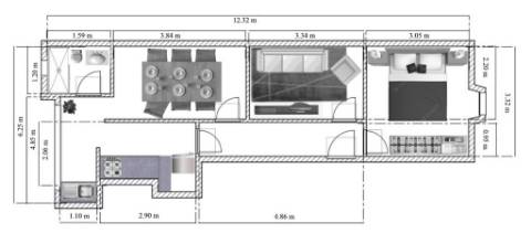
Área Útil: 117,31m2
Área Bruta: 137m2
Ano de Construção: 1956
Certificação Energética: F

Descrição do anúncio

Apartamento T3 Renovado em Entrecampos –  Conforto, Luz e Localização Premium
Apartamento totalmente renovado, localizado numa das zonas mais centrais e valorizadas de Lisboa — Entrecampos / Av. das Forças Armadas, junto à Cidade Universitária, ISCTE e Hospital de Santa Maria.Uma localização de excelência, ideal para quem procura conforto, conveniência e qualidade de vida, com acesso rápido a transportes, comércio e serviços.
Originalmente T4 e atualmente transformado em T3, o apartamento apresenta uma planta funcional, com divisões equilibradas, muita luz natural e um ambiente acolhedor.O soalho em madeira envernizada, as casas de banho modernas e a cozinha nova e totalmente equipada conferem-lhe um estilo contemporâneo e elegante.
Principais característicasCozinha equipada com eletrodomésticos novos: forno, placa, exaustor, frigorífico, máquina de lavar loiça e roupa;3 quartos + sala ampla e luminosa;2 casas de banho completas;Varanda com ótima exposição solar;Ar condicionado e vidros duplos;Arrecadação;Porta blindada e 2 elevadores;Zona com estacionamento público e parques privados nas imediações.
Localização privilegiadaTransportes: metro, comboio e autocarros a poucos minutos;Educação: ISCTE, Universidade de Lisboa, Faculdade de Farmácia;Serviços e comércio: supermercados (Continente, Auchan, My Auchan), cafés, restaurantes e farmácias;Saúde: Hospital de Santa Maria e clínicas privadas nas redondezas;Lazer: Jardins de Entrecampos e Alameda da Cidade Universitária a curta distância.
Com 117 m² de área, excelente luminosidade e acabamentos modernos, este apartamento é a escolha perfeita para quem valoriza vivência urbana com conforto e elegância no centro de Lisboa.
Marque já a sua visita e descubra o seu novo lar em Entrecampos!
Condições de arrendamento2 rendas antecipadas + 1 caução;Última declaração de IRS e respetiva nota de liquidação;Declaração da entidade patronal;Mapa de responsabilidades do Banco de Portugal;Comprovativos de capacidade financeira.


Predimed Imobiliária, Mediação Imobiliária, Lda.
Avenida Brasil 43, 12º Andar, 1700-062 Lisboa
Licença AMI nº 22503
Pessoa Coletiva nº 517 239 345
Seguro Responsabilidade Civil: Nº de Apólice RC65379424 Fidelidade

Características Gerais

  • Ar Condicionado
  • Cozinha Equipada
  • Elevador

Galeria do imóvel

Apartamento t3 renovado em entrecampos – localização premium
Apartamento t3 renovado em entrecampos – localização premium
Apartamento t3 renovado em entrecampos – localização premium
Apartamento t3 renovado em entrecampos – localização premium
Apartamento t3 renovado em entrecampos – localização premium
Apartamento t3 renovado em entrecampos – localização premium

Localização do imóvel

Lisboa, Lisboa, São Domingos de Benfica

Referência do anúncio: 055841. Última atualização: 27 outubro 2025.

Relatório de preços praticados nos últimos 8 meses

Lisboa, Lisboa, São Domingos de Benfica

Simule um Crédito Habitação

Os dados apresentados são meramente indicativos. Condições gerais
Seguir
Partilhar
Predimed Imobiliaria Mediacao Imobiliaria Lda
AMI 22503
Nome
Email
Contacto
Formato inválido
Agende uma visita
Referência do anúncio: 055841.
Última atualização: 27 outubro 2025.
Contactar
Veja também
Anúncios na mesma zona
T2+1 Remodelado na Penha de França
Lisboa, Lisboa, Penha de França
1 400 € /Mês
2
1
T1 + 1 totalmente remodelado em Campo de Ourique, Lisboa
Lisboa, Lisboa, Campo de Ourique
1 200 € /Mês
1
1
Apartamento T4 Arrendamento em Parque das Nações,Lisboa
Lisboa, Lisboa, Parque das Nações
4 500 € /Mês
4
2
1
Apartamento T2 Parede Centro a 3 minutos da Estação da CP
Lisboa, Cascais, Carcavelos e Parede
1 000 € /Mês
2
1
Apartamento T3 para arrendar em prédio com elevador - Ericeira
Lisboa, Mafra, Ericeira
1 800 € /Mês
3
2
T2 Porto Salvo em águas furtadas de moradia com agua e luz incluida
Lisboa, Oeiras, Porto Salvo
950 € /Mês
2
1
Estúdio no Lumiar, remodelado e a estrear
Lisboa, Lisboa, Lumiar
950 € /Mês
1
Apartamento T3 Arrendamento em Póvoa de Santo Adrião e Olival Basto,Odivelas
Lisboa, Odivelas, Póvoa de Santo Adrião e Olival Basto
1 650 € /Mês
3
2
Apartamento T2 Arrendamento em Parque das Nações,Lisboa
Lisboa, Loures, Moscavide e Portela
3 000 € /Mês
2
1
1
T2 Oeiras, Figueirinha
Lisboa, Oeiras, Oeiras e São Julião da Barra, Paço de Arcos e Caxias
1 200 € /Mês
2
1
Partilha o imóvel: Apartamento t3 renovado em entrecampos – localização premium
Partilha este imóvel nas tuas redes sociais ou envia diretamente para o email dos teus amigos.
Partilhar por email
Adicione uma nota ao imóvel!
Só você é que vê as notas que adiciona. Os imóveis com notas ficam nos favoritos para os poder consultar mais tarde.
Excluíste o anúncio:
Apartamento t3 renovado em entrecampos – localização premium