Pesquisar perto de mim
A aguardar a sua pesquisa
Voltar
Apartamento T3 Implex
Apartamento T3 Implex
Apartamento T3 Implex
Apartamento T3 Implex
Ver galeria (15)
Ver galeria (15)
Seguir
Partilhar

Apartamento T3 Implex

Aveiro, Aveiro, Glória e Vera Cruz Ver no mapa
625 000 €
3 Quartos
4 WC's
143m2
Área Útil: 143m2
Área Bruta: 282m2
Ano de Construção: 2025
Certificação Energética: A+
Estado: Em Construção

Descrição do anúncio

Gostaria de viver perto do Centro de Aveiro com tudo o que é importante a dois passos?

Então eis a escolha ideal!

Bem-vindo a uma residência que combina perfeitamente estilo contemporâneo com funcionalidade em uma das cidades mais encantadoras de Portugal. 

Empreendimento com tipologias T1 a T3 Implex, possuindo uma excelente exposição solar, áreas generosas e acabamentos de qualidade superior. 

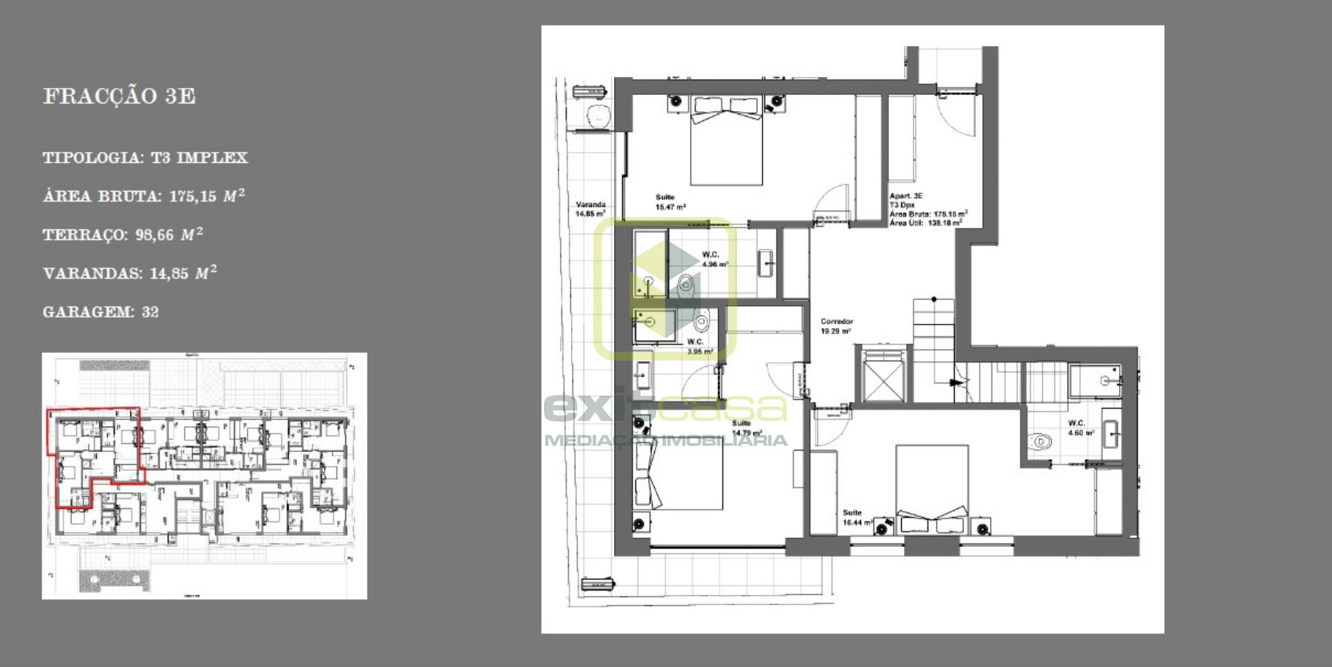
Este apartamento T3 Implex conta com: hall de entrada, cozinha semi-equipada e sala espaçosa em open space, hall de quartos, 3 suites com varandas, wc de serviço, lavandaria, terraço e garagem.

Características da zona:
A União de Freguesias de Glória e Vera Cruz é a junta de freguesia que engloba o centro do município de Aveiro.

Na sua área envolvente é possível encontrar uma oferta diversificada de restauração, bem como de escolas (Universidade de Aveiro, Escola Secundária Homem Cristo, Mário Sacramento e José Estevão), unidades de saúde (Hospital Infante D. Pedro, Hospital da Luz, Centro de Saúde), espaços de comércio (Mercado Manuel Firmino, Mercado de Santiago e Mercado José Estevão) e espaços de lazer (Teatro Aveirense, Parque da Cidade de Aveiro, Jardim do Rossio, Jardim Fonte Nova).

O imóvel encontra-se a 11km da praia e 84km do aeroporto.

Imagine começar o seu dia com um passeio pelos canais pitorescos de Aveiro, seguido por um café em um dos muitos cafés à beira-água. Aveiro é conhecida como a "Veneza de Portugal" devido aos seus canais e é famosa por sua atmosfera única e rica cultura.

Descubra a sua próxima casa connosco!

Para mais esclarecimentos sobre este apartamento T3 Implex, não hesite em contactar-nos.

Ref 5266-21 - Veja mais imóveis em exitcasa. pt

Tratamos da aprovação do seu crédito!
Intermediário de crédito vinculado nº 0002066 licenciado pelo Banco de Portugal.

Obs.: Fotos meramente ilustrativas.

Este anúncio foi publicado por rotina informática, todos os dados e informações carecem de confirmação junto da Exitcasa.

Características Gerais

  • Ar Condicionado
  • Cozinha Equipada
  • Garagem
  • Estacionamento
  • Terraço
  • Guarda Roupa
  • Varandas

Galeria do imóvel

Apartamento T3 Implex
Apartamento T3 Implex
Apartamento T3 Implex
Apartamento T3 Implex
Apartamento T3 Implex
Apartamento T3 Implex

Localização do imóvel

Aveiro, Aveiro, Glória e Vera Cruz

Referência do anúncio: 5266-21. Última atualização: 21 outubro 2025.

Relatório de preços praticados nos últimos 8 meses

Aveiro, Aveiro, Glória e Vera Cruz

Simule um Crédito Habitação

Os dados apresentados são meramente indicativos. Condições gerais
Seguir
Partilhar
Exitcasa - Aveiro
AMI 5752
234 ...
Chamada para a rede fixa nacional
Mostrar número
Nome
Email
Contacto
Formato inválido
Agende uma visita
Referência do anúncio: 5266-21.
Última atualização: 21 outubro 2025.
Contactar
Veja também
Anúncios na mesma zona
Apartamento T3 em Oliveira de Azeméis
Aveiro, Oliveira de Azeméis, Oliveira de Azeméis, Santiago de Riba-Ul, Ul, Macinhata da Seixa e Madail
213 000 €
3
2
Apartamento T3 Duplex com grande terraço na Praia da Vagueira
Aveiro, Vagos, Gafanha da Boa Hora
640 000 €
3
2
Apartamento t2 com suite, varanda e 2 garagens – barrocas, aveiro
Aveiro, Aveiro, Glória e Vera Cruz
460 000 €
2
2
1
Apartamento T3 Venda em Sobrado e Bairros,Castelo de Paiva
Aveiro, Castelo de Paiva, Sobrado e Bairros
237 000 €
3
3
Apartamento t2 nas barrocas
Aveiro, Aveiro, Glória e Vera Cruz
430 000 €
2
2
1
Apartamento T3 DUPLEX Venda em São Bernardo,Aveiro
Aveiro, Aveiro, São Bernardo
500 000 €
3
1
Apartamento t2 nas barrocas
Aveiro, Aveiro, Glória e Vera Cruz
450 000 €
2
2
1
T 3 vista de mar e ria na praia da costa nova
Aveiro, Ílhavo, Gafanha da Encarnação
985 000 €
3
3
1
Apartamento t3 com 2 suítes
Aveiro, Aveiro, Glória e Vera Cruz
570 000 €
3
3
1
Apartamento t2 nas barrocas, aveiro – conforto, modernidade e elegância
Aveiro, Aveiro, Glória e Vera Cruz
389 280 €
2
2
Partilha o imóvel: Apartamento T3 Implex
Partilha este imóvel nas tuas redes sociais ou envia diretamente para o email dos teus amigos.
Partilhar por email
Adicione uma nota ao imóvel!
Só você é que vê as notas que adiciona. Os imóveis com notas ficam nos favoritos para os poder consultar mais tarde.
Excluíste o anúncio:
Apartamento T3 Implex