Pesquisar perto de mim
A aguardar a sua pesquisa
Voltar
Apartamento T3 Duplex
Apartamento T3 Duplex
Apartamento T3 Duplex
Apartamento T3 Duplex
Ver galeria (14)
Ver galeria (14)
Seguir
Partilhar

Apartamento T3 Duplex

Aveiro, Ílhavo, Ílhavo (São Salvador) Ver no mapa
390 000 €
3 Quartos
3 WC's
90m2
Área Útil: 90m2
Área Bruta: 199m2
Ano de Construção: 2025
Certificação Energética: A+
Estado: Em Construção

Descrição do anúncio

Empreendimento de Design Moderno com excelente exposição solar.

O edifício tem uma localização premium no Centro de Ílhavo e uma arquitetura simples e minimalista.

Acabamentos de alta qualidade, com elevado isolamento térmico e acústico, e com pormenores pensados para o seu dia a dia, traduzindo-se em elegância, conforto e funcionalidade.

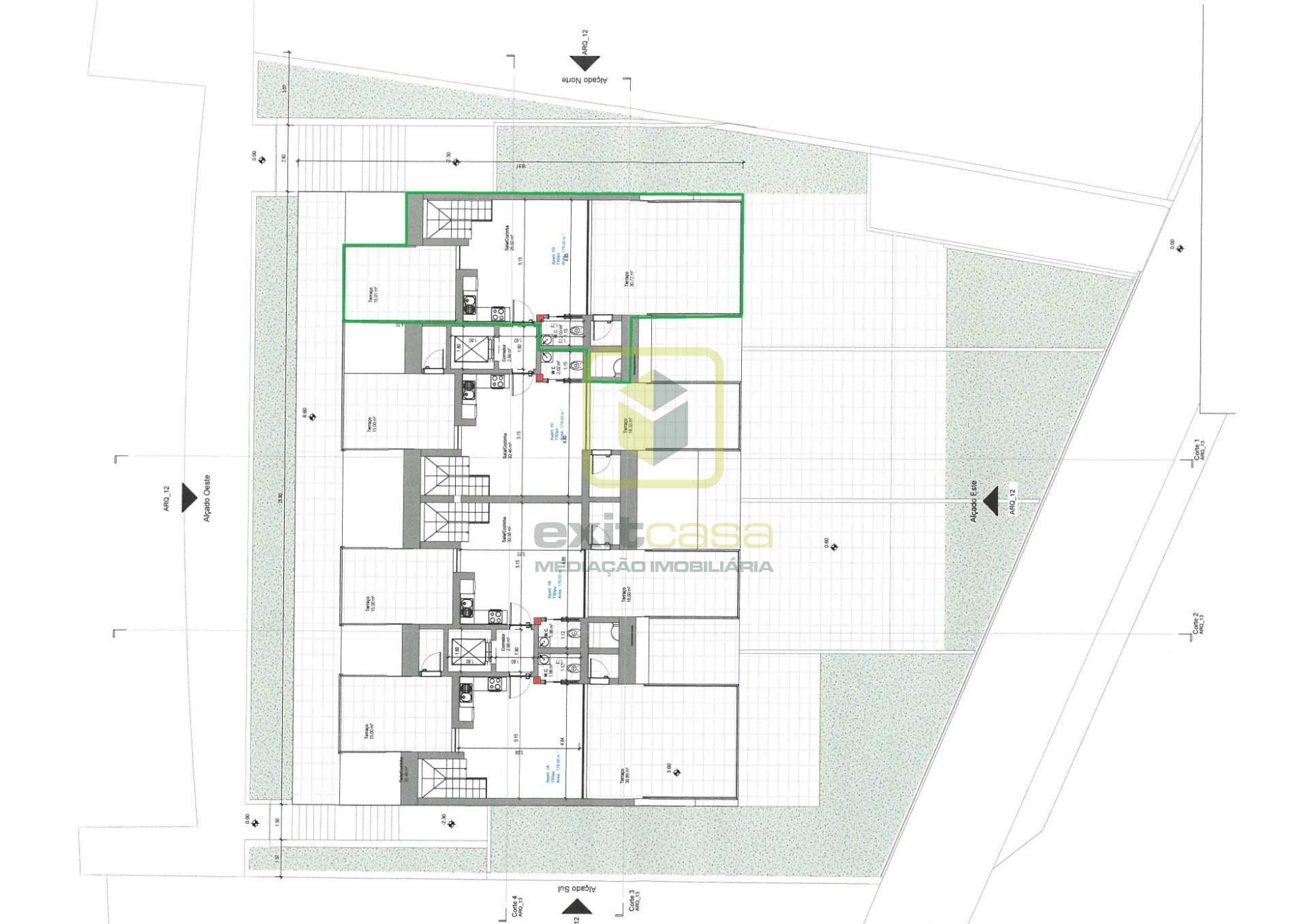
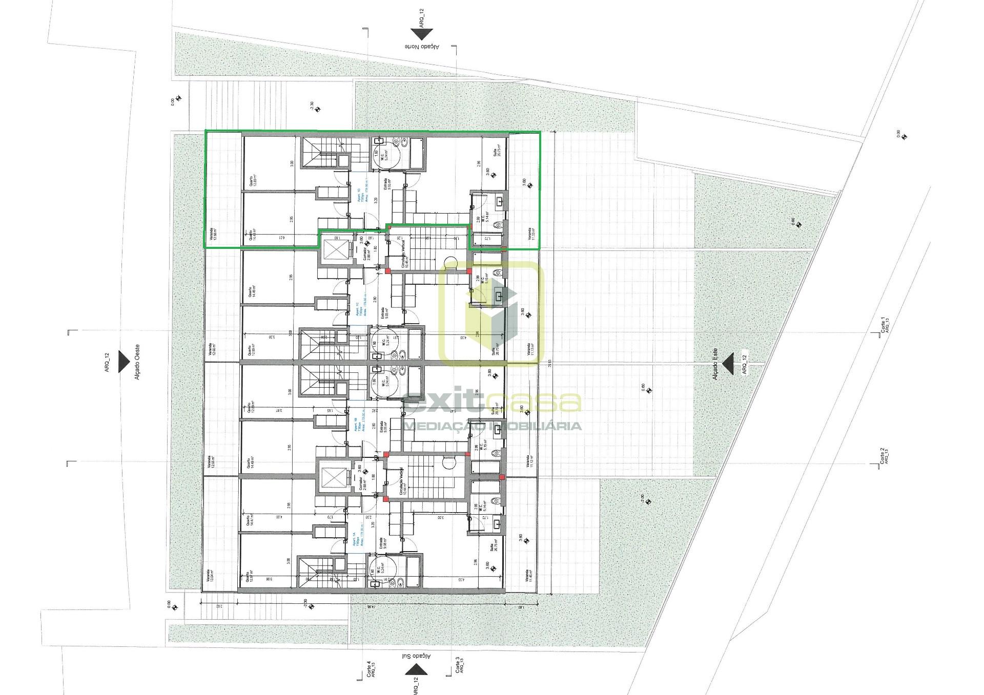
Nos T3 Duplex o acesso poderá ser feito por duas entradas distintas proporcionando assim, conveniência e flexibilidade adicionais para os moradores. Além da área habitacional dispõem de duas varandas no primeiro andar e dois terraços no piso superior.

Este Apartamento T3 Duplex é constituído por:
- Hall de Entrada;
- Cozinha Equipada e Sala em Open Space;
- Terraços;
- Lavandaria;
- WC Serviço;
- Suite;
- WC Completo;
- Quartos com Roupeiros;
- Varandas;
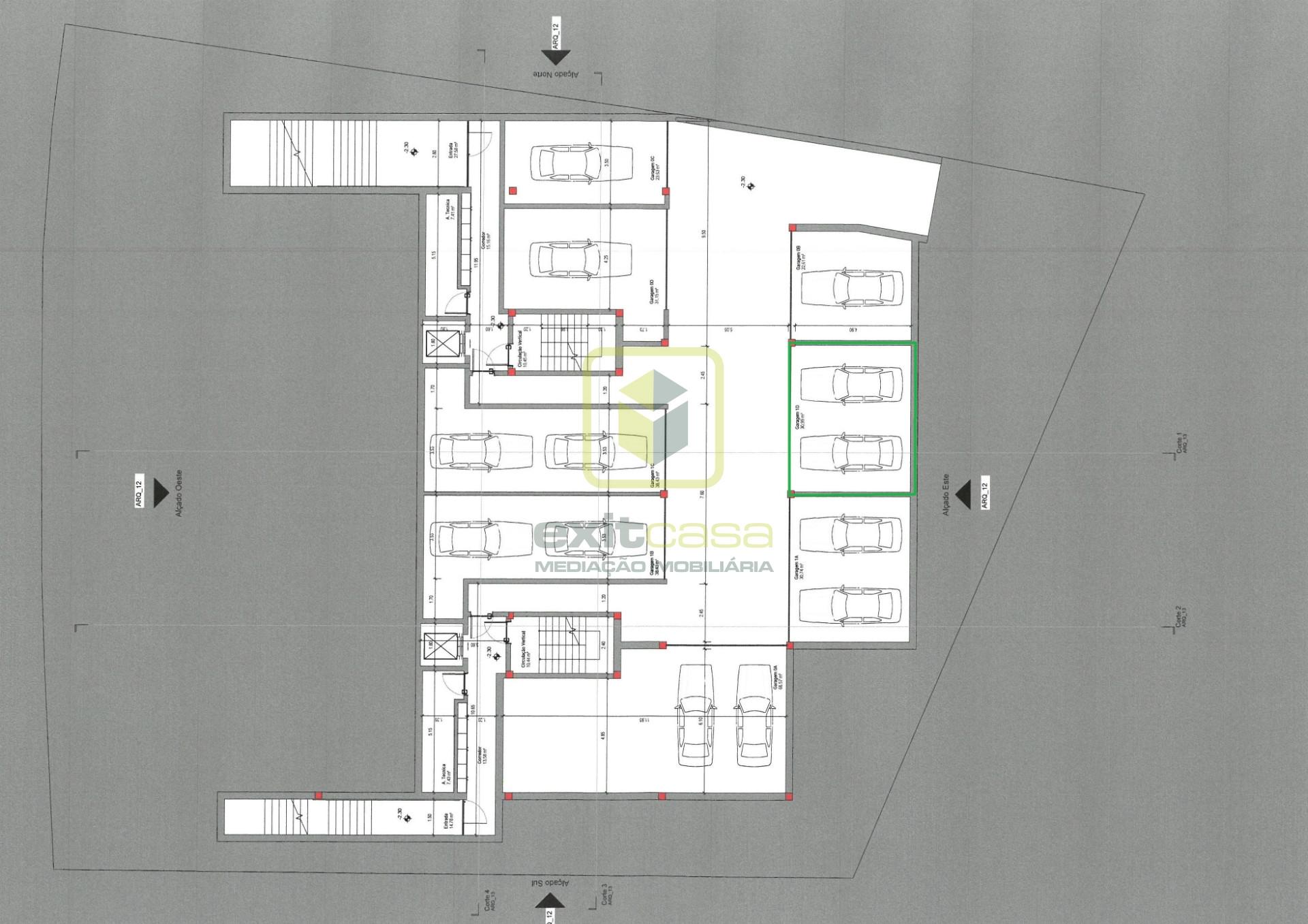
- Garagem Fechada.

Características da zona:
Freguesia situada na sede do concelho de Ílhavo, localizada num dos braços da Ria de Aveiro, a 14m de altitude. Ao longo dos séculos foi por excelência berço dos marinheiros entregues tanto à navegação mercantil como à pesca. É uma cidade onde tudo se pode encontrar, e onde as gentes locais têm vindo a intensificar a sua dedicação às seguintes atividades económicas: indústria, cerâmica, agricultura e pesca.
Na sua área envolvente é possível encontrar uma oferta diversificada de restauração, bem como de escolas (Escola Secundária Dr. João Carlos Celestino Gomes e Escola EB 2 e 3 José Ferreira Pinto Basto), Centro de Saúde de Ílhavo, Hospital de Cuidados Continuados, espaços desportivos (Pavilhão Municipal Capitão Adriano Nordeste, Piscinas Municipais e de Vale de Ílhavo), zonas comerciais (Mercado Municipal de Ílhavo, Pingo Doce e Continente), espaços de lazer (Casa da Cultura de Ílhavo, Museu Marítimo de Ílhavo, Museu da Vista Alegre, Parque da Murteira) e transportes públicos. Fica a 15min das Praias da Barra e Costa Nova e a 5min o Centro da Cidade de Aveiro.

O imóvel encontra-se a 10km da praia e 88km do aeroporto.

Descubra a sua próxima casa connosco: Não perca esta oportunidade!

Não deixe para amanhã a visita que pode marcar ainda hoje neste apartamento T3 Duplex!

Ref 5265-05 - Veja mais imóveis em exitcasa. pt

Tratamos da aprovação do seu crédito!
Intermediário de crédito vinculado nº 0002066 licenciado pelo Banco de Portugal.

Obs.: Fotos meramente ilustrativas.

Este anúncio foi publicado por rotina informática, todos os dados e informações carecem de confirmação junto da Exitcasa.
 

Características Gerais

  • Ar Condicionado
  • Cozinha Equipada
  • Garagem
  • Estacionamento
  • Terraço
  • Guarda Roupa
  • Varandas
  • Duplex

Galeria do imóvel

Apartamento T3 Duplex
Apartamento T3 Duplex
Apartamento T3 Duplex
Apartamento T3 Duplex
Apartamento T3 Duplex
Apartamento T3 Duplex

Localização do imóvel

Aveiro, Ílhavo, Ílhavo (São Salvador)

Referência do anúncio: 5265-05. Última atualização: 26 agosto 2025.

Relatório de preços praticados nos últimos 8 meses

Aveiro, Ílhavo, Ílhavo (São Salvador)

Simule um Crédito Habitação

Os dados apresentados são meramente indicativos. Condições gerais
Seguir
Partilhar
Exitcasa - Aveiro
AMI 5752
234 ...
Chamada para a rede fixa nacional
Mostrar número
Nome
Email
Contacto
Formato inválido
Agende uma visita
Referência do anúncio: 5265-05.
Última atualização: 26 agosto 2025.
Contactar
Veja também
Anúncios na mesma zona
Apartamento T3 DUPLEX Venda em São Bernardo,Aveiro
Aveiro, Aveiro, São Bernardo
500 000 €
3
1
Apartamento t3 duplex de luxo
Aveiro, Ílhavo, Ílhavo (São Salvador)
390 000 €
3
2
1
Apartamento t3 com 2 suítes
Aveiro, Aveiro, Glória e Vera Cruz
570 000 €
3
3
1
T 3 vista de mar e ria na praia da costa nova
Aveiro, Ílhavo, Gafanha da Encarnação
985 000 €
3
3
1
Apartamento T3 Venda em Sobrado e Bairros,Castelo de Paiva
Aveiro, Castelo de Paiva, Sobrado e Bairros
237 000 €
3
3
Apartamento t2 nas barrocas
Aveiro, Aveiro, Glória e Vera Cruz
430 000 €
2
2
1
Apartamento t2 nas barrocas
Aveiro, Aveiro, Glória e Vera Cruz
450 000 €
2
2
1
Apartamento t2 com suite, varanda e 2 garagens – barrocas, aveiro
Aveiro, Aveiro, Glória e Vera Cruz
460 000 €
2
2
1
T4 com Garagem Privada e Vista no Coração da Feira — Espaço e Localização Privilegiada
Aveiro, Santa Maria da Feira, Santa Maria da Feira, Travanca, Sanfins e Espargo
390 000 €
4
4
Apartamento t3 duplex de luxo
Aveiro, Ílhavo, Ílhavo (São Salvador)
380 000 €
3
2
1
Partilha o imóvel: Apartamento T3 Duplex
Partilha este imóvel nas tuas redes sociais ou envia diretamente para o email dos teus amigos.
Partilhar por email
Adicione uma nota ao imóvel!
Só você é que vê as notas que adiciona. Os imóveis com notas ficam nos favoritos para os poder consultar mais tarde.
Excluíste o anúncio:
Apartamento T3 Duplex