Pesquisar perto de mim
A aguardar a sua pesquisa
Voltar
Apartamento T3 com vistas maravilhosas em Mexilhoeira grande
Apartamento T3 com vistas maravilhosas em Mexilhoeira grande
Apartamento T3 com vistas maravilhosas em Mexilhoeira grande
Apartamento T3 com vistas maravilhosas em Mexilhoeira grande
Ver galeria (6)
Ver galeria (6)
Seguir
Partilhar

Apartamento T3 com vistas maravilhosas em Mexilhoeira grande

Faro, Portimão, Mexilhoeira Grande Ver no mapa
500 000 €
3 Quartos
3 WC's
111m2
Área Útil: 111m2
Área Bruta: 111m2
Certificação Energética: A
Estado: Novo

Descrição do anúncio

Este novo e exclusivo edifício residencial, composto por apenas 6 espaçosos apartamentos, ergue-se na tranquila Mexilhoeira Grande, entre Lagos e Portimão.
A sua localização privilegiada oferece vistas panorâmicas sobre a paisagem algarvia e fácil acesso às praias, campos de golfe e todas as comodidades do quotidiano.
Detalhes dos Apartamentos
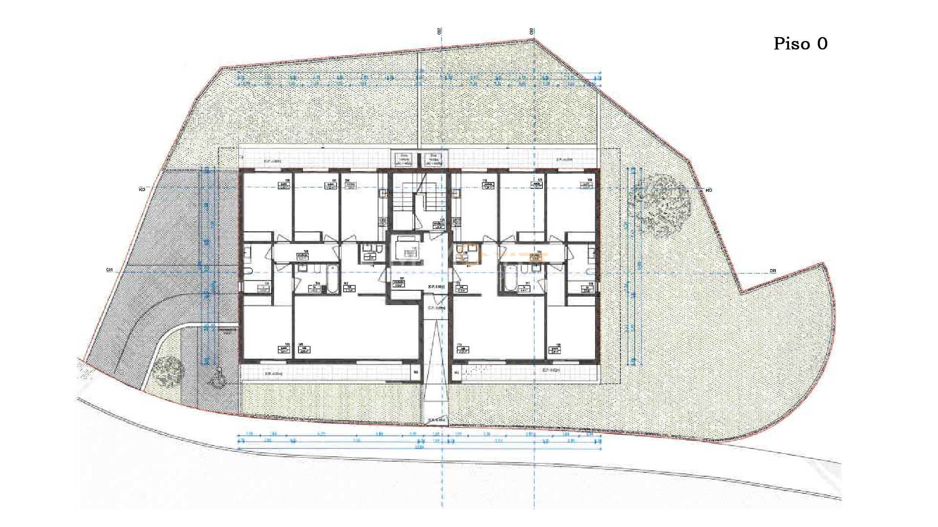
Tipologia: T3 com 111 m²
Localização: Rés do chão (dois apartamentos por piso)
Preços:
R/C Esq. –  Garagem em Box (2 lugares): €510.000
R/C Dto. – Garagem em Box (1 lugar): €500.000
Composição: Hall de entrada, ampla sala de estar com cozinha moderna totalmente equipada, despensa e três suites, todas com casas de banho privadas e acesso a varanda.Características
Construção segundo os mais recentes padrões de eficiência e conforto
Vidros duplos e isolamento térmico e acústico
Ar condicionado em todas as divisões
Estores elétricos e portas de segurança
Garagem privada com portão elétrico
Elevador e internet de fibra ótica
Jardim Privativo Meio Envolvente e Pontos Fortes
Localização estratégica e tranquila, entre duas das vilas mais emblemáticas do Algarve
A curta distância de praias, campos de golfe, restaurantes e supermercados
Ambiente natural com vistas abertas e luminosidade excecional
Ideal para residência permanente ou investimento seguroApartamentos de alta qualidade, com design contemporâneo e acabamentos de excelência — perfeitos para quem procura conforto, tranquilidade e um estilo de vida algarvio.
Agende a sua visita e descubra este novo projeto. Vale a pena conhecer.

Características Gerais

  • Ar Condicionado
  • Garagem
  • Piscina
  • Terraço
  • Guarda Roupa
  • Varandas

Galeria do imóvel

Apartamento T3 com vistas maravilhosas em Mexilhoeira grande
Apartamento T3 com vistas maravilhosas em Mexilhoeira grande
Apartamento T3 com vistas maravilhosas em Mexilhoeira grande
Apartamento T3 com vistas maravilhosas em Mexilhoeira grande
Apartamento T3 com vistas maravilhosas em Mexilhoeira grande
Apartamento T3 com vistas maravilhosas em Mexilhoeira grande

Localização do imóvel

Faro, Portimão, Mexilhoeira Grande

Referência do anúncio: VA897. Última atualização: 03 fevereiro 2026.

Relatório de preços praticados nos últimos 8 meses

Faro, Portimão, Mexilhoeira Grande

Simule um Crédito Habitação

Os dados apresentados são meramente indicativos. Condições gerais
Seguir
Partilhar
Mimosa Holiday
AMI 9140
282 ...
Chamada para a rede fixa nacional
Mostrar número
Nome
Email
Contacto
Formato inválido
Agende uma visita
Referência do anúncio: VA897.
Última atualização: 03 fevereiro 2026.
Contactar
Veja também
Anúncios na mesma zona
Apartamento T1, em construção, em Vilamoura
Faro, Loulé, Quarteira
605 000 €
1
2
1
Apartamento T2 Venda em Armação de Pêra,Silves
Faro, Silves, Armação de Pêra
360 000 €
2
2
1
Apartamento T2+2 Venda em Faro (Sé e São Pedro),Faro
Faro, Faro, Faro (Sé e São Pedro)
550 000 €
4
4
1
Penthouse T4+1 com Terraço Panorâmico e dois estacionamentos
Faro, Faro, Conceição e Estoi
580 000 €
4
2
1
Alojamento local inserido em edifício histórico frente rio
Faro, Vila Real de Santo António, Vila Real de Santo António
875 000 €
8
6
Terreno com vistas magníficas sobre o campo e o mar.
Faro, Loulé, Loulé (São Sebastião)
130 000 €
2
Apartamento T1 na Urbanização das Amendoeiras
Faro, Vila Real de Santo António, Vila Real de Santo António
180 000 €
1
1
Apartamento t3 duplex em condomínio privado com piscina e jardim - montechoro
Faro, Albufeira, Albufeira e Olhos de Água
350 000 €
3
2
Apartamento T1 com garagem e piscina para venda em Cabanas de Tavira
Faro, Tavira, Conceição e Cabanas de Tavira
365 000 €
1
1
Apartamento T2, em construção, em Vilamoura
Faro, Loulé, Quarteira
955 000 €
2
3
1
Partilha o imóvel: Apartamento T3 com vistas maravilhosas em Mexilhoeira grande
Partilha este imóvel nas tuas redes sociais ou envia diretamente para o email dos teus amigos.
Partilhar por email
Adicione uma nota ao imóvel!
Só você é que vê as notas que adiciona. Os imóveis com notas ficam nos favoritos para os poder consultar mais tarde.
Excluíste o anúncio:
Apartamento T3 com vistas maravilhosas em Mexilhoeira grande