Pesquisar perto de mim
A aguardar a sua pesquisa
Voltar
Apartamento T3 com terraço, Hospital Prelada
Apartamento T3 com terraço, Hospital Prelada
Apartamento T3 com terraço, Hospital Prelada
Apartamento T3 com terraço, Hospital Prelada
Ver galeria (20)
Ver galeria (20)
Seguir
Partilhar

Apartamento T3 com terraço, Hospital Prelada

Porto, Porto, Paranhos Ver no mapa
547 750 €
3 Quartos
3 WC's
109m2
Área Útil: 109m2
Área Bruta: 124m2
Certificação Energética: A+

Descrição do anúncio

Localização excelente perto do Hospital da Prelada, S Dinis, Paranhos.
Em Paranhos situa-se o maior polo universitário do Porto, incluindo as universidades mais prestigiadas da cidade.
O empreendimento irá estar localizado na rua de S. Dinis, zona de Paranhos e oferece excelentes acessos ao centro do Porto e aos principais serviços empresariais, educação, saúde e entretenimento.

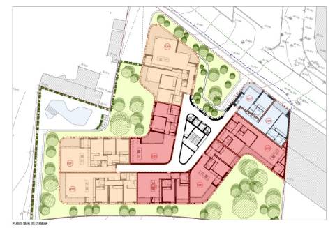
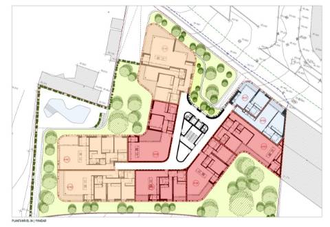
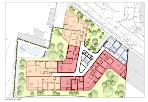
O edificio foi projetado para ter o máximo de proveito do ar livre e das zonas verdes aos seus moradores.

No seu jardim privativo é possível lazer caminhadas e disfrutar de momentos com os animais de estimação e/ou filhos.

Serão 41 modernos apartamentos tipologias T1, T2 e T3, algumas unidades com varandas, terraços e jardins privativos.

Árvores, caminhos pedestres, escolas, serviços de saúde, transportes, se tudo isso estiver perto de sua casa, o seu tempo adquire mais valor. Consome menos recursos em viagens, respira um ar mais puro, aprecia a paisagem e investe as suas energias naquilo que realmente importa.

Estas são as razões para Boss Gardens estar inserido em Paranhos, uma das melhores zonas residenciais do Porto. A excelente localização e história combinam-se de forma perfeita para uma vida urbana e de lazer. Numa envolvência excecional, tanto a nível de serviços, infraestruturas, como pela facilidade de comunicação com o interior e exterior da cidade.

Um investimento aprovado pela própria procura natural, pela sua possibilidade como habitação própria ou para arrendamentos, pois Paranhos integra o maior Polo Universitário do Porto, que inclui das universidades e faculdades mais prestigiadas da cidade.

Apartamento constituido por:
- 3 Quartos um deles suite;
- Cozinha equipada com electrodomésticos Bosch + Lavandaria;
- Sala;
- Casa de banho completa;
- Casa de Banho de Serviço;
- Varanda
-2 Lugares de Garagem;
- Sala de convivio no predio
- Jardim e parque infantil
- Armarios embutidos nos quartos e hall
- Carpintaria interior lacada a branco
- Porta de segurança com fechadura eletronica
- Estores exteriores de aluminio electricos
- Estores interiores de tela electricos

Eletrodomésticos Bosch integrados: maquina lavar louça, forno, placa, micro-ondas, frigorifico.
Sistema com bomba de calor para Águas Quentes Sanitárias (AQS).
Sistema multi-split para climatização (aquecimento/arrefecimento).
Toalheiro electricos
Instalações elétricas
Videoporteiro.
Inst. Tv TDT.
Tomadas de Tv e telf. (sala, quartos e cozinha)
Domótica básica: Iluminação, aquecimento/frio, estores.
Garagens preparadas para colocação de carregamentos de carros eléctricos.
Elevadores
Portas automáticas.
Regulação de velocidade.

Condições de pagamento:
10% CPCV (5% assinatura + 5% no início obra)
40% DURANTE A OBRA EM REFORÇOS
REFORÇO 1 - 10% conclusão da estrutura
REFORÇO 1 - 10% conclusão das alvenarias
REFORÇO 1 - 10% na conclusão das caixilharias
REFORÇO 1 - 10% na conclusão das carpintarias
50% NA ESCRITURA

Garagens:
Lugar de garagem T3 - SIM (2 lugares)
Lugar de garagem T2 - SIM (1 lugar)
Lugar de garagem T1 - SIM (1 lugar)

Previsão de início de construção - Primeiro trimestre de 2024

Previsão de conclusão - 30 a 36 meses

Galeria do imóvel

Apartamento T3 com terraço, Hospital Prelada
Apartamento T3 com terraço, Hospital Prelada
Apartamento T3 com terraço, Hospital Prelada
Apartamento T3 com terraço, Hospital Prelada
Apartamento T3 com terraço, Hospital Prelada
Apartamento T3 com terraço, Hospital Prelada

Localização do imóvel

Porto, Porto, Paranhos

Referência do anúncio: APA_10492. Última atualização: 16 agosto 2025.

Relatório de preços praticados nos últimos 8 meses

Porto, Porto, Paranhos

Simule um Crédito Habitação

Os dados apresentados são meramente indicativos. Condições gerais
Seguir
Partilhar
Propripopular - Mediacao Imobiliaria, Unip. Lda
AMI 9220
Nome
Email
Contacto
Formato inválido
Agende uma visita
Referência do anúncio: APA_10492.
Última atualização: 16 agosto 2025.
Contactar
Veja também
Anúncios na mesma zona
Apartamento T3 com Varanda no Empreendimento Avenida Premium - Vila Nova de Gaia
Porto, Vila Nova de Gaia, Mafamude e Vilar do Paraíso
446 280 €
3
3
1
Apartamento T3 Venda em São Félix da Marinha,Vila Nova de Gaia
Porto, Vila Nova de Gaia, São Félix da Marinha
620 000 €
3
3
1
Apartamento T3 com Varanda no Empreendimento Avenida Premium - Vila Nova de Gaia
Porto, Vila Nova de Gaia, Mafamude e Vilar do Paraíso
452 517 €
3
3
1
Apartamento T3 com Terraço 37m2 no Empreendimento Avenida Premium - Vila Nova de Gaia
Porto, Vila Nova de Gaia, Mafamude e Vilar do Paraíso
531 240 €
3
3
1
Apartamento T2 Venda em São Félix da Marinha,Vila Nova de Gaia
Porto, Vila Nova de Gaia, São Félix da Marinha
465 000 €
2
3
1
Apartamento T3+1 com Terraço 47m2 no Empreendimento Avenida Premium - Vila Nova de Gaia
Porto, Vila Nova de Gaia, Mafamude e Vilar do Paraíso
616 453 €
3
3
1
Apartamento T3 com Varanda no Empreendimento Avenida Premium - Vila Nova de Gaia
Porto, Vila Nova de Gaia, Mafamude e Vilar do Paraíso
465 440 €
3
3
1
Apartamento T3 com Terraço 95.8m2 no Empreendimento Avenida Premium - Vila Nova de Gaia
Porto, Vila Nova de Gaia, Mafamude e Vilar do Paraíso
526 780 €
3
3
1
Apartamento T3 com Varanda no Empreendimento Avenida Premium - Vila Nova de Gaia
Porto, Vila Nova de Gaia, Mafamude e Vilar do Paraíso
524 188 €
3
3
1
Apartamento T3 Venda em São Félix da Marinha,Vila Nova de Gaia
Porto, Vila Nova de Gaia, São Félix da Marinha
580 000 €
3
3
1
Partilha o imóvel: Apartamento T3 com terraço, Hospital Prelada
Partilha este imóvel nas tuas redes sociais ou envia diretamente para o email dos teus amigos.
Partilhar por email
Adicione uma nota ao imóvel!
Só você é que vê as notas que adiciona. Os imóveis com notas ficam nos favoritos para os poder consultar mais tarde.
Excluíste o anúncio:
Apartamento T3 com terraço, Hospital Prelada