Pesquisar perto de mim
A aguardar a sua pesquisa
Voltar
Apartamento T3 com Garagem em Paranhos
Apartamento T3 com Garagem em Paranhos
Apartamento T3 com Garagem em Paranhos
Apartamento T3 com Garagem em Paranhos
Ver galeria (15)
Ver galeria (15)
Seguir
Partilhar

Apartamento T3 com Garagem em Paranhos

Porto, Porto, Paranhos Ver no mapa
524 000 €
3 Quartos
3 WC's
109m2
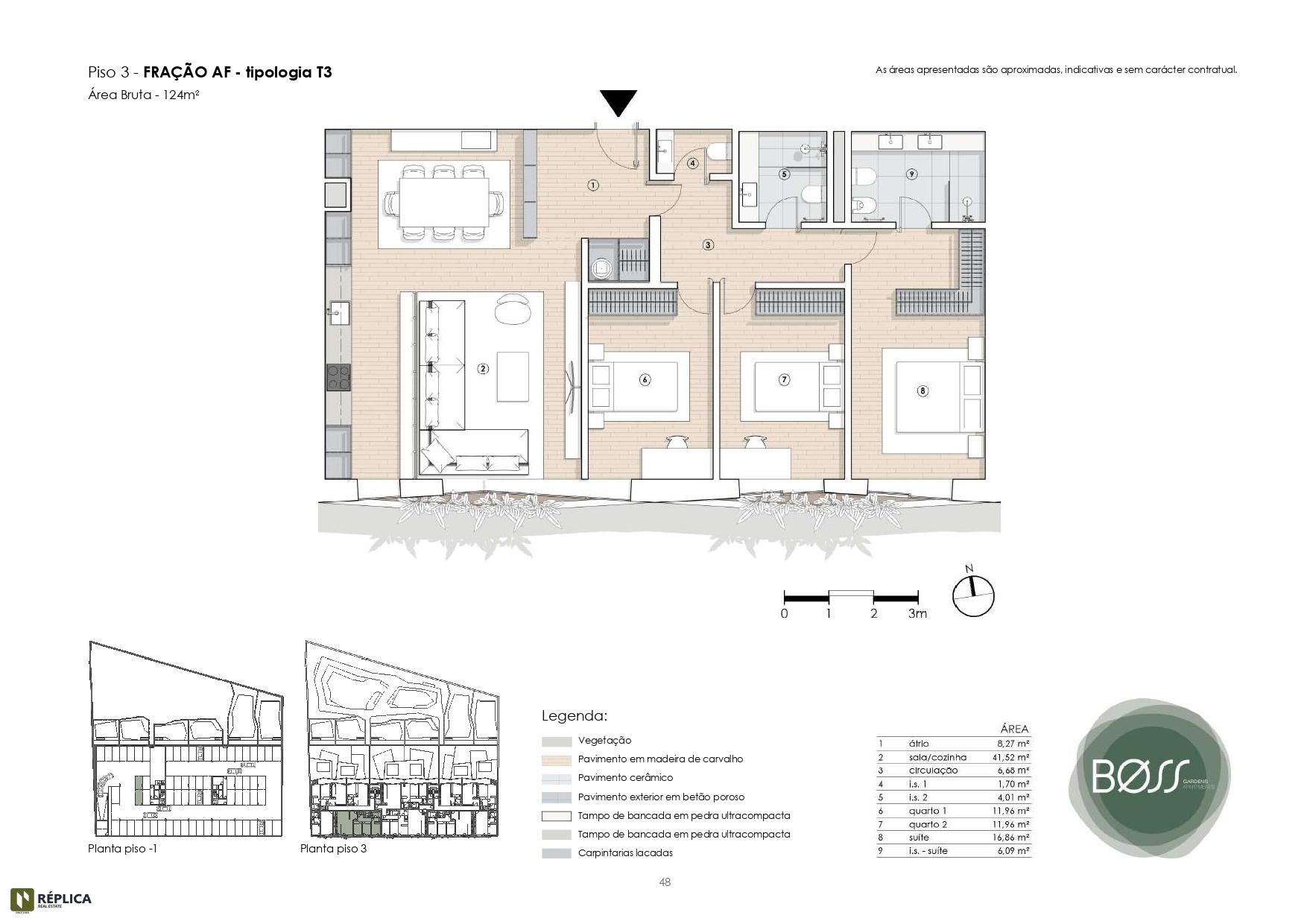
Área Útil: 109m2
Área Bruta: 124m2
Ano de Construção: 2024
Certificação Energética: N/A
Estado: Em Construção

Descrição do anúncio

Apartamento T3 com Garagem em Paranhos

Apartamento inserido num novo empreendimento localizado em Paranhos (Porto), concebido pelo gabinete de Arquitetura SOUL, em que são marcantes as linhas de vanguarda/inovação bem como de tradição.
Com efeito, o empreendimento presta homenagem ao património artístico e cultural do Porto nomeadamente ao "Azulejo" como principal elemento decorativo das fachadas dos edifícios.
A aplicação do "azulejo de padrão" cria um efeito geométrico tridimensional que serve de inspiração para projetar a fachada do Boss Gardens.

O empreendimento está localizado na zona de Paranhos, uma das melhores zonas residenciais do Porto, estando próximo de:
- Espaços de comércio e ampla oferta de serviços
- Instituições de ensino superior de referência (Faculdades de Economia, Engenharia, Medicina, Desporto etc)
- Instituições de cuidados de saúde (Hospital de São João)
- Acesso às principais artérias rodoviárias da cidade do Porto (VCI, Estrada da Circunvalação e nós de acesso à auto estrada A20, A1, A3, A4, A28)
- Diversos transportes públicos (STCP e metro de Salgueiros).
- Espaços de lazer como a Quinta do Covelo a 5 min.
?
O empreendimento é constituído por 41 apartamentos (tipologias T1, T2 e T3), alguns dos quais com terraços e jardins privativos, contemplando para os residentes zonas comuns:
- espaços ao ar livre, jardins e pátios ingleses
- parque infantil

Este apartamento é constituído por:- hall de entrada
- sala comum e cozinha em open space
- 1 WC Serviço 
- 2 Suite
- 1 Quarto
- 2 lugares de garagem

Destaques acabamentos:
- Sistema com bomba de calor para Águas Quentes Sanitárias (AQS)
- Sistema multi-split para climatização (aquecimento/arrefecimento)
- Domótica: iluminação, aquecimento/arrefecimento e estores
- Instalação elétrica da garagem adequada ao carregamento de veículos elétricos
- Elevadores com capacidade para 8 pessoas
- Eletrodomésticos da “Bosch” ou equivalentes: máquina lava-louça, forno, placa de indução, micro-ondas e frigorifico

Contacte-nos para obter a respetiva brochura e mapa de acabamentos.
Obs: A obra terá início no 1º trimestre de 2024 com duração de 3 anos.
Imagens Ilustrativas

Marque já a sua visita junto de um dos nossos consultores imobiliários.

RÉPLICA, uma referência imobiliária.
Com 35 anos de atuação no mercado nacional, aplicamos as boas práticas e metodologias que privilegiam Proprietário e Comprador, proporcionando os melhores resultados para todos os intervenientes.
Trabalhamos com um posicionamento de rigor na prestação de serviços imobiliários, apoiando a nossa atividade na experiência da nossa equipa de profissionais e em soluções eficazes de publicidade e marketing.

Garantimos a máxima discrição e serviço de excelência.
 

Características Gerais

  • Ar Condicionado
  • Cozinha Equipada
  • Garagem
  • Jardim
  • Estacionamento
  • Terraço
  • Guarda Roupa

Galeria do imóvel

Apartamento T3 com Garagem em Paranhos
Apartamento T3 com Garagem em Paranhos
Apartamento T3 com Garagem em Paranhos
Apartamento T3 com Garagem em Paranhos
Apartamento T3 com Garagem em Paranhos
Apartamento T3 com Garagem em Paranhos

Localização do imóvel

Porto, Porto, Paranhos

Referência do anúncio: RZ0245-AF. Última atualização: 27 janeiro 2025.

Relatório de preços praticados nos últimos 8 meses

Porto, Porto, Paranhos

Simule um Crédito Habitação

Os dados apresentados são meramente indicativos. Condições gerais
Seguir
Partilhar
Habimaison Med. Imobiliária Unip., Lda.
AMI 10411
915 ...
Chamada para a rede fixa nacional
Mostrar número
Nome
Email
Contacto
Formato inválido
Agende uma visita
Referência do anúncio: RZ0245-AF.
Última atualização: 27 janeiro 2025.
Contactar
Veja também
Anúncios na mesma zona
Apartamento T1 Venda em São Mamede de Infesta e Senhora da Hora,Matosinhos
Porto, Matosinhos, São Mamede de Infesta e Senhora da Hora
175 900 €
1
2
Apartamento T3 Venda em Canidelo,Vila Nova de Gaia
Porto, Vila Nova de Gaia, Canidelo
525 000 €
3
1
Penthouse Duplex de Exceção - Frente ao Mar - Praia de Salgueiros, Canidelo
Porto, Vila Nova de Gaia, Madalena
1 570 000 €
5
5
Apartamento T2 - Empreendimento Bloco de apartamentos OCTE
Porto, Matosinhos, Matosinhos e Leça da Palmeira
710 000 €
2
2
Apartamento T3 com garagem
Porto, Porto, Cedofeita, Santo Ildefonso, Sé, Miragaia, São Nicolau e Vitória
530 450 €
3
3
Apartamento T3 Venda em Canidelo,Vila Nova de Gaia
Porto, Vila Nova de Gaia, Canidelo
550 000 €
3
1
Apartamento T3+1 Venda em Santa Marinha e São Pedro da Afurada,Vila Nova de Gaia
Porto, Vila Nova de Gaia, Santa Marinha e São Pedro da Afurada
616 453 €
3
3
1
Apartamento T1 Venda em São Félix da Marinha,Vila Nova de Gaia
Porto, Vila Nova de Gaia, São Félix da Marinha
295 000 €
1
1
1
Apartamento T3 Venda em Canidelo,Vila Nova de Gaia
Porto, Vila Nova de Gaia, Canidelo
515 000 €
3
1
T2 Novo c/ Varanda e L. Garagem na Areosa
Porto, Gondomar, Rio Tinto
219 900 €
2
Partilha o imóvel: Apartamento T3 com Garagem em Paranhos
Partilha este imóvel nas tuas redes sociais ou envia diretamente para o email dos teus amigos.
Partilhar por email
Adicione uma nota ao imóvel!
Só você é que vê as notas que adiciona. Os imóveis com notas ficam nos favoritos para os poder consultar mais tarde.
Excluíste o anúncio:
Apartamento T3 com Garagem em Paranhos