Pesquisar perto de mim
A aguardar a sua pesquisa
Voltar
Apartamento T2 Venda em Repeses e São Salvador,Viseu
Apartamento T2 Venda em Repeses e São Salvador,Viseu
Apartamento T2 Venda em Repeses e São Salvador,Viseu
Apartamento T2 Venda em Repeses e São Salvador,Viseu
Ver galeria (25)
Ver galeria (25)
Seguir
Partilhar

Apartamento T2 Venda em Repeses e São Salvador,Viseu

Viseu, Viseu, Repeses e São Salvador Ver no mapa
245 000 €
2 Quartos
2 WC's
107m2
Área Útil: 107m2
Área Bruta: 163m2
Ano de Construção: 2024
Certificação Energética: A+
Estado: Novo

Descrição do anúncio

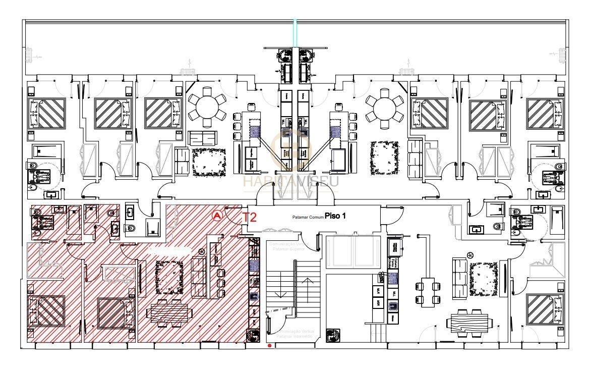
Apartamento T2 NOVO, para venda em Viseu. Localiza-se a cerca de 3min do centro, numa zona residencial, tranquila e de prestigio. Com um meio envolvente muito agradável, com espaços verdes, jardins, parque infantil, é uma das zonas mais escolhidas por famílias para habitação. Este lindíssimo e luxuoso apartamento é constituído por: Hall de entrada com armário embutido, cozinha e sala "OpenSpace", hall dos quartos, WC de serviço e dois quartos, com roupeiros embutidos dos quais um é suíte com Wc privativo. Conta ainda com uma arrecadação com 5,5m2 e garagem com 16,5m2. Cozinha equipada com eletrodomésticos BOSCH, à exceção de máquinas de lavar e secar roupa. Aquecimento e arrefecimento por piso radiante (bomba de calor Ariston de alto rendimento, com ligação "Wifi" e controlo de temperatura individual para cada compartimento, (Classe energética A+), inclui também a pré-instalação de ar condicionado. O Sistema de aquecimento de águas sanitárias alimentado por outra bomba de calor Ariston de alto rendimento, também com ligação Wifi. Caixilharia em alumínio bicolor com sistema "Oscilo-batente", série DOMO 72 RT (Rotura Térmica), com vidro duplo e caixa de ar preenchida 90% com gás Argon (Classe energética A+). Os estores elétricos exteriores são em alumínio térmico, com topos anti-deslizantes que impedem o desalinhamento das réguas, que é habitual durante limpezas ou até com o próprio uso, libertando-se manutenções futuras e permitindo uma fluidez fantástica na sua abertura e fecho. Aspiração central completa da SACH. Carpintarias interiores (portas, roupeiros e cozinhas) em madeira lacada, bancadas em Corian (material sólido, não poroso composto de resina acrílica e minerais naturais incluindo alumínio, é higiénico e resistente ao impacto). Tetos falsos em gesso cartonado hidrófugo, cobrindo a totalidade do fogo e preenchidos na sua totalidade com lã de rocha (isolamento térmico-acústico). Porta de entrada blindada de alta segurança, da Dierre. Pavimentos em cerâmica retificada e em flutuante vinílico sobre manta ambos apropriados para piso radiante. Revestimento em cerâmica retificada. Móveis “Banhoazis” e louças sanitárias suspensas "Sanitana", com duches embutidos e torneira “IMEX” encastrada com corpo em latão, tal como as restantes. Montagem de “Kit higiénico“ onde não existem bidés. Garagem e Arrecadação, sendo que a garagem “Box” é encerrada com portão automatizado, preparada para aplicação de equipamentos para carregamento de veículos elétricos e fica com possibilidade de ser servida por internet vinda do apartamento. Entre em contato para mais informações ou deixe o seu contacto no formulário desta página e marque uma visita a este imóvel sem qualquer compromisso!
 

Galeria do imóvel

Apartamento T2 Venda em Repeses e São Salvador,Viseu
Apartamento T2 Venda em Repeses e São Salvador,Viseu
Apartamento T2 Venda em Repeses e São Salvador,Viseu
Apartamento T2 Venda em Repeses e São Salvador,Viseu
Apartamento T2 Venda em Repeses e São Salvador,Viseu
Apartamento T2 Venda em Repeses e São Salvador,Viseu

Localização do imóvel

Viseu, Viseu, Repeses e São Salvador

Referência do anúncio: 3180-A. Última atualização: 27 dezembro 2025.

Relatório de preços praticados nos últimos 8 meses

Viseu, Viseu, Repeses e São Salvador

Simule um Crédito Habitação

Os dados apresentados são meramente indicativos. Condições gerais
Seguir
Partilhar
ATREVIDALTURA - MEDIAÇÃO IMOBILIÁRIA, LDA
AMI 14435
232 ...
Chamada para a rede fixa nacional
Mostrar número
Nome
Email
Contacto
Formato inválido
Agende uma visita
Referência do anúncio: 3180-A.
Última atualização: 27 dezembro 2025.
Contactar
Veja também
Anúncios na mesma zona
Apartamento T6 Venda em Viseu,Viseu
Viseu, Viseu, Viseu
105 000 €
6
1
Apartamento T2 no Centro de Mortágua – 130.000 €
Viseu, Mortágua, Mortágua, Vale de Remígio, Cortegaça e Almaça
130 000 €
2
1
Apartamento T3 com lugar de garagem no Sátão
Viseu, Sátão, Sátão
160 000 €
3
1
1
Apartamento T2 duplex em construção
Viseu, Viseu, Rio de Loba
280 000 €
2
2
1
Apartamento T2 em construção - Viseu
Viseu, Viseu, Rio de Loba
200 000 €
2
2
1
Apartamento T2 em construção - Viseu
Viseu, Viseu, Rio de Loba
200 000 €
2
2
1
Apartamento T2 em construção - Viseu
Viseu, Viseu, Rio de Loba
220 000 €
2
1
1
Apartamento T2, Novo, com varanda e garagem dupla
Viseu, Lamego, Lamego (Almacave e Sé)
219 900 €
2
2
1
Apartamento T2 novo em construção Viseu
Viseu, Viseu, Rio de Loba
235 000 €
2
2
1
Apartamento T3 DUPLEX Venda em Viseu,Viseu
Viseu, Viseu, Viseu
675 000 €
5
2
Partilha o imóvel: Apartamento T2 Venda em Repeses e São Salvador,Viseu
Partilha este imóvel nas tuas redes sociais ou envia diretamente para o email dos teus amigos.
Partilhar por email
Adicione uma nota ao imóvel!
Só você é que vê as notas que adiciona. Os imóveis com notas ficam nos favoritos para os poder consultar mais tarde.
Excluíste o anúncio:
Apartamento T2 Venda em Repeses e São Salvador,Viseu