Pesquisar perto de mim
A aguardar a sua pesquisa
Voltar
Apartamento T2 Venda em Ramalde,Porto
Apartamento T2 Venda em Ramalde,Porto
Apartamento T2 Venda em Ramalde,Porto
Apartamento T2 Venda em Ramalde,Porto
Ver galeria (17)
Ver galeria (17)
Seguir
Partilhar

Apartamento T2 Venda em Ramalde,Porto

Porto, Porto, Ramalde Ver no mapa
378 000 €
2 Quartos
2 WC's
96m2
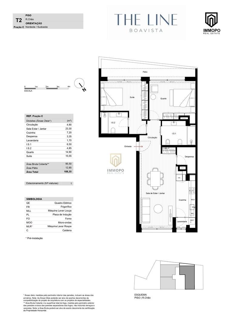
Área Útil: 96m2
Área Bruta: 108m2
Certificação Energética: B
Estado: Em Construção

Descrição do anúncio

THE LINE - BOAVISTA
Beneficiando de uma localização central - a um passo da estação de metro de Francos e a 10 minutos a pé da Casa da Música - o The Line oferece, aos seus residentes, a possibilidade de habitar com o maior conforto e o mais elevado estilo de vida, conjugados com as vantagens de viver em plena cidade do Porto.
 O The Line é o novo empreendimento na zona da Boavista, constituído por edifício com 4 pisos, organizado em 18 apartamentos de tipologias T1 e T2, todos eles com varanda ou terraço e lugar de estacionamento ou box. As áreas generosas e versáteis, os espaços interiores amplos e inundados de luz natural, as soluções modernas e funcionais, os acabamentos diferenciadores e da mais alta qualidade, culminam num resultado de excelência.
O projeto de construção do edifício vai dar lugar à criação de um novo arruamento, de uso exclusivo para acesso ao empreendimento, formando um espaço urbano devidamente qualificado e em harmonioso diálogo com a linha de metro e com a sua envolvente. O conforto e a comodidade de ter o metro à porta de casa conjugam-se com uma localização privilegiada, junto aos principais nós de acesso rodoviários a qualquer zona da cidade do Porto e a qualquer ponto do país.

The Line - Boavista. Junto à linha de metro, em linha consigo! APARTAMENTO T2 - FRAÇÃO AApartamento funcional e harmonioso, com 108.40m2 e orientado a nordeste/sudoeste, inteligentemente organizado para oferecer divisões espaçosas, generosas em soluções de organização e repletas de luminosidade e conforto. Apresenta-se em hall de entrada, com acesso a amplo open space, com opção e flexibilidade para criação de sala comum e cozinha independente, totalmente equipada, mobilada e com zonas individualizadas de lavandaria e despensa, e WC completo de uso comum. Na zona privativa dispõe de suite, com WC completo, e quarto, ambos em contiguidade com terraço de 12m2.
Dispõe ainda de um lugar de estacionamento para viatura ligeira. Apresentando linhas harmoniosas e sóbrias, a imagem exterior do The Line é moderna, convidativa e traduz as premissas de qualidade e contemporaneidade tidas em conta na conceção dos apartamentos. Desde a elegância dos acabamentos, à versatilidade proporcionada pelas opções de organização das divisões, desde as cozinhas fechadas aos open-space criados com a ligação ao espaço da sala comum, o The Line oferece apartamentos perfeitamente adaptados à vida moderna e às preferências pessoais de funcionalidade .
Os espaços interiores são inundados por luz natural, assegurada pelos generosos envidraçados, e as vistas primam por ser amplas e desafogadas. Os apartamentos sobressaem, ainda, pelas salas e pelos quartos bem dimensionados e desenvolvidos em continuidade com as varandas e os terraços, pelas cozinhas totalmente equipadas, requintadas e intemporais, e pelos quartos espaçosos e pensados para o maior conforto. As casas de banho, escapando à monotonia do branco, assumem um conceito mais quente e um design irreverente.
Os dois T1, situados no piso térreo, para além de confortáveis e generosos em sua área interior, complementada pela contiguidade com os terraços exteriores. Os T2, na sua maior parte com áreas acima dos 100m2, beneficiam de varandas com agradáveis vistas sobre a envolvente. Todos os apartamentos incluem um lugar estacionamento automóvel, em garagem comum ou em box fechada. Estando em estreita proximidade com a zona da Boavista, nas suas imediações dispõe de uma oferta alargada de todo o tipo de espaços de comércio e serviços, tais como o NorteShopping, tido como o principal núcleo comercial do norte do país, centros empresariais (Porto Office Park e Zona Industrial do Porto), instituições de ensino públicas e privadas de referência (Escola Secundária Fontes Pereira de Melo, Escola Básica e Secundária Clara de Resende, Escola Básica de João de Deus), instituições de cuidados de saúde (Casa de Saúde da Boavista, Hospital da Prelada, Hospital dos Lusíadas e Hospital de Pedro Hispano), e das principais artérias rodoviárias da cidade do Porto, como a A28, a VCI e a Estrada da Circunvalação, que colocam as mais apreciadas zonas da cidade a menos de 10 min de carro (Parque da Cidade do Porto, Praias de Matosinhos e Foz, Campo Alegre, Foz do Douro) ou de metro (Aliados, Baixa, Ribeira). 

Características Gerais

  • Ar Condicionado
  • Cozinha Equipada
  • Garagem
  • Estacionamento
  • Terraço
  • Guarda Roupa
  • Varandas

Galeria do imóvel

Apartamento T2 Venda em Ramalde,Porto
Apartamento T2 Venda em Ramalde,Porto
Apartamento T2 Venda em Ramalde,Porto
Apartamento T2 Venda em Ramalde,Porto
Apartamento T2 Venda em Ramalde,Porto
Apartamento T2 Venda em Ramalde,Porto

Localização do imóvel

Porto, Porto, Ramalde

Referência do anúncio: IMM-1333-20-C. Última atualização: 03 julho 2025.

Relatório de preços praticados nos últimos 8 meses

Porto, Porto, Ramalde

Simule um Crédito Habitação

Os dados apresentados são meramente indicativos. Condições gerais
Seguir
Partilhar
IMMOPO - GESTÃO DE PROJETOS IMOBILIÁRIOS, UNIPESSOAL LDA
AMI 12792
+35 ...
Chamada para a rede fixa nacional
Mostrar número
Nome
Email
Contacto
Formato inválido
Agende uma visita
Referência do anúncio: IMM-1333-20-C.
Última atualização: 03 julho 2025.
Contactar
Veja também
Anúncios na mesma zona
Apartamento T2 com Varanda 12m2 Vistas Rio e Mar nos Jardins D`Arrábida em Vila Nova de Gaia
Porto, Vila Nova de Gaia, Canidelo
388 000 €
2
2
1
T3 duplex nos Pinhais da Foz com terraço e com vistas mar
Porto, Porto, Lordelo do Ouro e Massarelos
1 400 000 €
3
3
Apartamento T3 Venda em Aldoar, Foz do Douro e Nevogilde,Porto
Porto, Porto, Aldoar, Foz do Douro e Nevogilde
695 000 €
3
1
Apartamento t2 com garagem ao márquez
Porto, Porto, Cedofeita, Santo Ildefonso, Sé, Miragaia, São Nicolau e Vitória
440 395 €
2
2
1
Luxuoso apartamento T1 no centro do Porto
Porto, Porto, Cedofeita, Santo Ildefonso, Sé, Miragaia, São Nicolau e Vitória
405 000 €
1
1
Apartamento T2 Venda em Santa Marinha e São Pedro da Afurada,Vila Nova de Gaia
Porto, Vila Nova de Gaia, Santa Marinha e São Pedro da Afurada
358 000 €
2
2
1
T1 Novo com varanda 21.20m2 e lugar de garagem, em Vilar do Paraíso V.N. Gaia
Porto, Vila Nova de Gaia, Gulpilhares e Valadares
215 000 €
1
1
1
Apartamento T2+1 com varanda de 10.6 m2 na Prelada, Ramalde
Porto, Porto, Ramalde
434 000 €
2
2
APARTAMENTO T1 NOVO NO CENTRO DA PÓVOA DE VARZIM
Porto, Póvoa de Varzim, Póvoa de Varzim, Beiriz e Argivai
180 000 €
1
1
T2 com Garagem em Condomínio Exclusivo no Pinheiro Manso
Porto, Porto, Ramalde
480 000 €
2
2
Partilha o imóvel: Apartamento T2 Venda em Ramalde,Porto
Partilha este imóvel nas tuas redes sociais ou envia diretamente para o email dos teus amigos.
Partilhar por email
Adicione uma nota ao imóvel!
Só você é que vê as notas que adiciona. Os imóveis com notas ficam nos favoritos para os poder consultar mais tarde.
Excluíste o anúncio:
Apartamento T2 Venda em Ramalde,Porto