Pesquisar perto de mim
A aguardar a sua pesquisa
Voltar
Apartamento T2 Venda em Grijó e Sermonde,Vila Nova de Gaia
Apartamento T2 Venda em Grijó e Sermonde,Vila Nova de Gaia
Apartamento T2 Venda em Grijó e Sermonde,Vila Nova de Gaia
Apartamento T2 Venda em Grijó e Sermonde,Vila Nova de Gaia
Ver galeria (11)
Ver galeria (11)
Seguir
Partilhar

Apartamento T2 Venda em Grijó e Sermonde,Vila Nova de Gaia

Porto, Vila Nova de Gaia, Grijó e Sermonde Ver no mapa
320 000 €
2 Quartos
2 WC's
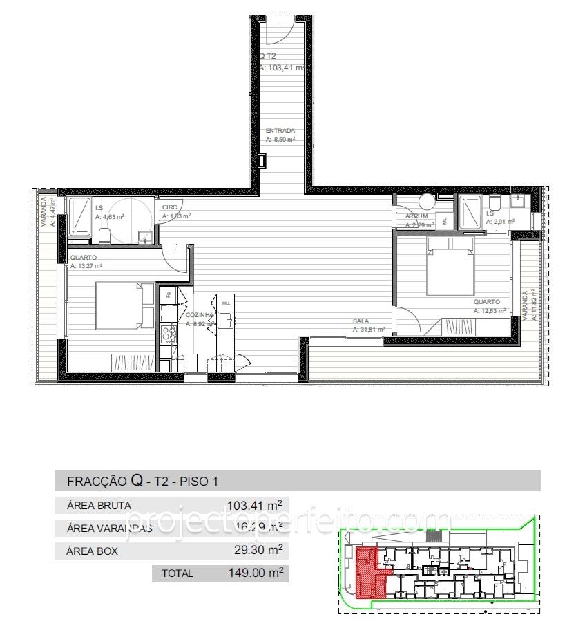
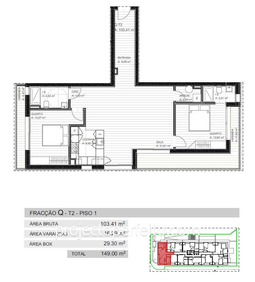
103m2
Área Útil: 103m2
Área Bruta: 149m2
Ano de Construção: 2027
Certificação Energética: A
Estado: Novo

Descrição do anúncio

Apartamento T2 novo, para venda na Feiteira, Grijó, Vila Nova de Gaia, com varanda de 16.29m2, garagem box para 2 carros, inserido num novo empreendimento composto por 39 apartamentos com tipologias T1, T2 e T3, todos eles com garagem fechada para no mínimo 2 carros.

Localizado próximo do Espaço Mais, junto dos acessos à A1, a cerca de 10 minutos do centro de Vila Nova de Gaia e do Porto, sendo uma excelente oportunidade tanto para habitação própria como para uma perspectiva de investimento.

Este será um empreendimento dotado de boas áreas e acabamentos tais como bomba de calor, cozinhas equipadas, piso flutuante, instalação de ar condicionado.

Entre em contacto para mais informações e venha conhecer o seu futuro lar.

Material de acabamentos.

Mapa de acabamentos.

Exteriores
Fachada ventilada com revestimentos a cerâmica de grandes dimensões com estrutura de alumínio.
Topos das varandas em cerâmica com estrutura em alumínio.
Tetos de varandas em cerâmica com estrutura de alumínio.
Varanda com cerâmica espessura de 2cm.
Iluminação das varandas embutida nos tetos com focos Lede.

Caixilharia de alumínio.
Caixilharia de alumínio com corte térmico lacado.
Vidro duplo Guardiansun 6mm + CX 18 PRT + Laminado 4 + 4.
Estores elétricos em alumínio á cor da caixilharia com isolamento térmico.
Varandas grades de ferro lacado.

Pavimentos interiores.
Pisos com manta acústica com dobra nas paredes meeiras.
Isolamento acústico de toda a tubagem.
Pavimentos de flutuante VINIL a cor do carvalho.

Paredes interiores.
Paredes interiores em pladur com dupla placa uma de O S B e outra de pladur com estrutura dos montantes reforçada.
Paredes da casas de banho com cerâmica na zona de duche.
Manta de vedação por traz da cerâmica para vedação das infiltrações.
Paredes pintadas com tinta cinacryl.
Chão do duche em cerâmica com grelha de recolha de agua.
Resguardo de correr ao fixo.
Louça suspensa.
Movel lavatório suspenso.
Espelho retro iluminado.
Sistema de ventilação com VMC. ( fluxos cruzados).

Tetos.
Tetos falsos em pladur.
Sancas de pladur.
Iluminação Led.

Madeiras de carpintaria.
Portas até ao teto lacadas a cor ralé 9010.
Moveis roupeiros com portas de abrir lacadas até ao teto iluminação interior.

Cozinha.
Móveis de cozinha com portas e gavetões termolaminado.
Tampo de cozinha em Sileston com roda-tampo.

Equipamento Bosch.
Frigorifico combinado.
Maquina de lavar louça.
Forno com grill.
Micro-ondas com grill.
Placa vitrocerâmica.
Chaminé de gaveta.
Bomba de calor Aríston ao equivalente.
Ar-condicionado Aríston ao equivalente.

Zona comuns.
Elevadores.
Chão da entrada principal em cerâmica.
Paredes dos halls com material ignifica.
Escadaria degraus e patamares em cerâmica.
Paredes da escadaria pintadas.
Tetos dos halls em pladur.
Pavimento das garagem com acabamento talocha do mecânico com endurecedor.
Paredes das garagem e tetos pintados a branco com lambrim ate 1,20cm cor a definir.
Pré-instalação para carregadores elétricos.
Sala de condomínio.
Rede de incêndio.

Entre em contacto para mais informações e venha conhecer o seu futuro lar.

Características Gerais

  • Ar Condicionado
  • Cozinha Equipada
  • Garagem
  • Estacionamento
  • Guarda Roupa

Galeria do imóvel

Apartamento T2 Venda em Grijó e Sermonde,Vila Nova de Gaia
Apartamento T2 Venda em Grijó e Sermonde,Vila Nova de Gaia
Apartamento T2 Venda em Grijó e Sermonde,Vila Nova de Gaia
Apartamento T2 Venda em Grijó e Sermonde,Vila Nova de Gaia
Apartamento T2 Venda em Grijó e Sermonde,Vila Nova de Gaia
Apartamento T2 Venda em Grijó e Sermonde,Vila Nova de Gaia

Localização do imóvel

Porto, Vila Nova de Gaia, Grijó e Sermonde

Referência do anúncio: 4212-Q. Última atualização: 13 agosto 2025.

Relatório de preços praticados nos últimos 8 meses

Porto, Vila Nova de Gaia, Grijó e Sermonde

Simule um Crédito Habitação

Os dados apresentados são meramente indicativos. Condições gerais
Seguir
Partilhar
Projecto Perfeito - Espinho
AMI 8481
220 ...
Chamada para a rede fixa nacional
Mostrar número
Nome
Email
Contacto
Formato inválido
Agende uma visita
Referência do anúncio: 4212-Q.
Última atualização: 13 agosto 2025.
Contactar
Veja também
Anúncios na mesma zona
Apartamento T3 Venda em São Félix da Marinha,Vila Nova de Gaia
Porto, Vila Nova de Gaia, São Félix da Marinha
475 000 €
3
4
1
Apartamento de Luxo T3 no Empreendimento LE PARC
Porto, Vila Nova de Gaia, Canidelo
508 000 €
3
2
1
Apartamento T3 com terraço de 89m2 em zona residencial, Boavista, Porto
Porto, Porto, Aldoar, Foz do Douro e Nevogilde
1 850 000 €
3
5
Apartamento de Luxo T3 no Empreendimento LE PARC
Porto, Vila Nova de Gaia, Canidelo
513 000 €
3
2
1
T1 Novo com Terraço e Acabamentos de Luxo - Seca do Bacalhau
Porto, Vila Nova de Gaia, Canidelo
310 000 €
1
1
Apartamento de Luxo T3 no Empreendimento LE PARC
Porto, Vila Nova de Gaia, Canidelo
508 000 €
3
2
1
Apartamento de Luxo T3 no Empreendimento LE PARC
Porto, Vila Nova de Gaia, Canidelo
508 000 €
3
2
1
Apartamento Duplex T3+1, em construção, Porto, a Mar. Gomes da Costa. Portugal, Porto.
Porto, Porto, Lordelo do Ouro e Massarelos
2 250 000 €
4
5
1
Apartamento T3 Venda em Mafamude e Vilar do Paraíso,Vila Nova de Gaia
Porto, Vila Nova de Gaia, Mafamude e Vilar do Paraíso
531 240 €
3
1
Apartamento T3 Venda em São Félix da Marinha,Vila Nova de Gaia
Porto, Vila Nova de Gaia, São Félix da Marinha
450 000 €
3
4
1
Partilha o imóvel: Apartamento T2 Venda em Grijó e Sermonde,Vila Nova de Gaia
Partilha este imóvel nas tuas redes sociais ou envia diretamente para o email dos teus amigos.
Partilhar por email
Adicione uma nota ao imóvel!
Só você é que vê as notas que adiciona. Os imóveis com notas ficam nos favoritos para os poder consultar mais tarde.
Excluíste o anúncio:
Apartamento T2 Venda em Grijó e Sermonde,Vila Nova de Gaia