Pesquisar perto de mim
A aguardar a sua pesquisa
Voltar
Apartamento t2 - oeiras
Apartamento t2 - oeiras
Apartamento t2 - oeiras
Apartamento t2 - oeiras
Ver galeria (27)
Ver galeria (27)
Seguir
Partilhar

Apartamento t2 - oeiras

Lisboa, Oeiras, Oeiras e São Julião da Barra, Paço de Arcos e Caxias Ver no mapa
475 000 €
2 Quartos
1 WC's
81m2
Área Útil: 81m2
Área Bruta: 81m2
Ano de Construção: 1978
Certificação Energética: B-
Estado: Usado

Descrição do anúncio

T2 – Oeiras -  EM REMODELAÇÃO TOTAL
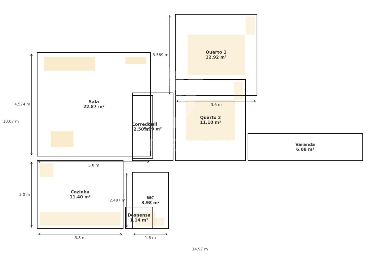
O apartamento possui 81m² de área bruta privativa e 10m² de área bruta dependente.Sala

Sala de 22,87m².Cozinha

Cozinha de 11,40m² com despensa de 1,14m².Quartos

Quarto 1 – 12,92m²

Quarto 2 – 11,10m²

Varanda dos quartos 6,08m².Casa de banho

WC completo de 3,98m².Outros detalhes

Hall 5,39m², corredor 2,50m² e arrecadação localizada na cave. Duas frentes com boa exposição solar. Edifício com dois elevadores com mecanismo novo e coluna de água renovada.Zona Envolvente 

Comércio e Centros Comerciais

Continente Bom Dia ~1 min a pé (100 m)

Spar ~2 min a pé (150 m)

Mini Preço ~5 min a pé (400 m)

Lidl (Porto Salvo) ~5 min de carro (2,5 km)

Pingo Doce (Linda-a-Velha) ~6 min de carro (3 km)

Padarias e mercearias locais <5 min a péTransportes

Paragem Rua Comandante Germano Dias ~1 min a pé (40 m)

Paragem Oeiras (B Augusto Castro) ~4 min a pé (240 m)

Estação Ferroviária de Oeiras ~10 min a pé (800 m)

Acessos à A5 e Marginal ~5 min de carroLocais de Interesse

Escola Básica Gomes Freire de Andrade ~2 min a pé (150 m)

Escola Secundária Dona Filipa de Vilhena ~5 min a pé (400 m)

Universidade Nova de Oeiras ~7 min de carro (5 km)

Farmácia Alcântara Guerreiro ~3 min a pé (250 m)

Hospital da Luz Oeiras ~9 min a pé (700 m)

Parque dos Poetas ~11 min a pé (900 m)

Biblioteca Municipal de Oeiras ~7 min a pé (550 m)

Praia de Santo Amaro de Oeiras ~20 min a pé / ~5 min de carro









Consultora: Daniela Pereira (Predimed)


Predimed Imobiliária, Mediação Imobiliária, Lda.
Avenida Brasil 43, 12º Andar, 1700-062 Lisboa
Licença AMI nº 22503
Pessoa Coletiva nº 517 239 345
Seguro Responsabilidade Civil: Nº de Apólice RC65379424 Fidelidade

Características Gerais

  • Elevador

Galeria do imóvel

Apartamento t2 - oeiras
Apartamento t2 - oeiras
Apartamento t2 - oeiras
Apartamento t2 - oeiras
Apartamento t2 - oeiras
Apartamento t2 - oeiras

Localização do imóvel

Lisboa, Oeiras, Oeiras e São Julião da Barra, Paço de Arcos e Caxias

Referência do anúncio: 054998. Última atualização: 11 novembro 2025.

Relatório de preços praticados nos últimos 8 meses

Lisboa, Oeiras, Oeiras e São Julião da Barra, Paço de Arcos e Caxias

Simule um Crédito Habitação

Os dados apresentados são meramente indicativos. Condições gerais
Seguir
Partilhar
Predimed Imobiliaria Mediacao Imobiliaria Lda
AMI 22503
Nome
Email
Contacto
Formato inválido
Agende uma visita
Referência do anúncio: 054998.
Última atualização: 11 novembro 2025.
Contactar
Veja também
Anúncios na mesma zona
Apartamento T3 | REMODELADO e MOBILIDADO | Open Space
Lisboa, Lisboa, Benfica
599 900 €
3
2
Lapa | Exclusivo Apartamento T2 com 2 Suítes e 3 Salas
Lisboa, Lisboa, Estrela
1 649 000 €
2
3
Apartamento T2
Lisboa, Lisboa, Marvila
1 050 000 €
2
1
Apartamento T4 no Chiado com vista e garagem
Lisboa, Lisboa, Misericórdia
3 100 000 €
4
4
Apartamento T1 - centro de Vila Franca do Rosário, Mafra
Lisboa, Mafra, Enxara do Bispo, Gradil e Vila Franca do Rosário
170 000 €
1
1
Apartamento T3 Venda em Agualva e Mira-Sintra,Sintra
Lisboa, Sintra, Agualva e Mira-Sintra
225 000 €
3
1
Apartamento T3 Duplex Monte Estoril vista Mar
Lisboa, Cascais, Cascais e Estoril
1 380 000 €
3
3
T2 totalmente remodelado com acabamentos de luxo
Lisboa, Mafra, Venda do Pinheiro e Santo Estêvão das Galés
310 000 €
2
1
1
Apartamento T1 Venda em São Domingos de Benfica,Lisboa
Lisboa, Lisboa, São Domingos de Benfica
329 900 €
1
1
T2 remodelado com conceito open space e ilha de cozinha | cacém
Lisboa, Sintra, Cacém e São Marcos
255 000 €
2
1
Partilha o imóvel: Apartamento t2 - oeiras
Partilha este imóvel nas tuas redes sociais ou envia diretamente para o email dos teus amigos.
Partilhar por email
Adicione uma nota ao imóvel!
Só você é que vê as notas que adiciona. Os imóveis com notas ficam nos favoritos para os poder consultar mais tarde.
Excluíste o anúncio:
Apartamento t2 - oeiras