Pesquisar perto de mim
A aguardar a sua pesquisa
Voltar
Apartamento T2 novo com terraço próximo estádio do dragão, Porto
Apartamento T2 novo com terraço próximo estádio do dragão, Porto
Apartamento T2 novo com terraço próximo estádio do dragão, Porto
Apartamento T2 novo com terraço próximo estádio do dragão, Porto
Ver galeria (9)
Ver galeria (9)
Seguir
Partilhar

Apartamento T2 novo com terraço próximo estádio do dragão, Porto

Porto, Porto, Campanhã Ver no mapa
260 000 €
2 Quartos
1 WC's
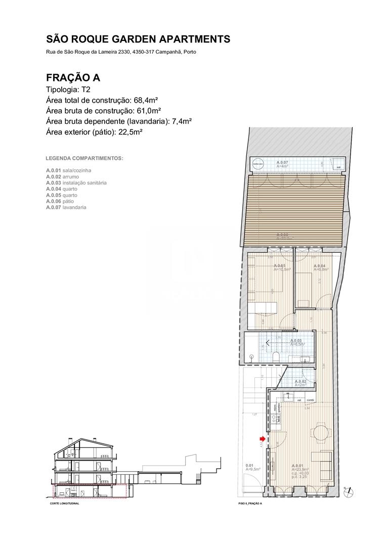
61m2
Área Útil: 61m2
Área Bruta: 84m2
Ano de Construção: 2025
Certificação Energética: B
Estado: Em Construção

Descrição do anúncio

Apartamento T2 novo com terraço próximo estádio do dragão, Porto
Descubra este acolhedor apartamento T2, pensado para oferecer conforto, funcionalidade e um ótimo aproveitamento de espaço.
Este imóvel combina modernidade com uma disposição prática e eficiente.

Distribuição do Apartamento:
Sala/Cozinha em openspace 
Terraço com acesso à lavandaria
WC completo moderno
Quarto principal 
Segundo quarto
ArrumosO apartamento oferece ainda boa exposição solar e está inserido num prédio em fase de construção, com localização estratégica próximo à Ponte do Freixo, VCI e acesso direto às autoestradas A3 e A4, com transportes públicos à porta (STCP e Metro do Porto).
A poucos passos de:
Parque de São Roque – 240 m
Parque da Pasteleira das Flores – 130 m
Casa de São Roque – 260 m
Estádio do Dragão – 750 m
Matadouro do Porto – 800 mCaracterísticas gerais:
* Ar condicionado;
* Bomba de calor para AQS e/ou painel solar:
* Eletrodomésticos da marca Bosch

Marque já a sua visita junto de um dos nossos consultores imobiliários.

RÉPLICA, uma referência imobiliária.
Com 35 anos de atuação no mercado nacional, aplicamos as boas práticas e metodologias que privilegiam Proprietário e Comprador, proporcionando os melhores resultados para todos os intervenientes.
Trabalhamos com um posicionamento de rigor na prestação de serviços imobiliários, apoiando a nossa atividade na experiência da nossa equipa de profissionais e em soluções eficazes de publicidade e marketing.
Garantimos a máxima discrição e serviço de excelência.
 
Sem preocupações - nós tratamos de tudo.

Características Gerais

  • Ar Condicionado
  • Cozinha Equipada
  • Terraço

Galeria do imóvel

Apartamento T2 novo com terraço próximo estádio do dragão, Porto
Apartamento T2 novo com terraço próximo estádio do dragão, Porto
Apartamento T2 novo com terraço próximo estádio do dragão, Porto
Apartamento T2 novo com terraço próximo estádio do dragão, Porto
Apartamento T2 novo com terraço próximo estádio do dragão, Porto
Apartamento T2 novo com terraço próximo estádio do dragão, Porto

Localização do imóvel

Porto, Porto, Campanhã

Referência do anúncio: RA0834-A. Última atualização: 31 outubro 2025.

Relatório de preços praticados nos últimos 8 meses

Porto, Porto, Campanhã

Simule um Crédito Habitação

Os dados apresentados são meramente indicativos. Condições gerais
Seguir
Partilhar
Habimaison Med. Imobiliária Unip., Lda.
AMI 12769
223 ...
Chamada para a rede fixa nacional
Mostrar número
Nome
Email
Contacto
Formato inválido
Agende uma visita
Referência do anúncio: RA0834-A.
Última atualização: 31 outubro 2025.
Contactar
Veja também
Anúncios na mesma zona
Apartamento T3 no centro de Matosinhos perto da Câmara
Porto, Matosinhos, Matosinhos e Leça da Palmeira
525 000 €
3
3
1
Apartamento T4 de Luxo junto à Marina de Vila do Conde
Porto, Vila do Conde, Vila do Conde
990 000 €
4
1
1
Apartamento T2 de Luxo junto à Marina de Vila do Conde
Porto, Vila do Conde, Vila do Conde
410 000 €
2
1
1
Apartamento T1 junto ao Rio Douro – Sofisticação no Coração do Porto
Porto, Porto, Cedofeita, Santo Ildefonso, Sé, Miragaia, São Nicolau e Vitória
245 000 €
1
1
1
Apartamento T1com varanda e vista sobre o Rio Douro – Sofisticação no Coração do Porto
Porto, Porto, Cedofeita, Santo Ildefonso, Sé, Miragaia, São Nicolau e Vitória
320 000 €
1
1
1
Apartamento T1 no Centro do Porto
Porto, Porto, Cedofeita, Santo Ildefonso, Sé, Miragaia, São Nicolau e Vitória
300 000 €
1
1
Apartamento T3 de Luxo junto à Marina de Vila do Conde
Porto, Vila do Conde, Vila do Conde
610 000 €
3
1
1
T3 Exclusivo em Condomínio Fechado com Piscina e Vista Mar - Vila Nova de Gaia
Porto, Vila Nova de Gaia, Canidelo
498 000 €
3
3
1
Apartamento T2 junto ao Rio Douro – Sofisticação no Coração do Porto
Porto, Porto, Cedofeita, Santo Ildefonso, Sé, Miragaia, São Nicolau e Vitória
320 000 €
2
1
1
T4 novo Foco C/ varanda
Porto, Porto, Lordelo do Ouro e Massarelos
830 000 €
4
5
1
Partilha o imóvel: Apartamento T2 novo com terraço próximo estádio do dragão, Porto
Partilha este imóvel nas tuas redes sociais ou envia diretamente para o email dos teus amigos.
Partilhar por email
Adicione uma nota ao imóvel!
Só você é que vê as notas que adiciona. Os imóveis com notas ficam nos favoritos para os poder consultar mais tarde.
Excluíste o anúncio:
Apartamento T2 novo com terraço próximo estádio do dragão, Porto