Pesquisar perto de mim
A aguardar a sua pesquisa
Voltar
Apartamento t2 gafanha da nazaré
Apartamento t2 gafanha da nazaré
Apartamento t2 gafanha da nazaré
Apartamento t2 gafanha da nazaré
Ver galeria (11)
Ver galeria (11)
Seguir
Partilhar

Apartamento t2 gafanha da nazaré

Aveiro, Ílhavo, Gafanha da Nazaré Ver no mapa
267 500 €
2 Quartos
1 WC's
96m2
Área Útil: 96m2
Área Bruta: 96m2
Certificação Energética: N/A
Estado: Em Construção

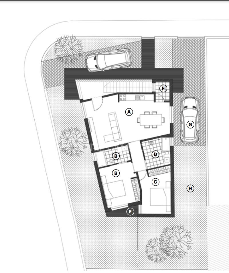
Descrição do anúncio

Este elegante apartamento T2, situado no primeiro andar, destaca-se pelo seu design moderno e funcional, proporcionando uma experiência de habitação confortável e acolhedora.Ao entrar, é imediatamente notável a sensação de espaço e luminosidade que envolve todos os ambientes. A sala e a cozinha em open space criam um ambiente harmonioso e convidativo, ideal para momentos de convívio e lazer.A ampla área social beneficia de excelente iluminação natural, proporcionando uma atmosfera acolhedora e sofisticada.O apartamento dispõe de dois quartos espaçosos, sendo um deles uma suite com casa de banho privativa e acesso direto ao espaço exterior.O segundo quarto, igualmente bem iluminado, oferece um ambiente sereno e confortável. Complementando a área privativa, encontra-se uma segunda casa de banho moderna e funcional, garantindo praticidade para todos os residentes.Para maior comodidade, o apartamento conta ainda com uma lavandaria e estacionamento privativo. O espaço exterior proporciona um ambiente agradável para momentos ao ar livre, ideal para quem valoriza o contacto com a natureza sem abdicar das comodidades da vida moderna.Este apartamento combina na perfeição conforto, funcionalidade e um design contemporâneo, sendo a escolha ideal para quem procura um lar moderno numa localização tranquila e privilegiada.
Características:
✔ Sala/Cozinha em open space
✔ 1 Suite
✔ 1 Quarto
✔ 1 Casa de banho
✔ 1 Lavandaria✔ 1 Varanda
✔ Estacionamento privativo
✔ Espaço exterior
Prazo de entrega: 12 - 18 meses
<A Sua Casa Mora Aqui>


Predimed Imobiliária, Mediação Imobiliária, Lda.
Avenida Brasil 43, 12º Andar, 1700-062 Lisboa
Licença AMI nº 22503
Pessoa Coletiva nº 517 239 345
Seguro Responsabilidade Civil: Nº de Apólice RC65379424 Fidelidade

Características Gerais

  • Video Porteiro
  • Cozinha Equipada
  • Estacionamento
  • Varandas

Galeria do imóvel

Apartamento t2 gafanha da nazaré
Apartamento t2 gafanha da nazaré
Apartamento t2 gafanha da nazaré
Apartamento t2 gafanha da nazaré
Apartamento t2 gafanha da nazaré
Apartamento t2 gafanha da nazaré

Localização do imóvel

Aveiro, Ílhavo, Gafanha da Nazaré

Referência do anúncio: 058902. Última atualização: 10 março 2026.

Relatório de preços praticados nos últimos 8 meses

Aveiro, Ílhavo, Gafanha da Nazaré

Simule um Crédito Habitação

Os dados apresentados são meramente indicativos. Condições gerais
Seguir
Partilhar
Predimed Imobiliaria Mediacao Imobiliaria Lda
AMI 22503
Nome
Email
Contacto
Formato inválido
Agende uma visita
Referência do anúncio: 058902.
Última atualização: 10 março 2026.
Contactar
Veja também
Anúncios na mesma zona
Apartamento T2 Venda em Loureiro,Oliveira de Azeméis
Aveiro, Oliveira de Azeméis, Loureiro
220 000 €
2
2
Apartamento t3 na praia da costa nova
Aveiro, Ílhavo, Gafanha da Nazaré
724 000 €
3
3
1
Apartamento T1 Venda em São Bernardo,Aveiro
Aveiro, Aveiro, São Bernardo
235 000 €
1
1
Apartamento T4 de luxo em Oliveira de Azemeis
Aveiro, Oliveira de Azeméis, Oliveira de Azeméis, Santiago de Riba-Ul, Ul, Macinhata da Seixa e Madail
400 000 €
4
3
Apartamentos T2 em Oliveira de Azeméis
Aveiro, Oliveira de Azeméis, Oliveira de Azeméis, Santiago de Riba-Ul, Ul, Macinhata da Seixa e Madail
245 000 €
2
1
Apartamento t4 duplex em vila verde – oliveira do bairro
Aveiro, Oliveira do Bairro, Oliveira do Bairro
280 000 €
4
1
Apartamento t2 foz de prata
Aveiro, Aveiro, Glória e Vera Cruz
395 000 €
2
2
Apartamento T3 com varanda em Oliveira de Azeméis
Aveiro, Oliveira de Azeméis, Oliveira de Azeméis, Santiago de Riba-Ul, Ul, Macinhata da Seixa e Madail
275 000 €
3
2
Apartamento T0 com varanda em Oliveira de Azeméis
Aveiro, Oliveira de Azeméis, Oliveira de Azeméis, Santiago de Riba-Ul, Ul, Macinhata da Seixa e Madail
195 000 €
1
FANTÁSTICO APARTAMENTO T3 DUPLEX NOVO-LUXO SÃO JOÃO DA MADEIRA
Aveiro, São João da Madeira, São João da Madeira
600 000 €
3
4
Partilha o imóvel: Apartamento t2 gafanha da nazaré
Partilha este imóvel nas tuas redes sociais ou envia diretamente para o email dos teus amigos.
Partilhar por email
Adicione uma nota ao imóvel!
Só você é que vê as notas que adiciona. Os imóveis com notas ficam nos favoritos para os poder consultar mais tarde.
Excluíste o anúncio:
Apartamento t2 gafanha da nazaré