Pesquisar perto de mim
A aguardar a sua pesquisa
Voltar
⭐Apartamento T2, excelentes áreas, zona Nobre do Porto - Lordelo do Ouro. Terraço com 50 m² ⭐
⭐Apartamento T2, excelentes áreas, zona Nobre do Porto - Lordelo do Ouro. Terraço com 50 m² ⭐
⭐Apartamento T2, excelentes áreas, zona Nobre do Porto - Lordelo do Ouro. Terraço com 50 m² ⭐
⭐Apartamento T2, excelentes áreas, zona Nobre do Porto - Lordelo do Ouro. Terraço com 50 m² ⭐
Ver galeria (29)
Ver galeria (29)
Seguir
Partilhar

⭐Apartamento T2, excelentes áreas, zona Nobre do Porto - Lordelo do Ouro. Terraço com 50 m² ⭐

Porto, Porto, Lordelo do Ouro e Massarelos Ver no mapa
470 000 €
2 Quartos
2 WC's
103,209999084473m2
Área Útil: 103,209999084473m2
Área Bruta: 103,209999084473m2
Ano de Construção: 2007
Certificação Energética: D
Estado: Recuperado

Descrição do anúncio

Apresentamos este distinto apartamento T2, situado numa das zonas mais nobres da cidade do Porto, Lordelo do Ouro.
Onde a centralidade, a privacidade e a qualidade de vida se encontram em perfeita harmonia.

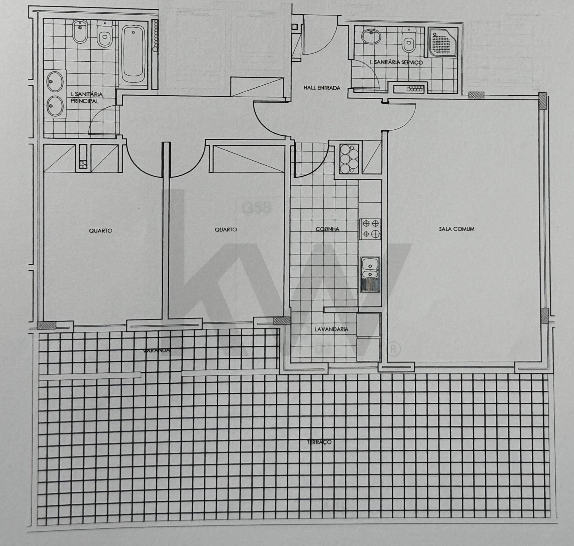
Com uma área interior generosa e uma distribuição equilibrada, este imóvel destaca-se pelas suas divisões amplas e funcionais, uma raridade face às construções mais recentes. A sala, com cerca de 28m², oferece uma vivência confortável e luminosa, seguida de um extraordinário terraço com aproximadamente 50 m², ideal para momentos de lazer, convívio ou simplesmente para desfrutar de um ambiente tranquilo e resguardado, com vistas desafogadas sobre zona ajardinada.

A cozinha, independente e espaçosa, integra zona de lavandaria, garantindo funcionalidade no dia a dia. A área privada é composta por dois quartos de boas dimensões, ambos com áreas superiores à média, complementados por duas casas de banho amplas e bem distribuídas.

Este apartamento apresenta as seguintes características:

Área bruta total de 186,87 m²
Área bruta do fogo de 103,21 m²
Terraço com 50 m² e varanda com 7 m²
Lugar de garagem com 20,79 m²
Arrumo independente com 5,86 m²
Caixilharia em alumínio com vidro duplo
Blackouts elétricos nos quartos
Construção sólida com isolamento térmico e acústico
Hall de entrada do edifício com porteiro

Inserido em um edifício com elevadores e bons padrões construtivos, oferece uma vivência confortável, silenciosa e segura.

📍 Localização – Lordelo do Ouro

Lordelo do Ouro é amplamente considerada uma das zonas mais nobres e prestigiadas da cidade do Porto.

A sua reputação deve-se, em grande parte, à localização privilegiada junto à marginal do Rio Douro e à proximidade com a Foz do Douro. Viver aqui é abraçar um estilo de vida onde a sofisticação e a serenidade coexistem em perfeita harmonia.

Reconhecida como uma das localizações mais desejadas da Invicta, esta zona privilegia quem valoriza exclusividade, tranquilidade e qualidade de vida. O ritmo da cidade suaviza-se perante as vistas sobre o rio e a proximidade do mar, sem nunca abdicar da centralidade.

Atualmente integrada com Massarelos, esta freguesia apresenta uma das maiores valorizações imobiliárias do Porto, sendo o destino de eleição para famílias e investidores que procuram um equilíbrio entre natureza, acessibilidade e conveniência urbana.

Com acessos rápidos à VCI e proximidade a serviços, comércio, escolas e zonas verdes, esta localização garante um quotidiano prático e sofisticado.

👉 Venha descobrir o privilégio de viver numa zona de distinção.

🤝 Sobre a Keller Williams

A Keller Williams é a maior rede imobiliária do mundo, presente em mais de 50 países e reconhecida pela sua cultura assente em valores como integridade, transparência e foco absoluto no cliente.

Mais do que uma mediadora, posiciona-se como uma empresa de consultoria imobiliária, onde cada processo é conduzido com profissionalismo, estratégia e dedicação, garantindo aos seus clientes um acompanhamento personalizado e orientado para resultados.

Agende já a sua visita!

Características Gerais

  • Arrumos
  • Nº de Estacionamentos 1

Galeria do imóvel

⭐Apartamento T2, excelentes áreas, zona Nobre do Porto - Lordelo do Ouro. Terraço com 50 m² ⭐
⭐Apartamento T2, excelentes áreas, zona Nobre do Porto - Lordelo do Ouro. Terraço com 50 m² ⭐
⭐Apartamento T2, excelentes áreas, zona Nobre do Porto - Lordelo do Ouro. Terraço com 50 m² ⭐
⭐Apartamento T2, excelentes áreas, zona Nobre do Porto - Lordelo do Ouro. Terraço com 50 m² ⭐
⭐Apartamento T2, excelentes áreas, zona Nobre do Porto - Lordelo do Ouro. Terraço com 50 m² ⭐
⭐Apartamento T2, excelentes áreas, zona Nobre do Porto - Lordelo do Ouro. Terraço com 50 m² ⭐

Localização do imóvel

Porto, Porto, Lordelo do Ouro e Massarelos

Referência do anúncio: KWPT-030060. Última atualização: 21 abril 2026.

Relatório de preços praticados nos últimos 8 meses

Porto, Porto, Lordelo do Ouro e Massarelos

Simule um Crédito Habitação

Os dados apresentados são meramente indicativos. Condições gerais
Seguir
Partilhar
Kw Alfa Porto
AMI 14081
Nome
Email
Contacto
Formato inválido
Agende uma visita
Referência do anúncio: KWPT-030060.
Última atualização: 21 abril 2026.
Contactar
Veja também
Anúncios na mesma zona
Apartamento T0 - Matosinhos Sul
Porto, Matosinhos, Matosinhos e Leça da Palmeira
278 000 €
1
Apartamento T1+1 - Matosinhos Sul
Porto, Matosinhos, Matosinhos e Leça da Palmeira
330 000 €
1
1
Apartamento T0 - Matosinhos Sul
Porto, Matosinhos, Matosinhos e Leça da Palmeira
263 000 €
1
Apartamento T1- Matosinhos Sul
Porto, Matosinhos, Matosinhos e Leça da Palmeira
355 000 €
1
1
Apartamento T0+1 - Matosinhos Sul
Porto, Matosinhos, Matosinhos e Leça da Palmeira
345 000 €
1
Apartamento T0 - Matosinhos Sul
Porto, Matosinhos, Matosinhos e Leça da Palmeira
252 800 €
1
Apartamento T2- Matosinhos Sul
Porto, Matosinhos, Matosinhos e Leça da Palmeira
443 000 €
2
2
Apartamento T0 - Matosinhos Sul
Porto, Matosinhos, Matosinhos e Leça da Palmeira
247 000 €
1
Apartamento T1- Matosinhos Sul
Porto, Matosinhos, Matosinhos e Leça da Palmeira
295 000 €
1
1
Apartamento T0+1- Matosinhos Sul
Porto, Matosinhos, Matosinhos e Leça da Palmeira
350 000 €
1
Partilha o imóvel: ⭐Apartamento T2, excelentes áreas, zona Nobre do Porto - Lordelo do Ouro. Terraço com 50 m² ⭐
Partilha este imóvel nas tuas redes sociais ou envia diretamente para o email dos teus amigos.
Partilhar por email
Adicione uma nota ao imóvel!
Só você é que vê as notas que adiciona. Os imóveis com notas ficam nos favoritos para os poder consultar mais tarde.
Excluíste o anúncio:
⭐Apartamento T2, excelentes áreas, zona Nobre do Porto - Lordelo do Ouro. Terraço com 50 m² ⭐