Pesquisar perto de mim
A aguardar a sua pesquisa
Voltar
Apartamento T2  em São João da Madeira
Apartamento T2  em São João da Madeira
Apartamento T2  em São João da Madeira
Apartamento T2  em São João da Madeira
Ver galeria (22)
Ver galeria (22)
Seguir
Partilhar

Apartamento T2 em São João da Madeira

Aveiro, São João da Madeira, São João da Madeira Ver no mapa
302 500 €
2 Quartos
3 WC's
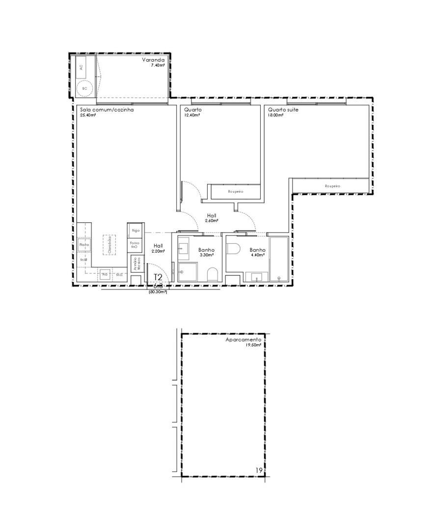
80m2
Área Útil: 80m2
Área Bruta: 88m2
Ano de Construção: 2026
Certificação Energética: A
Estado: Novo

Descrição do anúncio

Empreendimento em construção em São João da Madeira.

Este empreendimento será composto por 42 apartamentos distribuídos por 6 pisos.

Todos os apartamentos possuem lugar de garagem e varanda ou terraço.

Previsão de conclusão: 2º semestre de 2026.

A nível de acabamentos estes apartamentos contarão com o seguinte:
- Pavimento AC5 tipo carvalho
- Carpintaria lacada em branco
- Cozinha equipada com placa de indução, frigorifico combinado, micro-ondas, máquina de lavar louça, forno, exaustor
- Louças sanitárias suspensas
- Caixilharia em alumínio com corte térmico e vidro duplo
- Estores elétricos com isolamento térmico lacado à cor da caixilharia
- Ar condicionado
- Bomba de calor
- Tomada para carregamento de carros elétricos no lugar de garagem

Para mais detalhes não hesite em contactar-nos.
 

Características Gerais

  • Varandas

Galeria do imóvel

Apartamento T2  em São João da Madeira
Apartamento T2  em São João da Madeira
Apartamento T2  em São João da Madeira
Apartamento T2  em São João da Madeira
Apartamento T2  em São João da Madeira
Apartamento T2  em São João da Madeira

Localização do imóvel

Aveiro, São João da Madeira, São João da Madeira

Referência do anúncio: TRI555-AL. Última atualização: 30 abril 2026.

Relatório de preços praticados nos últimos 8 meses

Aveiro, São João da Madeira, São João da Madeira

Simule um Crédito Habitação

Os dados apresentados são meramente indicativos. Condições gerais
Seguir
Partilhar
ALLTRIMOVEL, LDA (trimóvel)
AMI 16008
256 ...
Chamada para a rede fixa nacional
Mostrar número
Nome
Email
Contacto
Formato inválido
Agende uma visita
Referência do anúncio: TRI555-AL.
Última atualização: 30 abril 2026.
Contactar
Veja também
Anúncios na mesma zona
Apartamento T3 em Gafanha da Nazaré
Aveiro, Ílhavo, Gafanha da Nazaré
270 000 €
Apartamento T3
Aveiro, Castelo de Paiva, Sobrado e Bairros
230 000 €
3
1
1
Apartamento T1 em Águeda
Aveiro, Águeda, Águeda e Borralha
188 000 €
1
1
1
Apartamento T2 na Gafanha da Nazaré
Aveiro, Ílhavo, Gafanha da Nazaré
265 000 €
2
2
Apartamento T1 Venda em Glória e Vera Cruz,Aveiro
Aveiro, Aveiro, Glória e Vera Cruz
275 000 €
1
2
Apartamento T2 Venda em Mansores,Arouca
Aveiro, Arouca, Mansores
202 000 €
2
1
Apartamento T2 Venda em Oliveira de Azeméis, Santiago de Riba-Ul, Ul, Macinhata da Seixa e Madail,Oliveira de Azeméis
Aveiro, Oliveira de Azeméis, Oliveira de Azeméis, Santiago de Riba-Ul, Ul, Macinhata da Seixa e Madail
138 500 €
2
1
Apartamento T3 em Águeda
Aveiro, Águeda, Águeda e Borralha
332 500 €
3
3
1
Apartamento T3 Venda em Glória e Vera Cruz,Aveiro
Aveiro, Aveiro, Glória e Vera Cruz
470 120 €
3
1
Apartamento t5 na praia da costa nova
Aveiro, Ílhavo, Gafanha da Nazaré
1 432 000 €
5
4
1
Partilha o imóvel: Apartamento T2 em São João da Madeira
Partilha este imóvel nas tuas redes sociais ou envia diretamente para o email dos teus amigos.
Partilhar por email
Adicione uma nota ao imóvel!
Só você é que vê as notas que adiciona. Os imóveis com notas ficam nos favoritos para os poder consultar mais tarde.
Excluíste o anúncio:
Apartamento T2 em São João da Madeira