Pesquisar perto de mim
A aguardar a sua pesquisa
Voltar
Apartamento T2  em São João da Madeira
Apartamento T2  em São João da Madeira
Apartamento T2  em São João da Madeira
Apartamento T2  em São João da Madeira
Ver galeria (20)
Ver galeria (20)
Seguir
Partilhar

Apartamento T2 em São João da Madeira

Aveiro, São João da Madeira, São João da Madeira Ver no mapa
290 500 €
2 Quartos
2 WC's
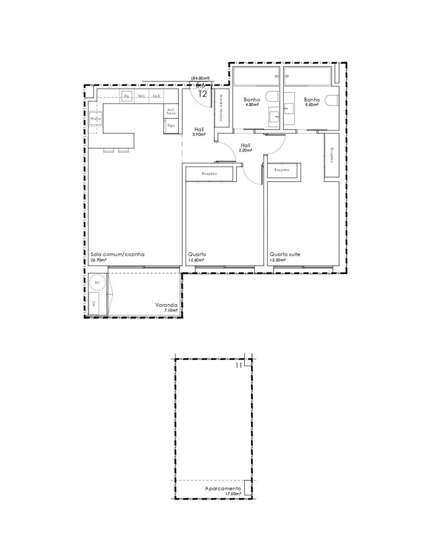
85m2
Área Útil: 85m2
Área Bruta: 92m2
Ano de Construção: 2026
Certificação Energética: A
Estado: Novo

Descrição do anúncio

Empreendimento em construção em São João da Madeira.

Este empreendimento será composto por 42 apartamentos distribuídos por 6 pisos.

Todos os apartamentos possuem lugar de garagem e varanda ou terraço.

Previsão de conclusão: 2º semestre de 2026.

A nível de acabamentos estes apartamentos contarão com o seguinte:
- Pavimento AC5 tipo carvalho
- Carpintaria lacada em branco
- Cozinha equipada com placa de indução, frigorifico combinado, micro-ondas, máquina de lavar louça, forno, exaustor
- Louças sanitárias suspensas
- Caixilharia em alumínio com corte térmico e vidro duplo
- Estores elétricos com isolamento térmico lacado à cor da caixilharia
- Ar condicionado
- Bomba de calor
- Tomada para carregamento de carros elétricos no lugar de garagem

Para mais detalhes não hesite em contactar-nos.
 

Características Gerais

  • Varandas

Galeria do imóvel

Apartamento T2  em São João da Madeira
Apartamento T2  em São João da Madeira
Apartamento T2  em São João da Madeira
Apartamento T2  em São João da Madeira
Apartamento T2  em São João da Madeira
Apartamento T2  em São João da Madeira

Localização do imóvel

Aveiro, São João da Madeira, São João da Madeira

Referência do anúncio: TRI555-AH. Última atualização: 29 dezembro 2025.

Relatório de preços praticados nos últimos 8 meses

Aveiro, São João da Madeira, São João da Madeira

Simule um Crédito Habitação

Os dados apresentados são meramente indicativos. Condições gerais
Seguir
Partilhar
ALLTRIMOVEL, LDA (trimóvel)
AMI 16008
256 ...
Chamada para a rede fixa nacional
Mostrar número
Nome
Email
Contacto
Formato inválido
Agende uma visita
Referência do anúncio: TRI555-AH.
Última atualização: 29 dezembro 2025.
Contactar
Veja também
Anúncios na mesma zona
Apartamento T3 DUPLEX Venda em Aradas,Aveiro
Aveiro, Aveiro, Aradas
530 060 €
3
3
FANTÁSTICO APARTAMENTO T3 RC NOVO LUXUOSO COM 71,14 M2 TERRAÇO , SÃO JOÃO DA MADEIRA
Aveiro, São João da Madeira, São João da Madeira
550 000 €
3
4
FANTÁSTICO APARTAMENTO T3 LUXO-NOVO SÃO JOÃO DA MADEIRA
Aveiro, São João da Madeira, São João da Madeira
450 000 €
3
4
FANTÁSTICO APARTAMENTO T3 LUXO-NOVO SÃO JOÃO DA MADEIRA
Aveiro, São João da Madeira, São João da Madeira
475 000 €
3
4
FANTÁSTICO APARTAMENTO T3 DUPLEX- NOVO-LUXO SÃO JOÃO DA MADEIRA
Aveiro, São João da Madeira, São João da Madeira
650 000 €
3
4
Apartamento t3 na praia da costa nova
Aveiro, Ílhavo, Gafanha da Nazaré
724 000 €
3
3
1
Apartamento T3 de Luxo no centro de Aveiro
Aveiro, Aveiro, Glória e Vera Cruz
800 000 €
3
4
FANTÁSTICO APARTAMENTO T3 DUPLEX NOVO-LUXO SÃO JOÃO DA MADEIRA
Aveiro, São João da Madeira, São João da Madeira
600 000 €
3
4
FANTÁSTCO T3 RC NOVO LUXUOSO 165,99 M2 SÃO JOÃO DA MADEIRA
Aveiro, São João da Madeira, São João da Madeira
475 000 €
3
4
Apartamento T3 Venda em Aradas,Aveiro
Aveiro, Aveiro, Aradas
421 755 €
3
3
Partilha o imóvel: Apartamento T2 em São João da Madeira
Partilha este imóvel nas tuas redes sociais ou envia diretamente para o email dos teus amigos.
Partilhar por email
Adicione uma nota ao imóvel!
Só você é que vê as notas que adiciona. Os imóveis com notas ficam nos favoritos para os poder consultar mais tarde.
Excluíste o anúncio:
Apartamento T2 em São João da Madeira