Pesquisar perto de mim
A aguardar a sua pesquisa
Voltar
Apartamento T2 - 3º Andar
Apartamento T2 - 3º Andar
Apartamento T2 - 3º Andar
Apartamento T2 - 3º Andar
Ver galeria (9)
Ver galeria (9)
Seguir
Partilhar

Apartamento T2 - 3º Andar

Faro, Vila Real de Santo António, Monte Gordo Ver no mapa
550 000 €
2 Quartos
2 WC's
63m2
Área Útil: 63m2
Área Bruta: 75m2
Certificação Energética: A

Descrição do anúncio

Apartamento T2, nova construção, a 50 metros da Praia de Monte Gordo - Exposição Sul/Poente

Descubra este apartamento T2 em projeto, situado no terceiro andar do empreendimento Sudoeste, em Monte Gordo, a apenas 50 metros da icónica Praia de Monte Gordo. Uma oportunidade única para viver junto ao mar, desfrutar de férias com todo o conforto ou investir num dos destinos mais procurados do Algarve Oriental.

Com exposição solar Sul/Poente, este imóvel foi pensado para oferecer luminosidade, funcionalidade e conforto.

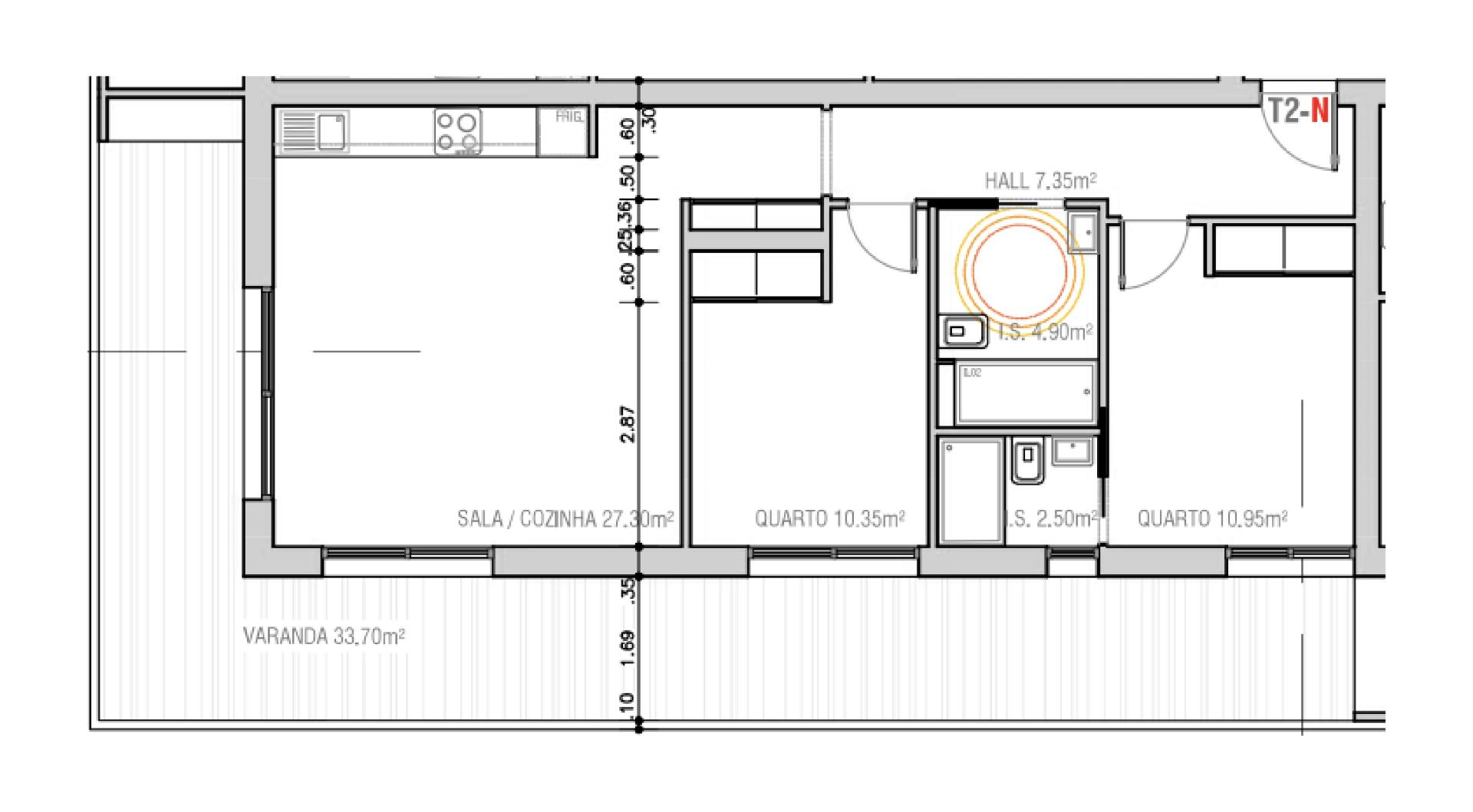
A fração é composta por:
-Cozinha moderna e totalmente equipada com placa vitrocerâmica, forno, exaustor, frigorífico, máquina de lavar loiça e máquina de lavar roupa
-Dois quartos com roupeiros embutidos (um deles quarto principal)
-2 casas de banho completas e hall de entrada.

O layout é prático e contemporâneo, com acabamentos de qualidade, ideal tanto para habitação própria como para rendimento turístico.

Ao nível das características técnicas, destaca-se a caixilharia em alumínio com corte térmico, garantindo isolamento térmico e acústico, estores elétricos, pré-instalação de ar condicionado, instalações sanitárias modernas com loiças suspensas, painel solar para aquecimento de águas quentes sanitárias e pavimento cerâmico em todas as divisões. Trata-se de um empreendimento novo, concebido para proporcionar uma vivência tranquila, moderna e confortável junto ao mar.

O início da construção está previsto para antes do verão de 2026, estimando-se um prazo de execução de aproximadamente 24 meses. As condições de pagamento são as seguintes: reserva de 5.000€, 25% no CPCV, 25% com a estrutura e paredes concluídas e os restantes 50% na escritura.

Monte Gordo é um dos destinos mais emblemáticos do litoral algarvio, conhecido pela sua extensa praia de areia fina e águas quentes e calmas, ideais para famílias e momentos de lazer. Ao longo da marginal encontra uma vasta oferta de restaurantes típicos, cafés, geladarias, supermercados, farmácias, bancos e diversos serviços essenciais. A zona é plana e de fácil acesso, perfeita para passeios a pé ou de bicicleta, mantendo ao longo de todo o ano uma atmosfera acolhedora que conjuga tranquilidade e dinamismo.

Este imóvel é promovido pela Casas do Sotavento, imobiliária reconhecida pela sua experiência, transparência e acompanhamento personalizado em todas as fases do processo de compra, venda ou arrendamento, garantindo segurança e profissionalismo.

Planta 3D com mobiliário meramente ilustrativo, não incluído no imóvel.

Galeria do imóvel

Apartamento T2 - 3º Andar
Apartamento T2 - 3º Andar
Apartamento T2 - 3º Andar
Apartamento T2 - 3º Andar
Apartamento T2 - 3º Andar
Apartamento T2 - 3º Andar

Localização do imóvel

Faro, Vila Real de Santo António, Monte Gordo

Referência do anúncio: CS-APT-94244_N. Última atualização: 18 fevereiro 2026.

Relatório de preços praticados nos últimos 8 meses

Faro, Vila Real de Santo António, Monte Gordo

Simule um Crédito Habitação

Os dados apresentados são meramente indicativos. Condições gerais
Seguir
Partilhar
Around The Sun - Unip Lda
AMI 10136
Nome
Email
Contacto
Formato inválido
Agende uma visita
Referência do anúncio: CS-APT-94244_N.
Última atualização: 18 fevereiro 2026.
Contactar
Veja também
Anúncios na mesma zona
Apartamento T0 Venda em Albufeira e Olhos de Água,Albufeira
Faro, Albufeira, Albufeira e Olhos de Água
200 000 €
1
1
EXCLUSIVIDADE! VENDIDO PELA ' TA MAISON DE RÊVE'
Faro, Loulé, Quarteira
Sob consulta
2
2
Apartamento T1 Venda em Mexilhoeira Grande,Portimão
Faro, Portimão, Mexilhoeira Grande
155 000 €
1
1
VENDIDO PELA ' TA MAISON DE RÊVE'
Faro, Loulé, Quarteira
Sob consulta
1
1
Apartamento T3 Venda em Faro (Sé e São Pedro),Faro
Faro, Faro, Conceição e Estoi
890 000 €
3
4
1
Albufeira - Estúdio localizado no Albufeira Jardim, a apenas 400 metros do centro da cidade.
Faro, Albufeira, Albufeira e Olhos de Água
200 000 €
1
1
VENDIDO PELA ' TA MAISON DE RÊVE'
Faro, Loulé, Quarteira
Sob consulta
2
2
Apartamento T2 com piscina e garagem- em Vilamoura
Faro, Loulé, Boliqueime
560 000 €
2
3
VENDIDO PELA ' TA MAISON DE RÊVE'
Faro, Olhão, Quelfes
Sob consulta
1
2
VENDIDO PELA ' TA MAISON DE RÊVE'
Faro, Faro, Conceição e Estoi
Sob consulta
2
1
Partilha o imóvel: Apartamento T2 - 3º Andar
Partilha este imóvel nas tuas redes sociais ou envia diretamente para o email dos teus amigos.
Partilhar por email
Adicione uma nota ao imóvel!
Só você é que vê as notas que adiciona. Os imóveis com notas ficam nos favoritos para os poder consultar mais tarde.
Excluíste o anúncio:
Apartamento T2 - 3º Andar