Pesquisar perto de mim
A aguardar a sua pesquisa
Voltar
Apartamento T1 Venda em São Félix da Marinha,Vila Nova de Gaia
Apartamento T1 Venda em São Félix da Marinha,Vila Nova de Gaia
Apartamento T1 Venda em São Félix da Marinha,Vila Nova de Gaia
Apartamento T1 Venda em São Félix da Marinha,Vila Nova de Gaia
Ver galeria (23)
Ver galeria (23)
Seguir
Partilhar

Apartamento T1 Venda em São Félix da Marinha,Vila Nova de Gaia

Porto, Vila Nova de Gaia, São Félix da Marinha Ver no mapa
270 000 €
1 Quartos
1 WC's
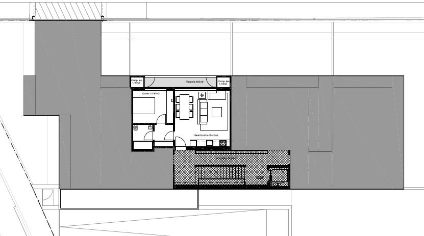
46m2
Área Útil: 46m2
Área Bruta: 79m2
Ano de Construção: 2026
Certificação Energética: A
Estado: Novo

Descrição do anúncio

Apartamento T1 com varanda, lugar de garagem e arrumo, para venda no mais recente empreendimento de São Félix da Marinha.

O edifício insere-se num terreno de declive suave, numa área de transição entre o tecido urbano e a paisagem natural das praias de S. Félix da Marinha.

A solução volumétrica resulta da estratificação de quatro corpos horizontais que se desfasam, em alguns momentos, entre si, criando balanços controlados e sombras marcadas.

As 13 frações habitacionais distribuem-se de forma equilibrada por quatro níveis, garantindo privacidade, exposição solar favorável e vistas amplas sobre o exterior.

A linguagem arquitetonica é contida, baseada em poucos elementos bem definidos. As paredes em betão armado constituem a estrutura e a expressão plástica do edifício.

A materialidade robusta é compensada pela delicadeza dos vãos e varandas continuas, que percorrem os alçados em faixas horizontais.

Estes rasgos permitem uma leitura linear da fachada, reforçando a ideia de horizontalidade e dando unidade ao conjunto.

Os vãos envidraçados asseguram o conforto visual e térmico, ao mesmo tempo que criam uma fronteira difusa entre interior e exterior.

Não se trata de exibir transparência, mas de controlar cuidadosamente o modo como a luz penetra e como a paisagem é enquadrada.

O espaço exterior é tratado com sobriedade: relvado contínuo, muros baixos de contenção e uma sequência vertical de ciprestes que reforçam a verticalidade em contraste com o edifício. A vegetação é usada com parcimónia, como contraponto ao rigor do desenho construído.

O edifício não se impõe ao lugar: emerge dele com naturalidade e disciplina, oferecendo espaços silenciosos, bem proporcionados, capazes de acolher a vida quotidiana com dignidade e clareza.
Situado na Rua Pedras da Maré, em São Félix da Marinha, este empreendimento combina tranquilidade e conveniência.

A poucos minutos da praia e rodeado de serviços essenciais, escolas, comércio e opções de lazer, oferece o equilíbrio perfeito entre a qualidade de vida à beira-mar e a proximidade com os centros urbanos de Espinho, Gaia e Porto.

Disponíveis em tipologias de T1 a T3, com áreas entre 54 e 173 m², os apartamentos distinguem-se pelas dimensões generosas, design contemporâneo e acabamentos de excelência, proporcionando uma experiência de vida confortável e agradável.

Características Gerais

  • Cozinha Equipada
  • Garagem
  • Estacionamento
  • Guarda Roupa
  • Varandas

Galeria do imóvel

Apartamento T1 Venda em São Félix da Marinha,Vila Nova de Gaia
Apartamento T1 Venda em São Félix da Marinha,Vila Nova de Gaia
Apartamento T1 Venda em São Félix da Marinha,Vila Nova de Gaia
Apartamento T1 Venda em São Félix da Marinha,Vila Nova de Gaia
Apartamento T1 Venda em São Félix da Marinha,Vila Nova de Gaia
Apartamento T1 Venda em São Félix da Marinha,Vila Nova de Gaia

Localização do imóvel

Porto, Vila Nova de Gaia, São Félix da Marinha

Referência do anúncio: 4229-F. Última atualização: 08 setembro 2025.

Relatório de preços praticados nos últimos 8 meses

Porto, Vila Nova de Gaia, São Félix da Marinha

Simule um Crédito Habitação

Os dados apresentados são meramente indicativos. Condições gerais
Seguir
Partilhar
Projecto Perfeito - Espinho
AMI 8481
220 ...
Chamada para a rede fixa nacional
Mostrar número
Nome
Email
Contacto
Formato inválido
Agende uma visita
Referência do anúncio: 4229-F.
Última atualização: 08 setembro 2025.
Contactar
Veja também
Anúncios na mesma zona
Apartamento T3 Venda em Aldoar, Foz do Douro e Nevogilde,Porto
Porto, Porto, Aldoar, Foz do Douro e Nevogilde
1 725 000 €
3
1
Apartamento T3 Venda em Aldoar, Foz do Douro e Nevogilde,Porto
Porto, Porto, Aldoar, Foz do Douro e Nevogilde
1 750 000 €
3
1
Apartamento T4 Venda em Aldoar, Foz do Douro e Nevogilde,Porto
Porto, Porto, Aldoar, Foz do Douro e Nevogilde
2 050 000 €
4
1
Apartamento T3 Venda em Aldoar, Foz do Douro e Nevogilde,Porto
Porto, Porto, Aldoar, Foz do Douro e Nevogilde
1 850 000 €
3
1
Apartamento T4 Venda em Aldoar, Foz do Douro e Nevogilde,Porto
Porto, Porto, Aldoar, Foz do Douro e Nevogilde
1 920 000 €
4
1
Apartamento T3 Venda em Aldoar, Foz do Douro e Nevogilde,Porto
Porto, Porto, Aldoar, Foz do Douro e Nevogilde
1 600 000 €
3
1
Apartamento T1+1 Venda em Canidelo,Vila Nova de Gaia
Porto, Vila Nova de Gaia, Canidelo
199 900 €
1
Apartamento T1 Venda em São Mamede de Infesta e Senhora da Hora,Matosinhos
Porto, Matosinhos, São Mamede de Infesta e Senhora da Hora
179 900 €
1
2
Apartamento T3 Venda em Aldoar, Foz do Douro e Nevogilde,Porto
Porto, Porto, Aldoar, Foz do Douro e Nevogilde
1 600 000 €
3
1
Apartamento T2 Venda em Mafamude e Vilar do Paraíso,Vila Nova de Gaia
Porto, Vila Nova de Gaia, Mafamude e Vilar do Paraíso
390 000 €
2
2
1
Partilha o imóvel: Apartamento T1 Venda em São Félix da Marinha,Vila Nova de Gaia
Partilha este imóvel nas tuas redes sociais ou envia diretamente para o email dos teus amigos.
Partilhar por email
Adicione uma nota ao imóvel!
Só você é que vê as notas que adiciona. Os imóveis com notas ficam nos favoritos para os poder consultar mais tarde.
Excluíste o anúncio:
Apartamento T1 Venda em São Félix da Marinha,Vila Nova de Gaia