Pesquisar perto de mim
A aguardar a sua pesquisa
Voltar
Apartamento T1 Venda em Cedofeita, Santo Ildefonso, Sé, Miragaia, São Nicolau e Vitória,Porto
Apartamento T1 Venda em Cedofeita, Santo Ildefonso, Sé, Miragaia, São Nicolau e Vitória,Porto
Apartamento T1 Venda em Cedofeita, Santo Ildefonso, Sé, Miragaia, São Nicolau e Vitória,Porto
Apartamento T1 Venda em Cedofeita, Santo Ildefonso, Sé, Miragaia, São Nicolau e Vitória,Porto
Ver galeria (10)
Ver galeria (10)
Seguir
Partilhar

Apartamento T1 Venda em Cedofeita, Santo Ildefonso, Sé, Miragaia, São Nicolau e Vitória,Porto

Porto, Porto, Cedofeita, Santo Ildefonso, Sé, Miragaia, São Nicolau e Vitória Ver no mapa
Sob consulta
1 Quartos
1 WC's
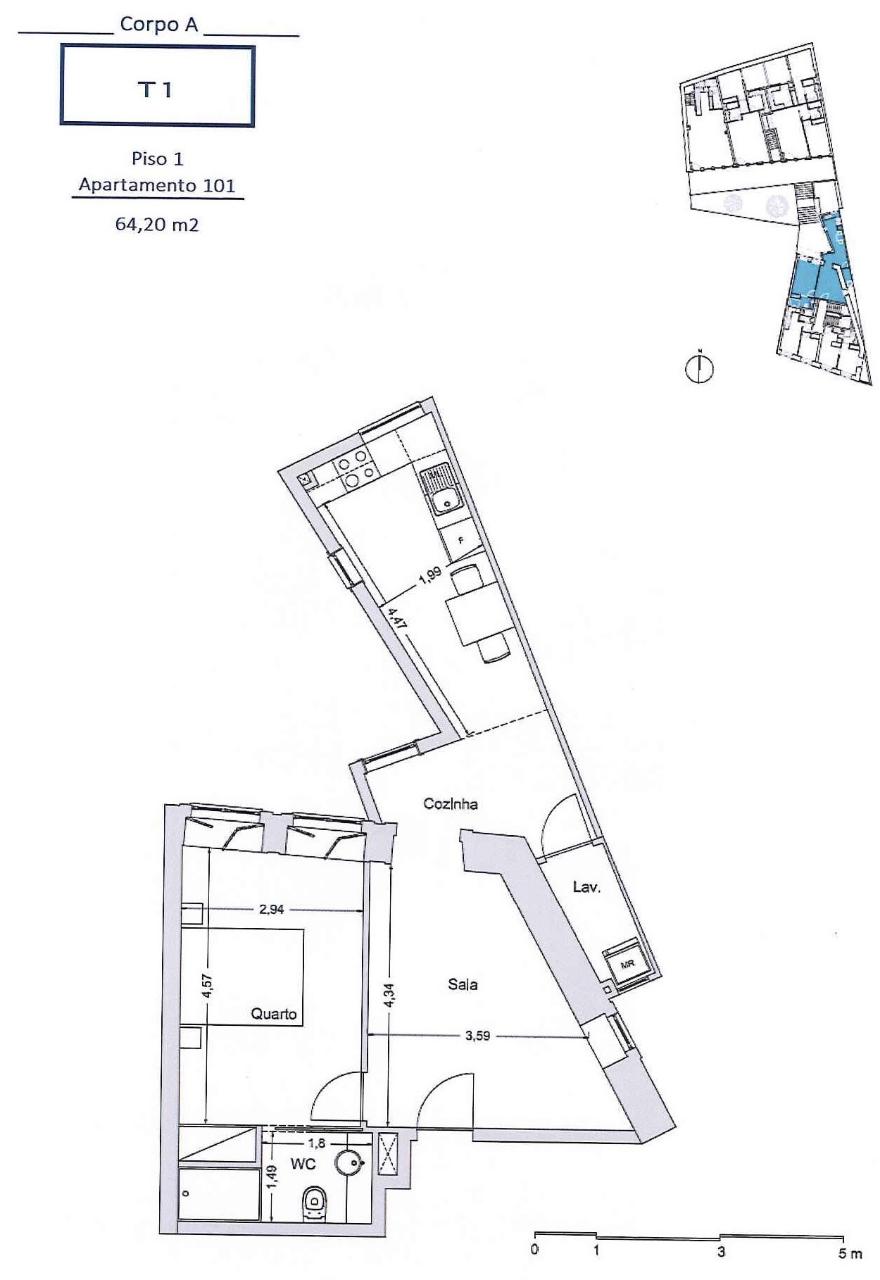
Área Bruta: 64m2
Certificação Energética: N/A
Estado: Novo

Descrição do anúncio

Apartamento localizado em pleno centro da cidade, numa das principais artérias do seu centro histórico.

Este projecto prima pelo uso de materiais de elevada qualidade e pela sua excelente localização, próxima de inúmeros pontos turísticos, em zona de forte comércio, mas também a apenas 2 minutos da cidade de Vila nova de Gaia e da Ribeira.

O EDIFÍCIO FORMOSA PARK é composto por 14 apartamentos e um estabelecimento comercial, com diferentes tipologias e distribuídos por dois edifícios, separados por um magnífico jardim interior.

Características da fracção:

- Apartamento T1, no Piso 1 do edifício A
- Área de 64,20 m2
- Cozinha totalmente equipada
- Pré-instalação de ar condicionado

Para além deste imóvel, dispomos de mais imóveis que de certeza encaixam naquilo que pretende.
Mais informações sobre este ou outro imóvel e marcações de visita, contacte-nos.

Galeria do imóvel

Apartamento T1 Venda em Cedofeita, Santo Ildefonso, Sé, Miragaia, São Nicolau e Vitória,Porto
Apartamento T1 Venda em Cedofeita, Santo Ildefonso, Sé, Miragaia, São Nicolau e Vitória,Porto
Apartamento T1 Venda em Cedofeita, Santo Ildefonso, Sé, Miragaia, São Nicolau e Vitória,Porto
Apartamento T1 Venda em Cedofeita, Santo Ildefonso, Sé, Miragaia, São Nicolau e Vitória,Porto
Apartamento T1 Venda em Cedofeita, Santo Ildefonso, Sé, Miragaia, São Nicolau e Vitória,Porto
Apartamento T1 Venda em Cedofeita, Santo Ildefonso, Sé, Miragaia, São Nicolau e Vitória,Porto

Localização do imóvel

Porto, Porto, Cedofeita, Santo Ildefonso, Sé, Miragaia, São Nicolau e Vitória

Referência do anúncio: PRTOR/00172. Última atualização: 24 maio 2023.

Relatório de preços praticados nos últimos 8 meses

Porto, Porto, Cedofeita, Santo Ildefonso, Sé, Miragaia, São Nicolau e Vitória

Simule um Crédito Habitação

Os dados apresentados são meramente indicativos. Condições gerais
Seguir
Partilhar
Chave Nova - Mediação Imobiliária, Lda
AMI 7142
223 ...
Chamada para a rede fixa nacional
Mostrar número
Nome
Email
Contacto
Formato inválido
Agende uma visita
Referência do anúncio: PRTOR/00172.
Última atualização: 24 maio 2023.
Contactar
Veja também
Anúncios na mesma zona
Apartamento T2 Venda em Cedofeita, Santo Ildefonso, Sé, Miragaia, São Nicolau e Vitória,Porto
Porto, Porto, Cedofeita, Santo Ildefonso, Sé, Miragaia, São Nicolau e Vitória
548 080 €
2
1
APARTAMENTO T1 DUPLEX PARANHOS
Porto, Porto, Paranhos
250 000 €
1
2
Apartamento T2 Venda em Cedofeita, Santo Ildefonso, Sé, Miragaia, São Nicolau e Vitória,Porto
Porto, Porto, Cedofeita, Santo Ildefonso, Sé, Miragaia, São Nicolau e Vitória
552 760 €
2
1
Apartamento T3 com vista sobre a Foz do Douro, Gaia
Porto, Vila Nova de Gaia, Madalena
1 150 000 €
3
3
Apartamento T1+1 com varanda
Porto, Porto, Cedofeita, Santo Ildefonso, Sé, Miragaia, São Nicolau e Vitória
524 000 €
1
2
Apartamento T1 na zona histórica do Porto
Porto, Porto, Cedofeita, Santo Ildefonso, Sé, Miragaia, São Nicolau e Vitória
491 000 €
1
2
Apartamento T1 com lugar de garagem à Praia de Canidelo
Porto, Vila Nova de Gaia, Canidelo
280 000 €
1
1
Apartamento T1 Venda em Cedofeita, Santo Ildefonso, Sé, Miragaia, São Nicolau e Vitória,Porto
Porto, Porto, Cedofeita, Santo Ildefonso, Sé, Miragaia, São Nicolau e Vitória
399 500 €
1
1
Apartamento T2 Venda em Santa Marinha e São Pedro da Afurada,Vila Nova de Gaia
Porto, Vila Nova de Gaia, Santa Marinha e São Pedro da Afurada
430 000 €
2
1
Apartamento T0 Venda em Cedofeita, Santo Ildefonso, Sé, Miragaia, São Nicolau e Vitória,Porto
Porto, Porto, Cedofeita, Santo Ildefonso, Sé, Miragaia, São Nicolau e Vitória
273 350 €
1
Partilha o imóvel: Apartamento T1 Venda em Cedofeita, Santo Ildefonso, Sé, Miragaia, São Nicolau e Vitória,Porto
Partilha este imóvel nas tuas redes sociais ou envia diretamente para o email dos teus amigos.
Partilhar por email
Adicione uma nota ao imóvel!
Só você é que vê as notas que adiciona. Os imóveis com notas ficam nos favoritos para os poder consultar mais tarde.
Excluíste o anúncio:
Apartamento T1 Venda em Cedofeita, Santo Ildefonso, Sé, Miragaia, São Nicolau e Vitória,Porto