Pesquisar perto de mim
A aguardar a sua pesquisa
Voltar
Apartamento t1 | “gaia premium” – gaia, porto
Apartamento t1 | “gaia premium” – gaia, porto
Apartamento t1 | “gaia premium” – gaia, porto
Apartamento t1 | “gaia premium” – gaia, porto
Ver galeria (13)
Ver galeria (13)
Seguir
Partilhar

Apartamento t1 | “gaia premium” – gaia, porto

Porto, Vila Nova de Gaia, Oliveira do Douro Ver no mapa
290 000 €
1 Quartos
1 WC's
61m2
Área Útil: 61m2
Área Bruta: 61m2
Certificação Energética: A
Estado: Novo

Descrição do anúncio

No coração de Vila Nova de Gaia, integrado na prestigiada Área Metropolitana do Porte, nasce o “Gaia Premium” - um empreendimento moderno que se distingue pela sua elegância e atenção ao detalhe. Um projeto concebido para proporcionar uma experiência habitacional de excelência, que alia conforto, funcionalidade e sofisticação num só lugar.
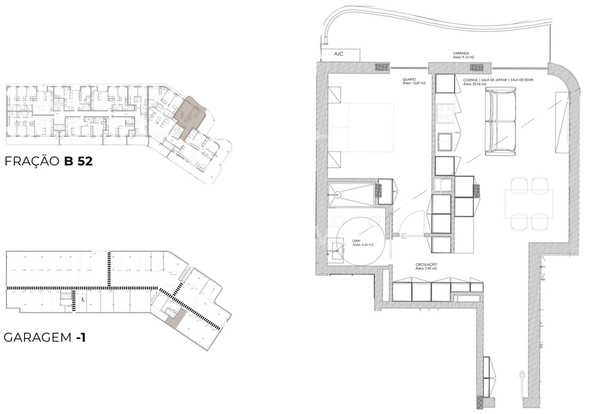
Situado no quinto andar, este elegante apartamento T1 dispõe de um quartos, um  WC,  uma ampla sala de estar e jantar em ligação com a cozinha em conceito “open space”. Dispõe ainda de hall de entrada, varanda e garagem aberta para um automóvel.
Áreas do Imóvel:
Área Total – 61,0 m2;
Área Bruta Acima do Solo – 77, 9 m2;
Área Bruta da Varanda – 16,9 m2;Características Interiores do Imóvel:

Caixilharia em alumínio com sistema de correr;
Estores exteriores de enrolar com isolamento térmico;
Instalação de Ar Condicionado;
Bomba de Calor para aquecimento das águas sanitárias;
Seca-toalhas elétrico;
Cozinha equipada com forno elétrico, placa de vitrocerâmica e exaustor;
Orientação solar: Nascente. Outros Elementos e equipamentos do Imóvel
Estacionamento privativo;
Garagem com portões automáticos e motorizados;
Intercomunicador e câmara de vídeo na entrada principal do edifício;
Elevador elétrico;
Campo de padel. Localização e Área envolvente  Localizado numa zona privilegiada de Vila Nova de Gaia, este imóvel beneficia de uma envolvente valorizada, com acesso rápido todos os serviços essenciais e às principais vias rodoviárias. Uma localização que alia conveniência com a proximidade a alguns dos pontos mais emblemáticos da região 
a 4 minutos – Escola Básico da Outeiro;
a 7 minutos – Gaia Shopping;
a 7 minutos – Centro Hospitalar de Vila Nova de Gaia;
a 8 minutos - Ponte Luís I;
a 9 minutos – Estádio do Dragão:
a 20 minutos – Aeroporto Francisco Sá Carneiro Mais do que uma habitação, este apartamento representa uma escolha segura para quem valoriza qualidade de vida, conforto e localização estratégica — seja para residência própria ou investimento. Não perca esta oportunidade única — venha descobrir o “Gaia Premium” e agende já a sua visita.


Predimed Imobiliária, Mediação Imobiliária, Lda.
Avenida Brasil 43, 12º Andar, 1700-062 Lisboa
Licença AMI nº 22503
Pessoa Coletiva nº 517 239 345
Seguro Responsabilidade Civil: Nº de Apólice RC65379424 Fidelidade

Características Gerais

  • Ar Condicionado
  • Video Porteiro
  • Cozinha Equipada
  • Garagem
  • Elevador
  • Guarda Roupa
  • Varandas
  • Nº de Estacionamentos 1
  • Bomba de Calor

Galeria do imóvel

Apartamento t1 | “gaia premium” – gaia, porto
Apartamento t1 | “gaia premium” – gaia, porto
Apartamento t1 | “gaia premium” – gaia, porto
Apartamento t1 | “gaia premium” – gaia, porto
Apartamento t1 | “gaia premium” – gaia, porto
Apartamento t1 | “gaia premium” – gaia, porto

Localização do imóvel

Porto, Vila Nova de Gaia, Oliveira do Douro

Referência do anúncio: 059332. Última atualização: 24 março 2026.

Relatório de preços praticados nos últimos 8 meses

Porto, Vila Nova de Gaia, Oliveira do Douro

Simule um Crédito Habitação

Os dados apresentados são meramente indicativos. Condições gerais
Seguir
Partilhar
Predimed Imobiliaria Mediacao Imobiliaria Lda
AMI 22503
Nome
Email
Contacto
Formato inválido
Agende uma visita
Referência do anúncio: 059332.
Última atualização: 24 março 2026.
Contactar
Veja também
Anúncios na mesma zona
Excelente T1+1 junto a Ponte Dom Luis I na cidade do Porto com Rentabilidade Garantida
Porto, Vila Nova de Gaia, Santa Marinha e São Pedro da Afurada
338 000 €
1
1
T3 Duplex, de luxo em Serralves para venda
Porto, Porto, Lordelo do Ouro e Massarelos
512 500 €
3
3
1
T6 Duplex recuado com terraço Antas- Avenida Combatentes/Praça Velasquez
Porto, Porto, Paranhos
675 000 €
6
4
Apartamento T3 Renovado & Equipado em Águas Santas
Porto, Maia, Cidade da Maia
310 000 €
3
2
1
T3 Novo com Varanda e Terraço, para venda, em Vila Nova de Gaia, Avenida da República
Porto, Vila Nova de Gaia, Mafamude e Vilar do Paraíso
526 870 €
3
2
1
T3+1 Novo com Terraço, para venda, em Vila Nova de Gaia, Avenida da República
Porto, Vila Nova de Gaia, Mafamude e Vilar do Paraíso
616 453 €
4
3
1
Apartamento t4 | são joão premium – pedrouços, maia
Porto, Maia, Pedrouços
429 000 €
4
3
1
Apartamento T2 Venda em Valongo,Valongo
Porto, Valongo, Valongo
195 000 €
2
2
T2 em condomínio fechado (3 edifícios) junto ao Parque do Covelo, Porto
Porto, Porto, Paranhos
325 000 €
2
2
1
Apartamento T2 - Empreendimento Bloco de apartamentos OCTE
Porto, Matosinhos, Matosinhos e Leça da Palmeira
680 000 €
2
2
Partilha o imóvel: Apartamento t1 | “gaia premium” – gaia, porto
Partilha este imóvel nas tuas redes sociais ou envia diretamente para o email dos teus amigos.
Partilhar por email
Adicione uma nota ao imóvel!
Só você é que vê as notas que adiciona. Os imóveis com notas ficam nos favoritos para os poder consultar mais tarde.
Excluíste o anúncio:
Apartamento t1 | “gaia premium” – gaia, porto