Pesquisar perto de mim
A aguardar a sua pesquisa
Voltar
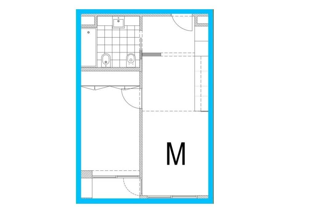
Apartamento T1 com garagem e arrumo em construção em Pedrouços
Apartamento T1 com garagem e arrumo em construção em Pedrouços
Apartamento T1 com garagem e arrumo em construção em Pedrouços
Apartamento T1 com garagem e arrumo em construção em Pedrouços
Ver galeria (6)
Ver galeria (6)
Seguir
Partilhar

Apartamento T1 com garagem e arrumo em construção em Pedrouços

Porto, Maia, Pedrouços Ver no mapa
212 000 €
1 Quartos
1 WC's
43m2
Área Útil: 43m2
Área Bruta: 44m2
Certificação Energética: A
Estado: Em Construção

Descrição do anúncio

Apartamento T1 com garagem e arrumo em construção em Pedrouços.
Empreendimento em construçao junto à  Estrada da Circunvalação, Areosa, Hospital de S. João e Polo Universitário em Pedrouços.
MAPA DE MATERIAIS E ACABAMENTOS 
TECTOS INTERIORES 
- Tectos falsos Interiores em placas de gesso cartonado do tipo "Pladur", incluindo estrutura ri´gida metálica, sendo hidrofugado nos banhos. 
PAREDES INTERIORES APARTAMENTOS 
- Revestimento de paredes interiores, executados com argamassas estucadas a "seral", do tipo "Ca^mara" aplicada directamente ás paredes interiores com acabamento liso, pronto a receber a pintura. 
- Revestimento em Mosaico cera^mico rectificado, de qualidade e design contempora^neo, tipo “Calacatta” assentes com cimento cola de 1ª qualidade, com os devidos cortes e ajustes, nos quartos de banho. 
PAREDES INTERIORES ÁREAS COMUNS 
- Revestimento de paredes interiores, armários técnicos, etc, e em MDF folheado a madeira, nos corredores e hall de entrada do Prédio. 
PAVIMENTOS INTERIORES APARTAMENTOS 
- Revestimento em Mosaico cera^mico rectificado, de qualidade e design contempora^neo, assentes com cimento cola de 1a qualidade, com os devidos cortes e ajustes, nos quartos de banho.
- Colocac¸a~o de soalho, colado, flutuante tipo Finsa ou Hidrocork, ou flutuante multicamadas de Freixo ou outra madeira clara, de qualidade, nas salas e quartos.
PAVIMENTOS INTERIORES ÁREAS COMUNS 
- Revestimento do pavimento da garagem, arrumos e compartimentos técnicos com betonilha em argamassa de cimento, incluindo endurecedor de superfi´cie do tipo "Rockland: Rocksol" de cor cinza grafite com acabamento vassourado nas rampas. 
- Colocac¸a~o de pavimento em mosaico cerâmico até 60x60 de espessura no Hall de entrada e corredores dos pisos superiores. 
- Colocac¸a~o de material cerâmico na caixa de escadas, no compartimento de Resi´duos So´lidos e Sala de Condomi´nio. 
PAVIMENTO DOS TERRAC¸OS ACESSIVEIS
- Lajetas de beta~o pré-fabricado assentes sobre apoios reguláveis. 
PAVIMENTO DAS VARANDAS
- Material cerâmico “DOMINO” Prodeck Brown, ou equivalente.
VA~OS EXTERIORES 
- Montagem de caixilhos envidrac¸ados exteriores de correr, fixos ou oscilobatentes, em perfis de alumi´nio da marca Sosoares ou SCA Alumínios, ou equivalente, acabamento lacado cinza, Vidros duplos Saint-Gobain, cumprindo os requisitos do Projecto Térmico, incluindo soleiras em alumi´nio, vedac¸a~o, equipadas com todas as ferragens da marca. 
GUARDAS EXTERIORES DOS VA~OS DA FACHADA PRINCIPAL 
- Colocac¸a~o de guardas exteriores , executadas em perfis de ferro metalizado, e pintado à cor da caixilharia, incluindo todos os elementos e acesso´rios necessários à sua fixac¸a~o e montagem. 
PORTA~O DE ACESSO Á GARAGEM 
- Montagem do porta~o de acesso á garagem, tipo Refral, seccionado, motorizado, em alumi´nio, equipado com todas as ferragens, elementos e acesso´rios necessários ao seu funcionamento. 
PORTAS DE ENTRADA NOS APARTAMENTOS 
- Montagem de porta de seguranc¸a, na Entrada dos apartamentos, executadas conforme desenhos respectivos, revestidas pela face interior a MDF pintado, equipada com todas as ferragens. 
PORTAS INTERIORES 
- Montagem de portas interiores, de abrir ou de correr, em MDF pintado, incluindo aro, guarnic¸o~es, e apainelados de remate, equipadas com todas as ferragens, elementos e acesso´rios necessários ao seu funcionamento. 
RODAPÉS 
- Colocac¸a~o de rodapés em MDF Pintado, incluindo todos os cortes e remates, conforme desenhos e descric¸a~o do Caderno de Encargos. 
ARMÁRIOS 
- Montagem de armários, executados com portas e prateleiras em MDF Pintado, forro em “melamina” com acabamento tipo “Linho Cancu´n”, equipado com todas as ferragens e constitui´do com todos os elementos conforme desenho respectivo. 
COZINHAS 
- Mobiladas com Armários com acabamento laminado de elevada resistência, Tampos em Quartz compac White da Royal Stone ou equivalente, equipadas com Placa, Forno, Máquinas de Lavar Louc¸a, Combinado e Micro-Ondas. 
LOUC¸AS SANITÁRIAS 
- Sanitas e Bidés suspensos "SANITANA-POP", ou equivalente com todos os acesso´rios de montagem, sistema de fixac¸a~o "Kombifix", e todos os elementos e acesso´rios necessários á sua montagem, fixac¸a~o e ligac¸a~o. 
- Lavato´rios incluídos no conjunto de Armário KASA AXIS 80 Branco, ou equivalente. 
- Base de duche "VITA" de 1700x700x50 rectangular lisa , ou equivalente, incluindo todos os elementos e acesso´rios necessários á sua montagem, fixac¸a~o e ligac¸a~o, no banho da suite. 
PAREDES E ALVENARIAS 
 - Bloco Térmico nas Alvenarias Exteriores com ETICS e paredes de tijolo cera^mico nas diviso´rias interiores, com isolamento entre fogos e elementos individualizados. 
CLIMATIZAC¸A~O 
- Pré-Instalac¸a~o de Ar condicionado 
INSTALAC¸O~ES ELÉCTRICAS 
- Vi´deo-Porteiro, Estores Eléctricos e possibilidade de Posto para tomada eléctrica para automo´veis. 
Final da construção em Dezembro de 2026.
Faça a sua escolha com Rigor!

-----------

As vantagens de recorrer aos nossos serviços.
A...

Características Gerais

  • Ar Condicionado
  • Garagem
  • Guarda Roupa
  • Varandas

Galeria do imóvel

Apartamento T1 com garagem e arrumo em construção em Pedrouços
Apartamento T1 com garagem e arrumo em construção em Pedrouços
Apartamento T1 com garagem e arrumo em construção em Pedrouços
Apartamento T1 com garagem e arrumo em construção em Pedrouços
Apartamento T1 com garagem e arrumo em construção em Pedrouços
Apartamento T1 com garagem e arrumo em construção em Pedrouços

Localização do imóvel

Porto, Maia, Pedrouços

Referência do anúncio: PL3239M. Última atualização: 20 novembro 2025.

Relatório de preços praticados nos últimos 8 meses

Porto, Maia, Pedrouços

Simule um Crédito Habitação

Os dados apresentados são meramente indicativos. Condições gerais
Seguir
Partilhar
Mapa de Rigor
AMI 8793
229 ...
Chamada para a rede fixa nacional
Mostrar número
Nome
Email
Contacto
Formato inválido
Agende uma visita
Referência do anúncio: PL3239M.
Última atualização: 20 novembro 2025.
Contactar
Veja também
Anúncios na mesma zona
Apartamento T3 Venda em Santa Marinha e São Pedro da Afurada,Vila Nova de Gaia
Porto, Vila Nova de Gaia, Santa Marinha e São Pedro da Afurada
765 000 €
3
3
1
Apartamento T2 Venda em São Félix da Marinha,Vila Nova de Gaia
Porto, Vila Nova de Gaia, São Félix da Marinha
410 000 €
2
2
1
Apartamento T2 Venda em Penafiel,Penafiel
Porto, Penafiel, Penafiel
295 000 €
2
1
1
Apartamento T3 Venda em Santa Marinha e São Pedro da Afurada,Vila Nova de Gaia
Porto, Vila Nova de Gaia, Santa Marinha e São Pedro da Afurada
685 000 €
3
3
1
Apartamento T2 último piso - Vista mar - Varanda Sul - 3 Lugares de garagem + Arrumos
Porto, Vila Nova de Gaia, São Félix da Marinha
383 000 €
2
2
1
Apartamento T2 Venda em Grijó e Sermonde,Vila Nova de Gaia
Porto, Vila Nova de Gaia, Grijó e Sermonde
325 000 €
2
2
1
Apartamento T3 Venda em Santa Marinha e São Pedro da Afurada,Vila Nova de Gaia
Porto, Vila Nova de Gaia, Santa Marinha e São Pedro da Afurada
800 000 €
3
3
1
Apartamento T3 Venda em Santa Marinha e São Pedro da Afurada,Vila Nova de Gaia
Porto, Vila Nova de Gaia, Santa Marinha e São Pedro da Afurada
665 000 €
3
3
1
Apartamento T3 Venda em Santa Marinha e São Pedro da Afurada,Vila Nova de Gaia
Porto, Vila Nova de Gaia, Santa Marinha e São Pedro da Afurada
735 000 €
3
3
1
Apartamento T3 Venda em Santa Marinha e São Pedro da Afurada,Vila Nova de Gaia
Porto, Vila Nova de Gaia, Santa Marinha e São Pedro da Afurada
730 000 €
3
3
1
Partilha o imóvel: Apartamento T1 com garagem e arrumo em construção em Pedrouços
Partilha este imóvel nas tuas redes sociais ou envia diretamente para o email dos teus amigos.
Partilhar por email
Adicione uma nota ao imóvel!
Só você é que vê as notas que adiciona. Os imóveis com notas ficam nos favoritos para os poder consultar mais tarde.
Excluíste o anúncio:
Apartamento T1 com garagem e arrumo em construção em Pedrouços