Pesquisar perto de mim
A aguardar a sua pesquisa
Voltar
Apartamento T1+1, em construção, Empreendimento Casas do Horto.
Apartamento T1+1, em construção, Empreendimento Casas do Horto.
Apartamento T1+1, em construção, Empreendimento Casas do Horto.
Apartamento T1+1, em construção, Empreendimento Casas do Horto.
Ver galeria (16)
Ver galeria (16)
Seguir
Partilhar

Apartamento T1+1, em construção, Empreendimento Casas do Horto.

Porto, Maia, Pedrouços Ver no mapa
259 500 €
1 Quartos
1 WC's
77m2
Área Útil: 77m2
Área Bruta: 88m2
Ano de Construção: 2026
Certificação Energética: A
Estado: Em Construção

Descrição do anúncio

Apartamento T1+1, em construção, Empreendimento Casas do Horto.

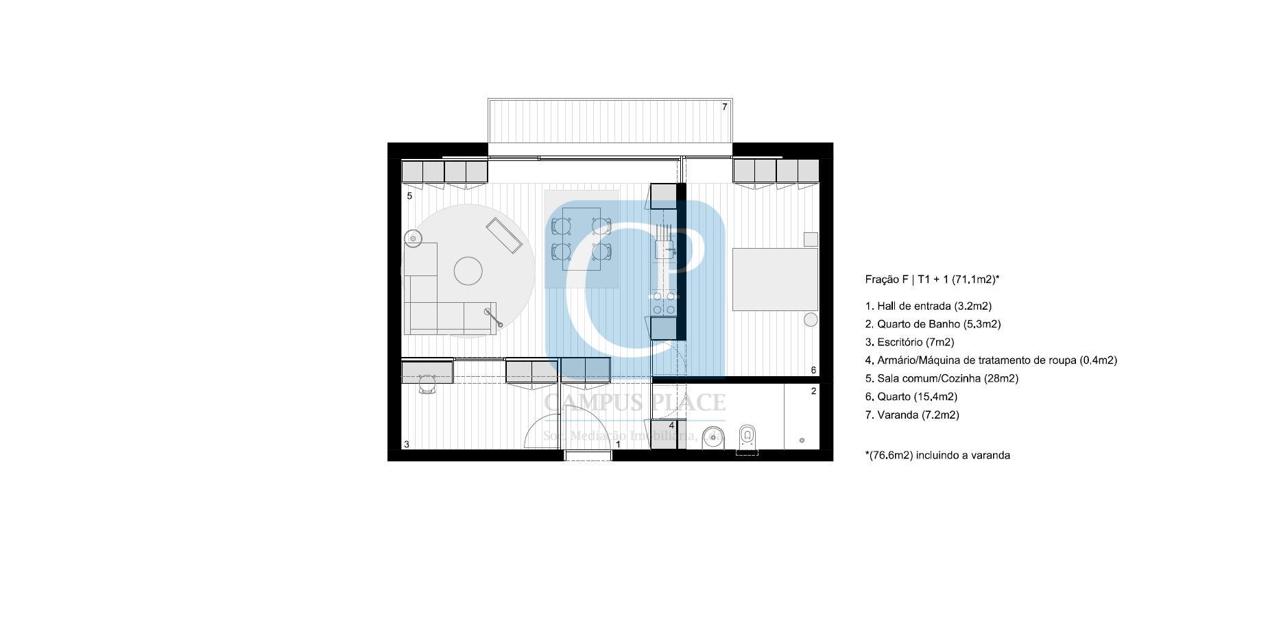
Apartamento T1+1, inserido no Empreendimento Casas do Horto, Pedrouços, Maia, junto á Liga Portuguesa Contra Cancro.

Imóvel de tipologia T1+1 com uma área de 70 mt2, ao nível do segundo piso, de uma frente, que se divide em: hall de entrada com roupeiro embutido, cozinha tipo Kitchenet mobilada e equipada (placa, frigorifico tipo combinado, forno, exaustor), sala comum, o +1 com roupeiro embutido, quarto com roupeiro embutido, varanda quer na sala quer no quarto, casa de banho completa e lugar de garagem.

Outros acabamentos:
Sistema de bomba de calor de aquecimento de águas, caixilharia com rutura termica e vidro duplo, portas de segurança, ventilação mecânica, elevador, portão de garagem colectiva motorizado, instalação de ar condicionado, video porteiro, cozinha equipada, base de duche e resguardo,...

Apartamento inserido no prédio "Casas do Horto" com seis frações, ficando pronto em junho de 2026, excelentes áreas e acabamentos, inserido em zona de referência, junto ao Polo Universitario, próximo de transportes públicos (Estação de Metro Hospital de S. João e Autocarros), zonas comerciais, várias universidades (Faculdade de Economia, Faculdade de Engenharia, Portucalense, Universidade Fernando Pessoa), Hospital de São João e  IPO, com fáceis acessos à autoestrada (A3 e A4) e às principais vias da cidade (VCI e Circunvalação).

Marque já a sua visita.

Entre em contacto connosco! 
A nossa agência conta com consultores imobiliários experientes que estão ao seu lado para que, juntos, possa encontrar o que melhor satisfaz as suas expectativas e aspirações. 
Temos ainda uma equipa de BackOffice que lhe dará o apoio e aconselhamento necessário em todo o processo de compra/venda/arrendamento, entre outros, passando por acompanhar e elucidar qualquer dúvida no que respeita à vertente financeira, legal, logística ou contratual. 
Sabemos que no mundo do negócio onde as mudanças, quer de mercado, quer financeiras, são uma constante é crucial o acompanhamento personalizado em cada etapa e por isso tentamos sempre alertar os nossos clientes para que, de forma consciente, tomem as melhores decisões. 
Para a Campus Place, acompanhamento é regra! 
Visite-nos e descubra por si, a dedicação que colocamos em cada um dos nossos clientes. 
Somos uma agência imobiliária que não se preocupa apenas em satisfazer as necessidades dos nossos clientes, queremos EXCEDÊ-LAS, para que esta marca seja o nosso melhor marketing.

Características Gerais

  • Ar Condicionado
  • Cozinha Equipada
  • Garagem
  • Guarda Roupa

Galeria do imóvel

Apartamento T1+1, em construção, Empreendimento Casas do Horto.
Apartamento T1+1, em construção, Empreendimento Casas do Horto.
Apartamento T1+1, em construção, Empreendimento Casas do Horto.
Apartamento T1+1, em construção, Empreendimento Casas do Horto.
Apartamento T1+1, em construção, Empreendimento Casas do Horto.
Apartamento T1+1, em construção, Empreendimento Casas do Horto.

Localização do imóvel

Porto, Maia, Pedrouços

Referência do anúncio: CP4238. Última atualização: 17 março 2026.

Relatório de preços praticados nos últimos 8 meses

Porto, Maia, Pedrouços

Simule um Crédito Habitação

Os dados apresentados são meramente indicativos. Condições gerais
Seguir
Partilhar
Campus Place Lda
AMI 14411
924 ...
Chamada para a rede fixa nacional
Mostrar número
Nome
Email
Contacto
Formato inválido
Agende uma visita
Referência do anúncio: CP4238.
Última atualização: 17 março 2026.
Contactar
Veja também
Anúncios na mesma zona
Apartamento T1 Venda em Mafamude e Vilar do Paraíso,Vila Nova de Gaia
Porto, Vila Nova de Gaia, Mafamude e Vilar do Paraíso
136 900 €
1
1
Apartamento T2 Venda em Valongo,Valongo
Porto, Valongo, Valongo
195 000 €
2
2
T3 Duplex, de luxo em Serralves para venda
Porto, Porto, Lordelo do Ouro e Massarelos
512 500 €
3
3
1
T2 em condomínio fechado (3 edifícios) junto ao Parque do Covelo, Porto
Porto, Porto, Paranhos
325 000 €
2
2
1
T3+1 Novo com Terraço, para venda, em Vila Nova de Gaia, Avenida da República
Porto, Vila Nova de Gaia, Mafamude e Vilar do Paraíso
616 453 €
4
3
1
Apartamento T1 Venda em Mafamude e Vilar do Paraíso,Vila Nova de Gaia
Porto, Vila Nova de Gaia, Mafamude e Vilar do Paraíso
205 000 €
1
1
T3 Novo com Varanda e Terraço, para venda, em Vila Nova de Gaia, Avenida da República
Porto, Vila Nova de Gaia, Mafamude e Vilar do Paraíso
526 870 €
3
2
1
Apartamento T3 Venda em Canidelo,Vila Nova de Gaia
Porto, Vila Nova de Gaia, Canidelo
525 000 €
3
1
Apartamento T3 Venda em Canidelo,Vila Nova de Gaia
Porto, Vila Nova de Gaia, Canidelo
535 000 €
3
1
Apartamento T2 Venda em Valongo,Valongo
Porto, Valongo, Valongo
138 000 €
2
1
Partilha o imóvel: Apartamento T1+1, em construção, Empreendimento Casas do Horto.
Partilha este imóvel nas tuas redes sociais ou envia diretamente para o email dos teus amigos.
Partilhar por email
Adicione uma nota ao imóvel!
Só você é que vê as notas que adiciona. Os imóveis com notas ficam nos favoritos para os poder consultar mais tarde.
Excluíste o anúncio:
Apartamento T1+1, em construção, Empreendimento Casas do Horto.