Pesquisar perto de mim
A aguardar a sua pesquisa
Voltar
Apartamento T1+1 em Aveiro
Apartamento T1+1 em Aveiro
Apartamento T1+1 em Aveiro
Apartamento T1+1 em Aveiro
Ver galeria (18)
Ver galeria (18)
Seguir
Partilhar

Apartamento T1+1 em Aveiro

Aveiro, Aveiro, Esgueira Ver no mapa
290 000 €
2 Quartos
2 WC's
75m2
Área Útil: 75m2
Área Bruta: 102m2
Certificação Energética: B
Estado: Em Construção

Descrição do anúncio

Apartamento T1+1 em Empreendimento Novo em Aveiro

Descubra este Apartamento T1+1 em Aveiro, inserido num empreendimento novo e moderno, pensado para quem valoriza conforto, eficiência energética e qualidade de vida. Um imóvel que alia arquitetura contemporânea, áreas bem distribuídas e soluções tecnológicas ajustadas às exigências atuais.

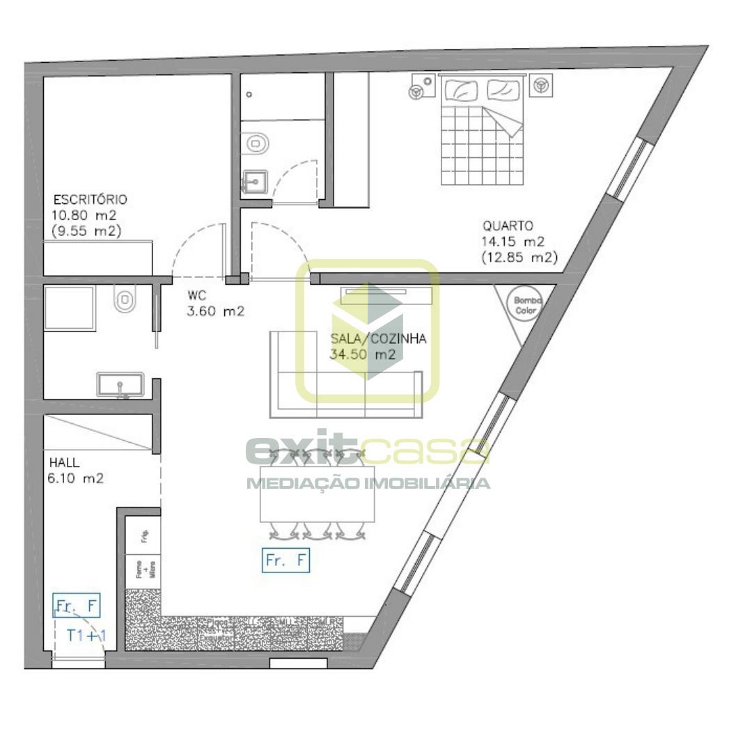
O apartamento destaca-se pela zona social em open space, integrando sala e cozinha equipada, criando um ambiente luminoso e acolhedor. Dispõe ainda de wc completo, escritório, suite e lugar de garagem, garantindo privacidade e praticidade no dia a dia.

Composição do Imóvel
- Sala e cozinha equipada em open space
- Suite
- Escritório
- WC completo
- Lugar de garagem

Sobre o Empreendimento
- Empreendimento novo com 16 frações
- Tipologias T1 a T3 Duplex
- Ar condicionado
- Bomba de calor
- Pré-instalação de painéis solares
- Pré-instalação para carregamento de viaturas elétricas
- Construção moderna com foco em eficiência energética e sustentabilidade

Localização – Aveiro
Situado numa zona em crescimento e valorização, este apartamento beneficia de:
- Bons acessos às principais vias
- Proximidade a comércio, serviços e escolas
- Fácil ligação ao Centro de Aveiro
- Envolvente tranquila e urbana

Características da zona:
Esgueira é uma freguesia do Concelho de Aveiro, constituída por vários lugares: Senhor do Álamo/Cruzeiro, Bairro do Vouga, Agras do Norte, Cabo Luís, Bela Vista, Taboeira, Olho D'Água, Quinta do Simão, Mataduços e Paço.
Na sua área envolvente é possível encontrar uma oferta diversificada de restauração e lazer, bem como de escolas (Escola Secundária Jaime Magalhães Lima, Escola 2º e 3º Ciclo Aires Barbosa, Colégio Português), espaços desportivos (Parque Desportivo de Taboeira, Polidesportivo de Mataduços e da Bela Vista e Estádio Municipal de Aveiro), zonas comerciais (Pingo Doce, Mercadona, Aveiro Center e Retail Park), transportes públicos (Terminal Rodoviário e Ferroviário de Aveiro). Fica a 15min das Praias da Barra e Costa Nova e a 5min do Centro da Cidade.

O imóvel encontra-se a 14km da praia e 80km do aeroporto.

Exitcasa – Mais perto da sua casa, mais perto de si.
Uma oportunidade única de adquirir um Apartamento T1+1 em Aveiro, contacte a Exitcasa e marque já a sua visita.

Ref 5435-02 - Veja mais imóveis em exitcasa. pt

Tratamos da aprovação do seu crédito!
Intermediário de crédito vinculado nº 0002066 licenciado pelo Banco de Portugal.

Obs.: Fotos referentes a várias frações, ainda em fase de acabamentos.

Este anúncio foi publicado por rotina informática, todos os dados e informações carecem de confirmação junto da Exitcasa.

Características Gerais

  • Ar Condicionado
  • Cozinha Equipada
  • Garagem
  • Estacionamento
  • Guarda Roupa

Galeria do imóvel

Apartamento T1+1 em Aveiro
Apartamento T1+1 em Aveiro
Apartamento T1+1 em Aveiro
Apartamento T1+1 em Aveiro
Apartamento T1+1 em Aveiro
Apartamento T1+1 em Aveiro

Localização do imóvel

Aveiro, Aveiro, Esgueira

Referência do anúncio: 5435-02. Última atualização: 23 janeiro 2026.

Relatório de preços praticados nos últimos 8 meses

Aveiro, Aveiro, Esgueira

Simule um Crédito Habitação

Os dados apresentados são meramente indicativos. Condições gerais
Seguir
Partilhar
Exitcasa - Aveiro
AMI 5752
234 ...
Chamada para a rede fixa nacional
Mostrar número
Nome
Email
Contacto
Formato inválido
Agende uma visita
Referência do anúncio: 5435-02.
Última atualização: 23 janeiro 2026.
Contactar
Veja também
Anúncios na mesma zona
Apartamento T3 Venda em Oliveira de Azeméis, Santiago de Riba-Ul, Ul, Macinhata da Seixa e Madail,Oliveira de Azeméis
Aveiro, Oliveira de Azeméis, Oliveira de Azeméis, Santiago de Riba-Ul, Ul, Macinhata da Seixa e Madail
330 000 €
3
1
Apartamento t3 de alta qualidade no centro de aveiro
Aveiro, Aveiro, Glória e Vera Cruz
609 000 €
3
4
1
Apartamento t2 nas barrocas, aveiro – conforto, modernidade e elegância
Aveiro, Aveiro, Glória e Vera Cruz
403 800 €
2
2
Apartamento t2 novo em esgueira, aveiro
Aveiro, Aveiro, Esgueira
382 998 €
2
2
Apartamento t3 – espaço, conforto e elegância
Aveiro, Aveiro, Glória e Vera Cruz
496 280 €
3
2
Apartamento t1 praia da vagueira
Aveiro, Vagos, Gafanha da Boa Hora
245 000 €
1
1
1
Apartamento t1 praia da vagueira
Aveiro, Vagos, Gafanha da Boa Hora
245 000 €
1
1
1
Apartamento T1 Venda em Espinho,Espinho
Aveiro, Espinho, Espinho
265 000 €
1
1
Apartamento T3 em Ílhavo
Aveiro, Ílhavo, Ílhavo (São Salvador)
179 000 €
3
1
Apartamento T3 Venda em Oliveira de Azeméis, Santiago de Riba-Ul, Ul, Macinhata da Seixa e Madail,Oliveira de Azeméis
Aveiro, Oliveira de Azeméis, Oliveira de Azeméis, Santiago de Riba-Ul, Ul, Macinhata da Seixa e Madail
255 000 €
3
1
Partilha o imóvel: Apartamento T1+1 em Aveiro
Partilha este imóvel nas tuas redes sociais ou envia diretamente para o email dos teus amigos.
Partilhar por email
Adicione uma nota ao imóvel!
Só você é que vê as notas que adiciona. Os imóveis com notas ficam nos favoritos para os poder consultar mais tarde.
Excluíste o anúncio:
Apartamento T1+1 em Aveiro