Pesquisar perto de mim
A aguardar a sua pesquisa
Voltar
Apartamento T0 Venda em Cristelos, Boim e Ordem,Lousada
Apartamento T0 Venda em Cristelos, Boim e Ordem,Lousada
Apartamento T0 Venda em Cristelos, Boim e Ordem,Lousada
Apartamento T0 Venda em Cristelos, Boim e Ordem,Lousada
Ver galeria (12)
Ver galeria (12)
Seguir
Partilhar

Apartamento T0 Venda em Cristelos, Boim e Ordem,Lousada

Porto, Lousada, Cristelos, Boim e Ordem Ver no mapa
128 750 €
0 Quartos
1 WC's
35m2
Área Útil: 35m2
Área Bruta: 35m2
Certificação Energética: A
Estado: Em Construção

Descrição do anúncio

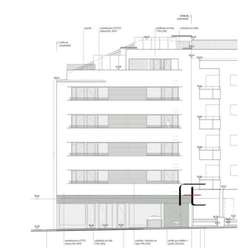
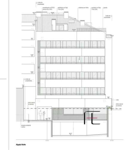
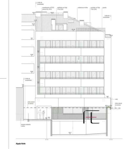
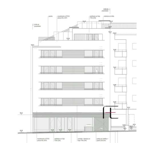
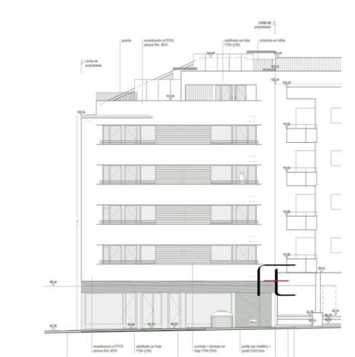
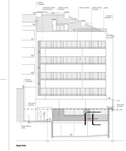
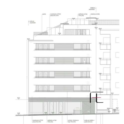
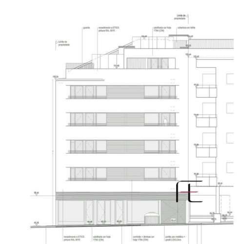
Apartamento T0 em construção, Venda, Centro de Lousada

Sala e cozinha em conceito Open Space;
Quarto;
WC completo;
Lugar de garagem;

Características:
Cozinha mobilada, não equipada;
Roupeiros embutidos;
Pré-instalação de ar condicionado nas divisões principais;
Estores elétricos com isolamento térmico;
Caixilharia em alumínio com corte térmico;
Vidro duplo GuardianSun;
Tetos falsos com iluminação LED embutida;
WC com loiças suspensas e móveis incluídos até valores estipulados;
Bomba de Calor;
Carpintarias lacadas a branco mate.

Localiza-se:
A 5 minutos da entrada da A42;
A 30 minutos do aeroporto;
Próximo a todo o tipo de comércio e serviços.

Prazo previsto de conclusão: Segundo Semestre de 2027.

Frações T0 disponíveis:
Fração P com 35m2, por 128.750,00€;
Fração R com 35m2, por 128.750,00€;
Fração T com 35m2, por 128.750,00€;
Fração AM com 35.40m2, por 133.900,00€;
Fração AV com 35.40m2, por 144.200,00€;
Fração AZ com 38.20m2, por 144.200,00€;

O Live Urban promete ser uma referência em habitação urbana, com foco no conforto e na sustentabilidade. Situado em uma área de grande potencial de crescimento, próximo a uma futura rede de hospitais e a um Retail Park, o projeto combina modernidade, funcionalidade e uma localização privilegiada.




Marque connosco a sua visita!


Você tem o sonho, nós temos a Chave!


Atual Imobiliária prima de um acompanhamento transparente, permanente e personalizado, tendo como base a proximidade e a confiança de quem queira vender ou comprar qualquer tipo de imóvel.

Dispõe de uma equipa de profissionais em constante formação, focada em perceber as suas necessidades e assumindo o compromisso de encontrar a melhor solução imobiliária para si.
Com mais de 10 anos de experiência, a Atual Imobiliária garante a maior transparência e simplicidade na concretização de todos os processos do seu negócio.

Os excelentes resultados que a nossa equipa de consultores tem vindo a alcançar ao longo destes anos, assenta na motivação diária de concretizar os sonhos e preferências dos nossos clientes, num mercado que reconhecemos como sendo severamente competitivo.
Na Atual Imobiliária as necessidades e preferências dos nossos clientes estarão sempre em grande destaque, de forma a encontrarmos as melhores soluções para colmatar os seus objetivos. Para tal, apresentamos um acompanhamento altamente profissional, credível e experiente, que nos permite prestar todo o apoio no desenvolvimento de quaisquer decisões e também durante os trâmites do processo de compra, venda ou arrendamento.

A nossa oferta prima pela diversidade e atualidade, para que encontre o imóvel à sua medida.

Nascemos com a clara missão de satisfazer os clientes do mercado imobiliário, uma vez que exibimos um serviço de elevada qualidade, a preços bastante competitivos.

A equipa da Atual Imobiliária dispõe de consultores extremamente experientes nesta área, cem por cento focados na concretização do melhor negócio para os seus clientes.

Neste sentido, além da nossa carteira de imóveis bastante diversificada e geograficamente alargada, dispomos ainda de parcerias com diversas agências imobiliárias e entidades credoras, que garantem-nos as melhores taxas de mercado, fator que nos posiciona num patamar diferenciador dentro do atual mercado imobiliário.
 

Características Gerais

  • Garagem
  • Estacionamento
  • Guarda Roupa
  • Studio

Galeria do imóvel

Apartamento T0 Venda em Cristelos, Boim e Ordem,Lousada
Apartamento T0 Venda em Cristelos, Boim e Ordem,Lousada
Apartamento T0 Venda em Cristelos, Boim e Ordem,Lousada
Apartamento T0 Venda em Cristelos, Boim e Ordem,Lousada
Apartamento T0 Venda em Cristelos, Boim e Ordem,Lousada
Apartamento T0 Venda em Cristelos, Boim e Ordem,Lousada

Localização do imóvel

Porto, Lousada, Cristelos, Boim e Ordem

Referência do anúncio: 2504.143. Última atualização: 04 novembro 2025.

Relatório de preços praticados nos últimos 8 meses

Porto, Lousada, Cristelos, Boim e Ordem

Simule um Crédito Habitação

Os dados apresentados são meramente indicativos. Condições gerais
Seguir
Partilhar
Atual Imobiliária Sede
AMI 13850
253 ...
Chamada para a rede fixa nacional
Mostrar número
Nome
Email
Contacto
Formato inválido
Agende uma visita
Referência do anúncio: 2504.143.
Última atualização: 04 novembro 2025.
Contactar
Veja também
Anúncios na mesma zona
T2 próximo à estação de Rio Tinto
Porto, Gondomar, Baguim do Monte (Rio Tinto)
265 000 €
2
1
Apartamento T3 com terraço amplo no VC Forte, Vila do em frente ao mar
Porto, Vila do Conde, Vila do Conde
995 000 €
3
2
1
Apartamento T3 amplo com varanda e garagem no VC Forte
Porto, Vila do Conde, Vila do Conde
935 000 €
3
2
1
Apartamento T1 Novo com Varanda e Piscina na Praia da Madalena
Porto, Vila Nova de Gaia, Madalena
350 000 €
1
1
Apartamento T3 em construção no Empreendimento Casas Garcia de Orta
Porto, Porto, Aldoar, Foz do Douro e Nevogilde
925 000 €
3
3
1
Apartamento T2 em construção, no Empreendimento Casas Garcia de Orta
Porto, Porto, Aldoar, Foz do Douro e Nevogilde
850 000 €
2
3
1
Apartamento T4 Remodelado no Centro do Porto
Porto, Porto, Cedofeita, Santo Ildefonso, Sé, Miragaia, São Nicolau e Vitória
895 000 €
4
3
1
Apartamento T3 com jardim privativo em construção - Casas Garcia de Orta
Porto, Porto, Aldoar, Foz do Douro e Nevogilde
900 000 €
3
3
1
T4 Duplex com Piscina Privativa e Terraço no RAIZ
Porto, Porto, Aldoar, Foz do Douro e Nevogilde
3 800 000 €
4
5
1
T4+1 Triplex c/ piscina junto à praia na Foz do Douro
Porto, Porto, Aldoar, Foz do Douro e Nevogilde
3 200 000 €
5
6
Partilha o imóvel: Apartamento T0 Venda em Cristelos, Boim e Ordem,Lousada
Partilha este imóvel nas tuas redes sociais ou envia diretamente para o email dos teus amigos.
Partilhar por email
Adicione uma nota ao imóvel!
Só você é que vê as notas que adiciona. Os imóveis com notas ficam nos favoritos para os poder consultar mais tarde.
Excluíste o anúncio:
Apartamento T0 Venda em Cristelos, Boim e Ordem,Lousada