Pesquisar perto de mim
A aguardar a sua pesquisa
Voltar
Apartamento em construção
Apartamento em construção
Apartamento em construção
Apartamento em construção
Ver galeria (8)
Ver galeria (8)
Seguir
Partilhar

Apartamento em construção

Faro, Olhão, Olhão Ver no mapa
417 390 €
3 Quartos
0 WC's
132m2
Área Útil: 132m2
Área Bruta: 132m2
Certificação Energética: Avaliação em curso

Descrição do anúncio

Apartamentos em fase de construção em Olhão perto de todas as comodidades e a poucos minutos dos cais de embarque para as ilhas Armona, Culatra e Farol e da marina de Olhão com os seus famosos mercado tradicionais.

Os Apartamentos estarão inseridos num condomínio novo com piscina e jardins comuns e com estacionamento privativo.

A construção está prevista para Agosto de 2023 com valores entre 205.920, até 429.000€ e áreas desde 65m2, e até 158 m2.
Os Apartamentos tem acabamentos de boa qualidade.

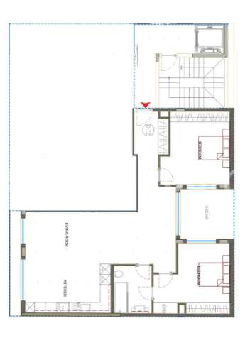
Os apartamentos são constituídos por tipologia desde T1 a T4,, casa de banho, sala de estar e jantar com acesso ao terraço e cozinha equipada.

Boa oportunidade de investimento para rentabilizar ou habitação própria.
Construção terminada em finais de 2023.

Galeria do imóvel

Apartamento em construção
Apartamento em construção
Apartamento em construção
Apartamento em construção
Apartamento em construção
Apartamento em construção

Localização do imóvel

Faro, Olhão, Olhão

Referência do anúncio: APA152. Última atualização: 19 junho 2024.

Relatório de preços praticados nos últimos 8 meses

Faro, Olhão, Olhão

Simule um Crédito Habitação

Os dados apresentados são meramente indicativos. Condições gerais
Seguir
Partilhar
Fernanda Henriques Unipessoal Lda
AMI 18235
Nome
Email
Contacto
Formato inválido
Agende uma visita
Referência do anúncio: APA152.
Última atualização: 19 junho 2024.
Contactar
Veja também
Anúncios na mesma zona
Apartamento T2 com terraço no último andar e garagem em Portimão
Faro, Portimão, Portimão
510 000 €
2
2
Maravilhoso apartamento T3, top floor com terraço privado, vista mar, barbecue e jacuzzi em empreendimento moderno, Tavira
Faro, Tavira, Tavira (Santa Maria e Santiago)
620 000 €
3
2
Apartamento T1 renovado - Vilamoura
Faro, Loulé, Quarteira
275 000 €
1
1
Apartamento moderno T3 com vistas deslumbrantes perto do Autódromo de Portimão
Faro, Portimão, Mexilhoeira Grande
265 000 €
3
1
1
Apartamentos em construção
Faro, Olhão, Olhão
393 957 €
3
Apartamento T2 de elevada qualidade em Portimão
Faro, Portimão, Portimão
380 000 €
2
2
Espetacular apartamento T2 com terraço privado, jacuzzi e vista rio
Faro, Vila Real de Santo António, Vila Real de Santo António
400 000 €
2
1
Apartamento T1 com 93 m2, varandas de 17m2 e terraço de 8,20m2
Faro, Tavira, Conceição e Cabanas de Tavira
325 000 €
1
1
Apartamento T2 com Varanda e Luz Natural, Lagos
Faro, Lagos, Lagos (São Sebastião e Santa Maria)
379 000 €
2
2
1
Apartamento T3, r/c, com estacionamento em empreendimento com amplas áreas e linhas modernas, Tavira
Faro, Tavira, Tavira (Santa Maria e Santiago)
350 000 €
3
2
Partilha o imóvel: Apartamento em construção
Partilha este imóvel nas tuas redes sociais ou envia diretamente para o email dos teus amigos.
Partilhar por email
Adicione uma nota ao imóvel!
Só você é que vê as notas que adiciona. Os imóveis com notas ficam nos favoritos para os poder consultar mais tarde.
Excluíste o anúncio:
Apartamento em construção