Pesquisar perto de mim
A aguardar a sua pesquisa
Voltar
ANG1490 - Lote para Prédio para Venda em Leiria
ANG1490 - Lote para Prédio para Venda em Leiria
ANG1490 - Lote para Prédio para Venda em Leiria
ANG1490 - Lote para Prédio para Venda em Leiria
Ver galeria (25)
Ver galeria (25)
Seguir
Partilhar

ANG1490 - Lote para Prédio para Venda em Leiria

Leiria, Leiria, Leiria, Pousos, Barreira e Cortes Ver no mapa
475 000 €
0 Quartos
0 WC's
Certificação Energética: N/D
Estado: Em Projecto

Descrição do anúncio

ANG1490
Descrição do Imóvel:
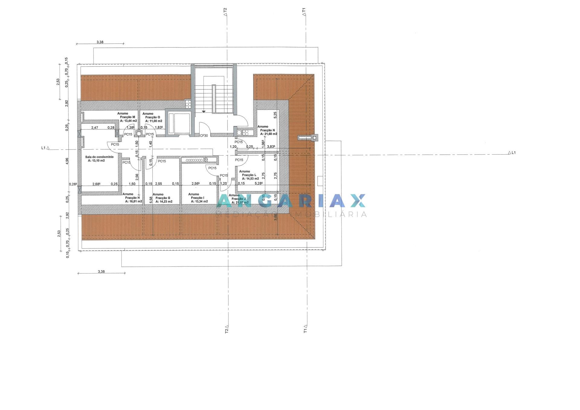
Lote de terreno com 392 m² destinado à construção de prédio de 8 pisos (1 enterrado, 2 parcialmente enterrados e 5 acima da cota de soleira), com 392 m² de área de implantação, 2.364 m² de área bruta de construção e 784 m² com área bruta dependente.

O terreno já tem projeto de arquitetura aprovado, contemplando:
- Piso -3 e Piso -2: estacionamento com capacidade para 27 viaturas
- Piso -1: habitação (2 T0 + 1 T1 + 1 T2)
- Piso 0: 2 lojas, uma delas com amplo terraço
- Pisos 1 a 4: habitação (4 T2 + 4 T3)
- Sótão: sala de condomínio e arrumos

Localização e Envolvente:
Situado numa zona central e em franco desenvolvimento da cidade de Leiria, o terreno beneficia de uma localização estratégica com múltiplos pontos de interesse nas proximidades:
- 600 m do Hospital de Santo André
- 600 m do futuro Hospital Lusíadas
- 600 m do novo Mercadona
- 250 m da Escola Correia Mateus
 -200 m das novas instalações da Beatriz Godinho
- 900 m do Intermarché
A área dispõe ainda de boas acessibilidades rodoviárias e pedonais, transportes públicos (Mobilis) e diversas opções de comércio e serviços.

Principais Características:
- Lote de gaveto com três frentes (Nascente, Sul e Poente)
- Excelente exposição solar e vistas desafogadas sobre a cidade
- Ótimo potencial de investimento para construção de edifício residencial e comercial
- Zona em valorização, com novos empreendimentos e equipamentos urbanos nas imediações

-> Para mais celeridade na resposta ao seu contacto pedimos que indique o ID ou Referência Interna do imóvel que está a ver (ex.: ANG…).

PORQUÊ COMPRAR COM A ANGARIAX?
Basta dizer-nos o que procura e iremos ajudá-lo(a).
+ CONSULTORES ESPECIALISTAS em acompanhamento de compradores;
+ DEDICAÇÃO na procura do imóvel ideal para si;
+ FOCO no cliente;
+ ORIENTAÇÃO para as suas necessidades;
+ EXPERIÊNCIA comprovada;
+ INFORMAÇÃO de qualidade ao seu dispor;
+ ACOMPANHAMENTO em todas as fases do processo;
+ APOIO nas burocracias.

PORQUÊ VENDER COM A ANGARIAX?
Basta contactar-nos e iremos ajudá-lo(a).
+ RESULTADOS comprovados;
+ EFICÁCIA na venda dos imóveis;
+ CONHECIMENTO profundo do mercado imobiliário;
+ ORIENTAÇÃO para as suas necessidades;
+ PARTILHA com qualquer entidade portadora de licença AMI válida;
+ FOCO na prestação do melhor serviço;
+ EXPERIÊNCIA vasta e multidisciplinar;
+ INFORMAÇÃO de qualidade ao seu dispor;
+ ACOMPANHAMENTO em todas as fases do processo;
+ APOIO nas burocracias;
+ TEMPO livre de qualidade para a si a para a sua família.

CONTACTE-NOS, TEMOS O SERVIÇO CERTO PARA SI!
Vender ou comprar uma casa não tem que ser uma tarefa difícil, encontre em nós as pessoas certas e deixe o negócio acontecer.
A equipa é composta por especialistas na promoção e venda dos imóveis e especialistas no acompanhamento a compradores, todos eles formados e orientados para o serviço ao cliente e para a obtenção dos melhores resultados.

Características Gerais

  • Acesso com Estrada
  • Terreno Urbano

Galeria do imóvel

ANG1490 - Lote para Prédio para Venda em Leiria
ANG1490 - Lote para Prédio para Venda em Leiria
ANG1490 - Lote para Prédio para Venda em Leiria
ANG1490 - Lote para Prédio para Venda em Leiria
ANG1490 - Lote para Prédio para Venda em Leiria
ANG1490 - Lote para Prédio para Venda em Leiria

Localização do imóvel

Leiria, Leiria, Leiria, Pousos, Barreira e Cortes

Referência do anúncio: ANG1490. Última atualização: 24 outubro 2025.

Relatório de preços praticados nos últimos 8 meses

Leiria, Leiria, Leiria, Pousos, Barreira e Cortes

Simule um Crédito Habitação

Os dados apresentados são meramente indicativos. Condições gerais
Seguir
Partilhar
ANGARIAX, LDA
AMI 17744
927 ...
Chamada para a rede fixa nacional
Mostrar número
Nome
Email
Contacto
Formato inválido
Agende uma visita
Referência do anúncio: ANG1490.
Última atualização: 24 outubro 2025.
Contactar
Veja também
Anúncios na mesma zona
Terreno Para Construção Venda em Santa Eufémia e Boa Vista,Leiria
Leiria, Leiria, Santa Eufémia e Boa Vista
250 000 €
Terreno Para Construção Venda em Amor,Leiria
Leiria, Leiria, Amor
56 000 €
Prédio misto com área total de 11.686 m2
Leiria, Caldas da Rainha, Caldas da Rainha - Nossa Senhora do Pópulo, Coto e São Gregório
700 000 €
Terreno de 12.560m2 c/ possibilidade construção em Delgada, Bombarral
Leiria, Bombarral, Bombarral e Vale Covo
125 000 €
Lote terreno para construção
Leiria, Caldas da Rainha, Caldas da Rainha - Nossa Senhora do Pópulo, Coto e São Gregório
250 000 €
ANG1487 - Terreno para Venda em Batalha
Leiria, Batalha, Batalha
95 000 €
Terreno para construção- vieira de leiria - vende-se
Leiria, Marinha Grande, Vieira de Leiria
43 900 €
Terreno rustico - ribeira de baixo, porto de mós
Leiria, Porto de Mós, Porto de Mós - São João Baptista e São Pedro
14 000 €
Magnífico terreno com projeto aprovado para construção de edifício de turismo de habitação
Leiria, Leiria, Souto da Carpalhosa e Ortigosa
80 000 €
Terreno para construção
Leiria, Leiria, Leiria, Pousos, Barreira e Cortes
43 000 €
Partilha o imóvel: ANG1490 - Lote para Prédio para Venda em Leiria
Partilha este imóvel nas tuas redes sociais ou envia diretamente para o email dos teus amigos.
Partilhar por email
Adicione uma nota ao imóvel!
Só você é que vê as notas que adiciona. Os imóveis com notas ficam nos favoritos para os poder consultar mais tarde.
Excluíste o anúncio:
ANG1490 - Lote para Prédio para Venda em Leiria