Pesquisar perto de mim
A aguardar a sua pesquisa
Voltar
2 terrenos para venda em Javali, 1 com projecto aprovado.
2 terrenos para venda em Javali, 1 com projecto aprovado.
2 terrenos para venda em Javali, 1 com projecto aprovado.
2 terrenos para venda em Javali, 1 com projecto aprovado.
Ver galeria (22)
Ver galeria (22)
Seguir
Partilhar

2 terrenos para venda em Javali, 1 com projecto aprovado.

Faro, São Brás de Alportel, São Brás de Alportel Ver no mapa
100 000 €
0 Quartos
0 WC's
190m2
Área Útil: 190m2
Área Bruta: 190m2
Certificação Energética: N/D

Descrição do anúncio


Apresentamos dois terrenos localizados na tranquila aldeia de Javali, ideais para quem procura qualidade de vida numa zona rural serena, mas com boas acessibilidades.

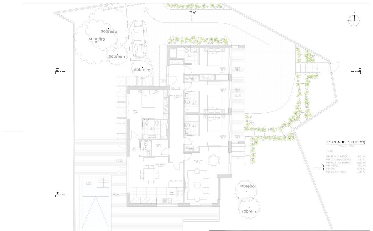
### Lote 1 - 1.031 m² com projeto aprovado

Este lote já conta com **projeto aprovado pela Câmara Municipal em 31/01/2024**, facilitando significativamente o início imediato da construção.
O projeto atual contempla uma moradia com:

* **Área total de construção: 190 m²**
* **4 quartos em suite**
* Hall de entrada
* WC de serviço
* Arrecadação
* Sala ampla com cozinha em open space, com acesso direto a um grande terraço e à zona da piscina
* **Cave/garagem com 70,80 m²**

Ideal para quem pretende rentabilizar parte do imóvel ou receber visitas com total privacidade.

Lote 2 - 534 m² com potencial de construção

Este segundo lote, localizado ao lado do primeiro, está incluído no Plano Municipal como Espaços Urbanizáveis a Reestruturar o que significa que faz parte integrante do perímetro urbano da aldeia, sendo possível construir mediante aprovação de projeto.
Atualmente, não existe projeto submetido ou aprovado para este lote, o que permite total liberdade na conceção da futura construção.
Qualidade de vida em ambiente rural

Os lotes estão inseridos numa zona rural calma e agradável, com algumas casas nas proximidades, oferecendo o equilíbrio perfeito entre privacidade e vizinhança.

Se aprecia o contacto com a natureza, aqui encontrará o lugar ideal!
Pode explorar vários trilhos pedestres pela paisagem algarvia, organizar piqueniques ao ar livre e desfrutar de momentos únicos com a família e amigos.

Localização estratégica

* A apenas 15 minutos de carro de São Brás de Alportel, com todas as comodidades (supermercados, escolas, centros de saúde, etc.)
e 30 minutos do Aeroporto de Faro e das praias.
Bons acessos e agua da rede.

Galeria do imóvel

2 terrenos para venda em Javali, 1 com projecto aprovado.
2 terrenos para venda em Javali, 1 com projecto aprovado.
2 terrenos para venda em Javali, 1 com projecto aprovado.
2 terrenos para venda em Javali, 1 com projecto aprovado.
2 terrenos para venda em Javali, 1 com projecto aprovado.
2 terrenos para venda em Javali, 1 com projecto aprovado.

Localização do imóvel

Faro, São Brás de Alportel, São Brás de Alportel

Referência do anúncio: T05C. Última atualização: 13 fevereiro 2026.

Relatório de preços praticados nos últimos 8 meses

Faro, São Brás de Alportel, São Brás de Alportel

Simule um Crédito Habitação

Os dados apresentados são meramente indicativos. Condições gerais
Seguir
Partilhar
Ta Maison De Reve Lda
AMI 18719
Nome
Email
Contacto
Formato inválido
Agende uma visita
Referência do anúncio: T05C.
Última atualização: 13 fevereiro 2026.
Contactar
Veja também
Anúncios na mesma zona
Terreno rústico com furo
Faro, Loulé, Boliqueime
120 000 €
Terreno rústico em moncarapacho, olhão
Faro, Olhão, Moncarapacho e Fuseta
19 950 €
Excelente localização em Olhão em zona em franca expansão habitacional
Faro, Olhão, Quelfes
800 000 €
Terreno para eco resort parque natural
Faro, São Brás de Alportel, São Brás de Alportel
500 000 €
Lote moradia em albufeira
Faro, Albufeira, Albufeira e Olhos de Água
270 000 €
Terreno Urbano Venda em Vila Real de Santo António,Vila Real de Santo António
Faro, Vila Real de Santo António, Vila Real de Santo António
Sob consulta
Projeto de casa personalizada por Vasco Vieira Architects
Faro, Loulé, Loulé (São Clemente)
650 000 €
TERRENO COM 100.060 M2 - POSSIBILIDADE DE CONSTRUÇÃO - HABITAÇÃO E/OU TURISMO - JUNTO A BARRAGEM DA CAROUCHA - BOTELHAS - CASTRO MARIM - ALGARVE
Faro, Castro Marim, Azinhal
480 000 €
Terreno Rústico Venda em Castro Marim,Castro Marim
Faro, Castro Marim, Azinhal
80 000 €
Terreno Rústico Venda em Castro Marim,Castro Marim
Faro, Castro Marim, Castro Marim
90 000 €
Partilha o imóvel: 2 terrenos para venda em Javali, 1 com projecto aprovado.
Partilha este imóvel nas tuas redes sociais ou envia diretamente para o email dos teus amigos.
Partilhar por email
Adicione uma nota ao imóvel!
Só você é que vê as notas que adiciona. Os imóveis com notas ficam nos favoritos para os poder consultar mais tarde.
Excluíste o anúncio:
2 terrenos para venda em Javali, 1 com projecto aprovado.